Skip to content
Contact Plan een bezichtiging

Nijenbeek 28

3772 ZG, Barneveld

€ 440.000,- k.k.
  • 110 m2 / 143 m2
  • 5 kamers
  • 4 slaapkamers
  • 1 badkamer
  • Verkocht o.v.

Omschrijving

Sfeervolle middenwoning met voor- en achtertuin, balkon en eigen carport

Ben je op zoek naar een verzorgde middenwoning met een praktische indeling, een moderne keuken en zowel een voor- als achtertuin? Dan is deze woning absoluut het bekijken waard. De woning is netjes onderhouden, beschikt over een lichte woonkamer en biedt meerdere slaapkamers, een balkon en een eigen carport.

Voortuin
De woning beschikt over een nette voortuin die zorgt voor een verzorgde entree. Daarnaast bevindt zich aan de voorzijde een praktische carport, waardoor parkeren op eigen terrein mogelijk is. Dankzij de kunststof kozijnen en gevelbekleding is de woning bovendien onderhoudsvriendelijk.

Begane grond
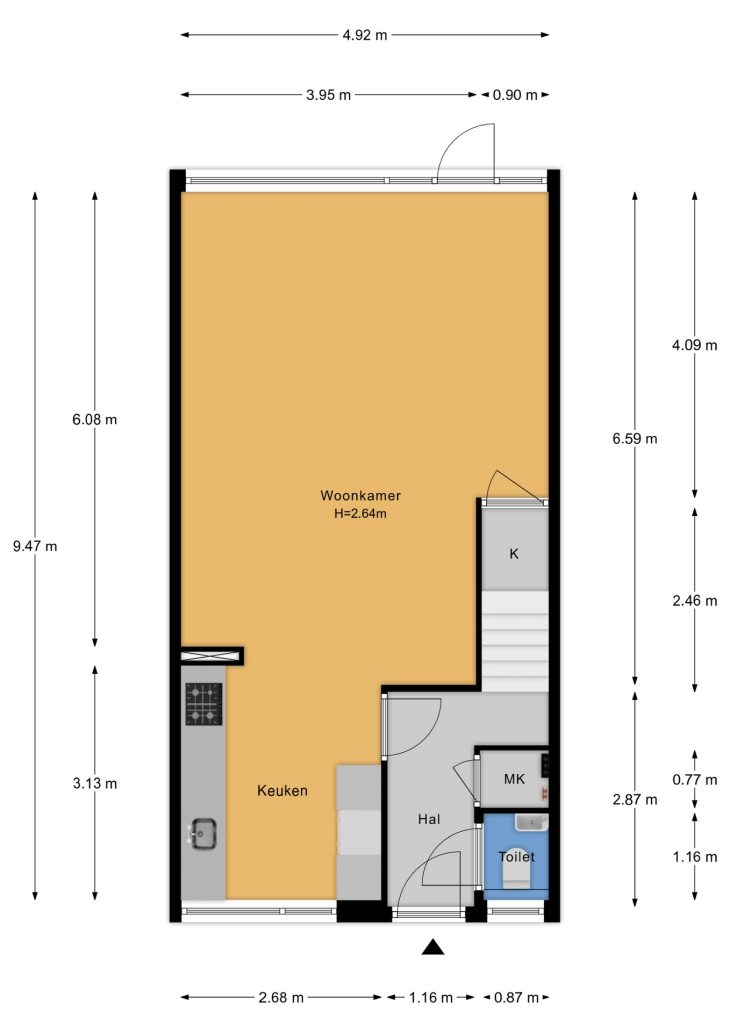
Via de ruime voortuin met terras bereik je de entree van de woning. In de hal bevinden zich het toilet, de meterkast en de trapopgang naar de eerste verdieping. De begane grond is voorzien van een stijlvolle pvc vloer en beschikt volledig over comfortabele vloerverwarming.
De woonkamer is licht en sfeervol dankzij de grote raampartijen die zorgen voor veel natuurlijk daglicht. Er is volop ruimte voor een comfortabele zithoek en een gezellige eethoek.
Aan de voorzijde van de woning bevindt zich de moderne keuken. De keuken is strak uitgevoerd en voorzien van diverse inbouwapparatuur. Dankzij het lange werkblad en de praktische indeling is er volop werk- en bergruimte, waardoor koken hier een plezier wordt.

Eerste verdieping
De overloop geeft toegang tot meerdere slaapkamers. De kamers zijn licht en praktisch in te delen als slaapkamer, kinderkamer, hobbyruimte of werkplek. Vanuit één van de slaapkamers is er toegang tot het balkon, dat een mooi uitzicht biedt op de achtertuin. De badkamer is ruim opgezet en voorzien van een ligbad, douche, toilet, wastafel en een aansluiting voor de wasmachine. Dankzij de royale indeling zijn er tevens mogelijkheden om de ruimte anders in te richten naar eigen wens.

Tweede verdieping
De bovenste verdieping biedt volop extra mogelijkheden. Hier kan bijvoorbeeld een extra slaapkamer, hobbyruimte of thuiswerkplek worden gerealiseerd. Daarnaast is er praktische bergruimte aanwezig.

Achtertuin
De achtertuin biedt een fijne buitenruimte met voldoende plek voor een gezellig zitje en eventueel speeltoestellen. Door de groene erfafscheidingen ervaart u hier veel privacy en rust. Daarnaast beschikt de tuin over een praktische achterom, wat extra gemak biedt.

Omgeving
De woning is gelegen in een rustige en kindvriendelijke woonwijk. In de directe omgeving vind je diverse voorzieningen zoals scholen, winkels en sportfaciliteiten. Ook uitvalswegen en het openbaar vervoer zijn goed bereikbaar, waardoor je snel onderweg bent naar omliggende plaatsen.

Nieuwsgierig geworden?
Zie jij jezelf hier al wonen? Neem dan snel contact met ons op voor een bezichtiging. Wij laten je deze fijne woning graag persoonlijk ervaren!

Kenmerken

Overdracht

  • StatusVerkocht o.v.
  • Vraagprijs€ 440.000,- k.k.
  • AanvaardingIn overleg

Bouwvorm

  • Soort objectWoonhuis
  • Soort woningEengezinswoning
  • Type woningTussenwoning
  • Bouwjaar1974
  • BouwvormBestaande bouw
  • LiggingenAan rustige weg, In woonwijk

Indeling

  • Woonoppervlakte110 m2
  • Perceeloppervlakte143 m2
  • Inhoud365 m3
  • Aantal kamers5
  • Aantal slaapkamers4
  • Aantal badkamers1

Energie

  • EnergieklasseB
  • VerwarmingCV ketel, Vloerverwarming gedeeltelijk
  • C.V.-KetelIntergas
  • Bouwjaar C.V.-Ketel2006
  • WarmwaterCV ketel
  • IsolatieDakisolatie, Muurisolatie
  • BrandstofGas
  • EigendomEigendom

Buitenruimte

  • TuinAchtertuin, Voortuin
  • HoofdtuinAchtertuin
  • Oppervlakte17 m2
  • Ligging hoofdtuinZuidoost
  • AchteromJa
  • Kwaliteit tuinNormaal

Bergruimte

  • Schuur / BergingVrijstaand steen
  • VoorzieningenVoorzien van elektra
  • Totaal aantal1

Parkeergelegenheid

  • Parkeer faciliteitenOp eigen terrein
  • GarageCarport

Dak

  • Soort dakLessenaardak
  • Materiaal dakPannen

Overig

  • Permanente bewoningJa
  • Onderhoud binnenGoed
  • Onderhoud buitenRedelijk tot goed
  • Huidig gebruikWoonruimte
  • Huidige bestemmingWoonruimte

Plattegrond

Hoofdvideo

Laad video en start met afspelen

360º afbeeldingen

Vergelijkbare woningen