Skip to content
Contact Plan een bezichtiging

Tesselschadestraat 2

3771 ZE, Barneveld

€ 430.000,- k.k.
  • 86 m2 / 280 m2
  • 5 kamers
  • 3 slaapkamers
  • 1 badkamer
  • Beschikbaar

Omschrijving

Klussers opgelet: Hoekwoning op royaal perceel!

Ben jij een handige klusser of zoek je een woning om helemaal naar eigen wens te moderniseren? Dan is deze hoekwoning met schuur en garage op een perceel van circa 280 m² een absolute buitenkans. Gelegen aan een rustige straat nabij het centrum van Barneveld, biedt dit huis volop mogelijkheden voor wie zijn handen uit de mouwen wil steken.

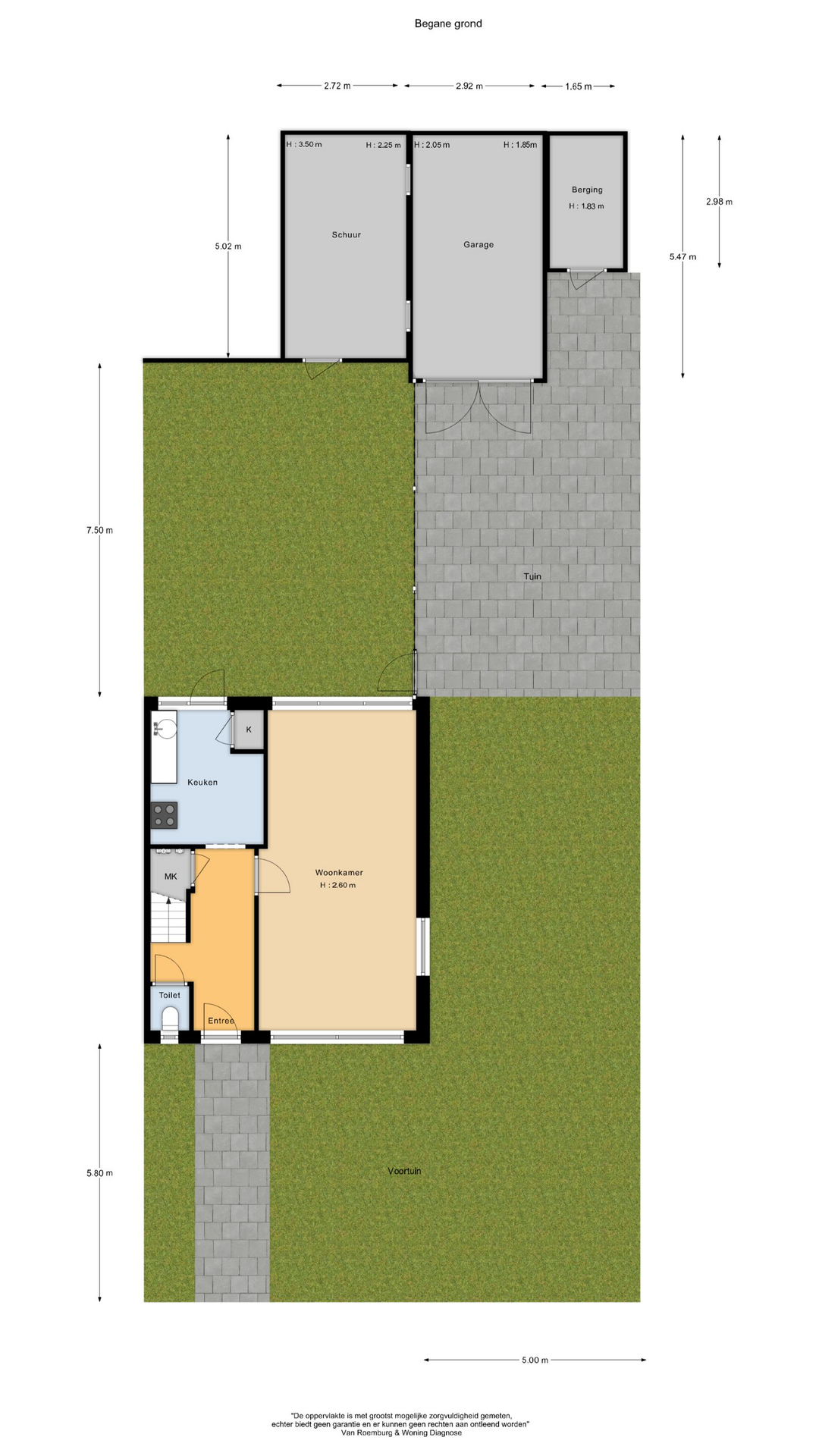
Begane grond
Je komt binnen in de hal met toegang tot het toilet, meterkast en de trapopgang. De doorzonwoonkamer is licht en ruim, met een grote raampartij aan de voorzijde. De dichte keuken aan de achterzijde is eenvoudig van opzet, maar biedt directe toegang tot de achtertuin. Hier kun je bijvoorbeeld kiezen voor een open leefkeuken met zicht op het groen.

Eerste verdieping
Op de eerste verdieping bevinden zich drie slaapkamers, elk met prettige afmetingen. De badkamer is functioneel ingericht en toe aan vernieuwing, wat juist de kans biedt om hier een frisse, moderne ruimte van te maken.

Vliering
Via een vlizotrap bereik je de zolder. Deze ruimte is ideaal als opslag, maar met de juiste aanpassingen ook geschikt te maken als extra (slaap)kamer.

Tuin
De voor, zij en achtertuin zijn royaal en bieden volop ruimte voor tuinliefhebbers, speelruimte of een heerlijke veranda. De woning beschikt over een stenen schuur, een garage en een aparte berging, ideaal voor opslag, klusruimte of zelfs een kleine werkplaats. Aan de zijkant is bovendien plek voor parkeerruimte op eigen terrein: erg praktisch!

Voor deze woning geldt:
- Notariskeuze uit Van Putten van Apeldoorn Notarissen Voorthuizen of Kuiper van ’t Spijker Notarissen Putten;
- Een zelfbewoningsplicht;
- Onder voorbehoud van gunning verkoper;
- Huurders van de Woningstichting Barneveld hebben voorrang tot koop.

 

Kenmerken

Overdracht

  • StatusBeschikbaar
  • Vraagprijs€ 430.000,- k.k.
  • AanvaardingIn overleg

Bouwvorm

  • Soort objectWoonhuis
  • Soort woningEengezinswoning
  • Type woningHoekwoning
  • Bouwjaar1960
  • BouwvormBestaande bouw
  • LiggingenAan rustige weg, In woonwijk

Indeling

  • Woonoppervlakte86 m2
  • Perceeloppervlakte280 m2
  • Inhoud393 m3
  • Aantal kamers5
  • Aantal slaapkamers3
  • Aantal badkamers1

Energie

  • EnergieklasseC
  • VerwarmingCV ketel
  • WarmwaterCV ketel
  • IsolatieGedeeltelijk dubbelglas
  • CombiketelJa
  • BrandstofGas
  • EigendomEigendom

Buitenruimte

  • TuinAchtertuin, Voortuin, Zijtuin
  • HoofdtuinAchtertuin
  • Oppervlakte102 m2
  • Ligging hoofdtuinOost
  • AchteromJa
  • Kwaliteit tuinAan te leggen

Bergruimte

  • Schuur / BergingVrijstaand steen
  • VoorzieningenVoorzien van elektra
  • Totaal aantal1

Parkeergelegenheid

  • Parkeer faciliteitenOp eigen terrein
  • GarageVrijstaand hout
  • Capaciteit1
  • Garages1

Dak

  • Soort dakZadeldak
  • Materiaal dakPannen

Overig

  • Permanente bewoningJa
  • Onderhoud binnenMatig
  • Onderhoud buitenRedelijk
  • Huidig gebruikWoonruimte
  • Huidige bestemmingWoonruimte

Plattegrond

Vergelijkbare woningen