Skip to content
Contact Plan een bezichtiging

Verlooplaan 10

3771 HG, Barneveld

€ 895.000,- k.k.
  • 169 m2 / 365 m2
  • 8 kamers
  • 5 slaapkamers
  • 2 badkamers
  • Tijdelijk ingetrokken

Omschrijving

Aan één van de meest geliefde lanen met jaren dertig woningen mogen wij u deze KARAKTERVOLLE HALFVRIJSTAANDE WONING MET GARAGE, ATELIER/SLAAPKAMER EN BADKAMER op de begane grond aanbieden. Echt een unieke woonlocatie, op loopafstand van het station en het Schaffelaarse Bos. De heerlijk vrij gelegen achtertuin is in stijl aangelegd, voorzien van een zij-entree en onder de royale veranda kunt u heel fijn de lange zomeravonden doorbrengen met familie of vrienden. En wil je toch gezellig in het dorp even een terrasje pakken, binnen 5 minuten wandelen sta je hartje centrum Barneveld.

Deze verzorgde woning is omstreeks 1934 gebouwd en in 1981 uitgebouwd, waardoor het huis verrassend veel ruimte biedt. Er is een mooie mix gevonden tussen de 'jaren dertig' sfeer, de nog aanwezige originele details zoals glas-in-lood-ramen en paneeldeuren en het moderne wooncomfort (ook door de nieuw geplaatste HR++ ramen)! Gezien de extra ruimte op de begane grond leent de woning zich bij uitstek voor bijvoorbeeld een salon of praktijk aan huis of om als een levensloopbestendige woning in gebruik te nemen.

Indeling:
Begane grond: entree/hal met trapopgang, vaste kast (geschikt om weer als toilet in te richten) en een kelderkast. Via een mooie glasdeur stapt u de heerlijk lichte en riante woonkamer binnen met een stijlvolle schouw met openhaard, openslaande tuindeuren en voldoende ruimte voor een aparte tv-hoek of speelhoek. Dichte keuken, voorzien van een moderne keukenopstelling o.a. uitgerust met inductiekookplaat, gaskookplaat, oven, quooker, vaatwasmachine en koelkast, aangebouwde eetkamer met tuindeur, toegang naar de aanbouw, waarin de slaapkamer en aangrenzende badkamer (voorzien van wastafel, toilet en douche) zich bevinden. Vanuit de hal ook toegang naar de praktische garage met lichtkoepel en openslaande deuren.
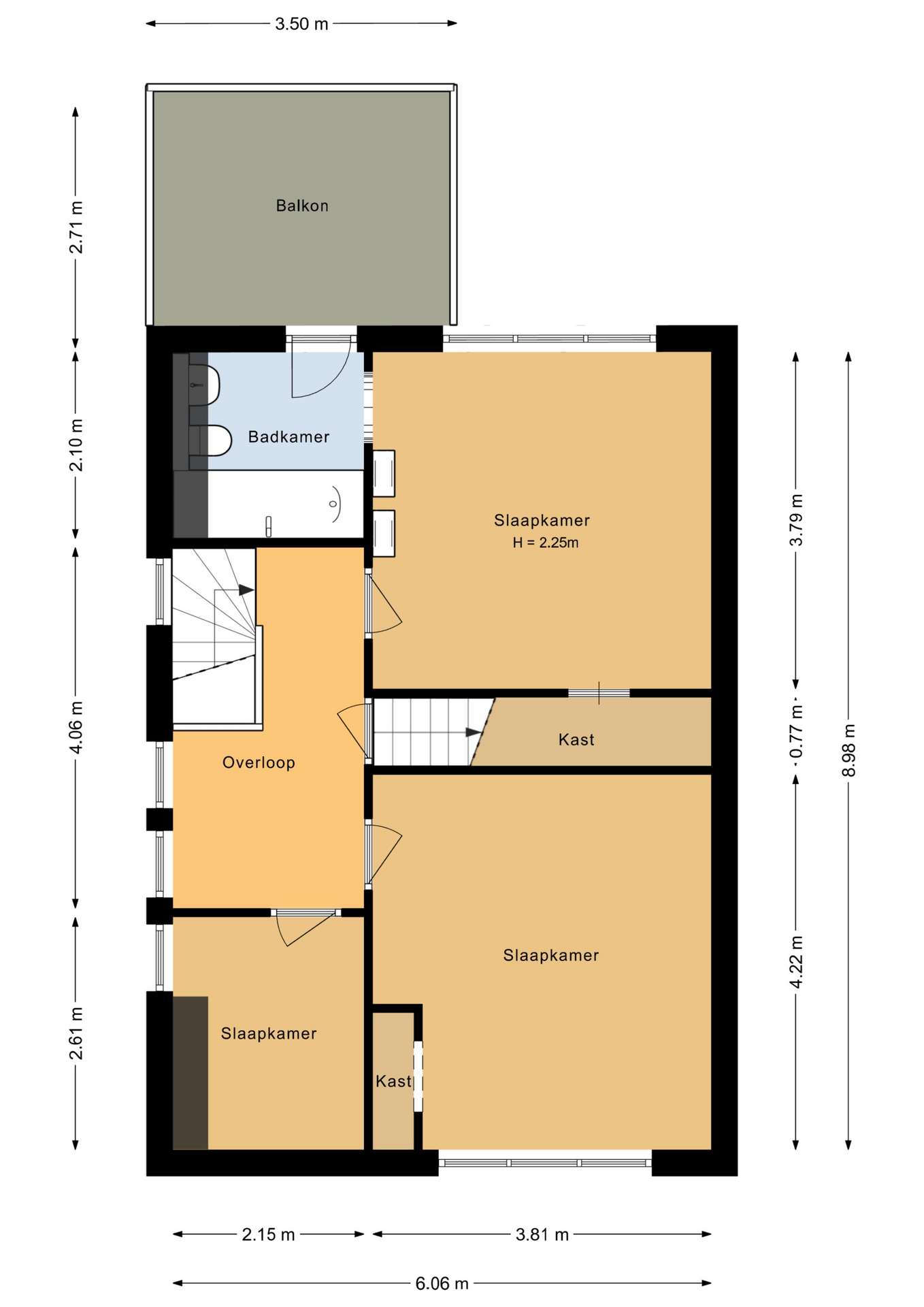
1e verdieping: overloop, slaapkamer met dakkapel, ruime slaapkamer aan de voorzijde met inbouwkast, ouderslaapkamer met inbouwkast en dubbel wastafelmeubel, aangrenzende badkamer voorzien van ligbad, bidet en toilet.
2e verdieping: bereikbaar via vaste trap, ruime slaapkamer met wastafel en grote zolderruimte met mogelijkheid voor extra kamer(s).

Echt een unieke kans om in zo'n mooie woning op deze fantastische plek te kunnen wonen. Wij nodigen u graag uit voor een bezichtiging om de sfeer én de ligging te ervaren!

Kenmerken

Overdracht

  • StatusTijdelijk ingetrokken
  • Vraagprijs€ 895.000,- k.k.
  • AanvaardingIn overleg

Bouwvorm

  • Soort objectWoonhuis
  • Soort woningEengezinswoning
  • Type woningHalfvrijstaande woning
  • BouwvormBestaande bouw
  • LiggingenAan rustige weg, In woonwijk, In bosrijke omgeving

Indeling

  • Woonoppervlakte169 m2
  • Perceeloppervlakte365 m2
  • Inhoud726 m3
  • Aantal kamers8
  • Aantal slaapkamers5
  • Aantal badkamers2

Energie

  • EnergieklasseC
  • VerwarmingCV ketel, Open haard
  • C.V.-KetelATAG CW5
  • Bouwjaar C.V.-Ketel2023
  • WarmwaterCV ketel
  • IsolatieDakisolatie, Muurisolatie, Dubbelglas
  • CombiketelJa
  • BrandstofGas
  • EigendomEigendom

Buitenruimte

  • TuinAchtertuin, Voortuin
  • HoofdtuinAchtertuin
  • Oppervlakte150 m2
  • Ligging hoofdtuinNoordoost
  • AchteromJa
  • Kwaliteit tuinFraai aangelegd

Bergruimte

  • Schuur / BergingVrijstaand hout
  • VoorzieningenVoorzien van elektra
  • Totaal aantal1

Parkeergelegenheid

  • Parkeer faciliteitenOp eigen terrein
  • GarageAangebouwd steen
  • Capaciteit1
  • Garages1

Dak

  • Soort dakSamengesteld dak
  • Materiaal dakPannen, Bitumineuze Dakbedekking

Overig

  • Permanente bewoningJa
  • Onderhoud binnenGoed
  • Onderhoud buitenGoed
  • Huidig gebruikWoonruimte
  • Huidige bestemmingWoonruimte

Plattegrond

Hoofdvideo

Laad video en start met afspelen

360º afbeeldingen

Vergelijkbare woningen