Skip to content
Contact Plan een bezichtiging

Wildzoom 107

3772 SP, Barneveld

€ 459.000,- k.k.
  • 124 m2 / 158 m2
  • 5 kamers
  • 4 slaapkamers
  • 1 badkamer
  • Onder bod

Omschrijving

Gezellig wonen op een rustige plek in Barneveld!

Welkom aan deze keurig onderhouden middenwoning, gelegen in een kindvriendelijke en rustige straat in Barneveld. Hier woon je met alle comfort, met een fijne tuin op het zuidoosten én een speeltuintje direct achter de woning. Een perfecte plek voor jonge gezinnen die op zoek zijn naar ruimte, licht en een goede locatie!

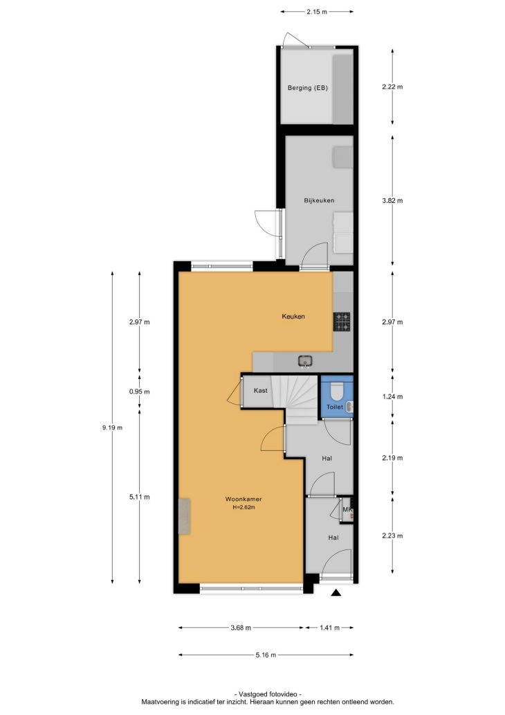
Begane grond
Via de hal betreed je de woning. Hier vind je het toilet met fonteintje, de meterkast en de trapopgang. De lichte woonkamer is een heerlijke plek om te ontspannen en biedt voldoende ruimte voor een comfortabele zithoek. Aan de achterzijde bevindt zich de eethoek, direct grenzend aan de open keuken in L-opstelling. Deze keuken is voorzien van een gaskookplaat, afwasmachine, koelkast, oven en een afzuigkap. Vanuit de keuken heb je toegang tot de praktische bijkeuken met wasmachineaansluiting.

Eerste verdieping
De overloop op de eerste verdieping biedt toegang tot drie ruime slaapkamers, ideaal voor slapen, werken of studeren. Handig detail: op de overloop is een vaste kast gerealiseerd voor extra opbergruimte. De badkamer is voorzien van een douche, wastafelmeubel, toilet en een designradiator.

Tweede verdieping
Een vaste trap brengt je naar de verrassend ruime zolderverdieping. Hier bevindt zich de vierde slaapkamer, evenals een tweede vaste kast en de opstelling voor de cv-installatie. Dankzij de grote dakramen is ook deze verdieping licht en veelzijdig in gebruik.

Achtertuin
De achtertuin ligt op het zuidoosten: een zonnige ligging die garant staat voor veel lichtinval en lange zomeravonden buiten. De tuin is voorzien van een aangebouwde stenen berging én een houten tuinhuis – ideaal voor fietsen, tuinmeubilair of speelgoed. Via de achterzijde is er direct toegang tot een speeltuintje, perfect voor jonge kinderen.

Omgeving
Deze woning ligt in een rustige en kindvriendelijke buurt van Barneveld. In de directe omgeving zijn scholen, speelplekken, winkels en uitvalswegen eenvoudig bereikbaar.

Benieuwd naar deze fijne middenwoning?
Laat je verrassen tijdens een bezichtiging en ontdek zelf het comfort en de locatie. Bel ons voor een afspraak – we leiden je graag rond!

Kenmerken

Overdracht

  • StatusOnder bod
  • Vraagprijs€ 459.000,- k.k.
  • AanvaardingIn overleg

Bouwvorm

  • Soort objectWoonhuis
  • Soort woningEengezinswoning
  • Type woningTussenwoning
  • Bouwjaar1980
  • BouwvormBestaande bouw
  • LiggingenIn woonwijk, Aan rustige weg, In woonwijk

Indeling

  • Woonoppervlakte124 m2
  • Perceeloppervlakte158 m2
  • Inhoud394 m3
  • Aantal kamers5
  • Aantal slaapkamers4
  • Aantal badkamers1

Energie

  • EnergieklasseA
  • VerwarmingCV ketel
  • C.V.-KetelRemeha
  • Bouwjaar C.V.-Ketel2021
  • WarmwaterCV ketel
  • IsolatieDakisolatie, Muurisolatie, HR glas
  • CombiketelJa
  • BrandstofGas
  • EigendomEigendom

Buitenruimte

  • TuinAchtertuin, Voortuin
  • HoofdtuinAchtertuin
  • Oppervlakte72 m2
  • Ligging hoofdtuinZuidoost
  • AchteromJa
  • Kwaliteit tuinNormaal

Bergruimte

  • Schuur / BergingAangebouwd steen
  • Totaal aantal1

Parkeergelegenheid

  • Parkeer faciliteitenOpenbaar parkeren

Dak

  • Soort dakZadeldak
  • Materiaal dakPannen, Bitumineuze Dakbedekking

Overig

  • Permanente bewoningJa
  • Onderhoud binnenGoed
  • Onderhoud buitenGoed
  • Huidig gebruikWoonruimte
  • Huidige bestemmingWoonruimte

Plattegrond

Hoofdvideo

Laad video en start met afspelen

360º afbeeldingen

Vergelijkbare woningen