Skip to content
Contact Plan een bezichtiging

Wildzoom 63

3772 SM, Barneveld

€ 420.000,- k.k.
  • 102 m2 / 170 m2
  • 5 kamers
  • 4 slaapkamers
  • 1 badkamer
  • Beschikbaar

Omschrijving

LET OP! Deze woning wordt tot 21 april 2026 aangeboden aan huurders van Woningstichting Barneveld. Huurders die een huurwoning van Woningstichting Barneveld achterlaten, hebben voorrang en kunnen een bezichtiging inplannen. Andere geïnteresseerden kunnen zich aanmelden als kandidaat om de woning na 21 april 2026 te bezichtigen, mocht de woning dan nog niet verkocht zijn.

Eindwoning met vrije tuin en volop mogelijkheden

Ben je op zoek naar een fijne eindwoning met een heerlijk vrije achtertuin, vier slaapkamers en een prettige ligging nabij het dorpscentrum? Dan is deze woning zeker een bezichtiging waard. Met een stenen berging, een diepe achtertuin met veel privacy en een speelplantsoen direct achter het perceel, biedt deze woning een mooie basis voor starters, jonge gezinnen of handige kopers die graag hun eigen woonwensen realiseren.
De woning is gebouwd in 1980 en staat op een perceel van circa 170 m². Een huis met een praktische indeling, veel lichtinval en volop potentie om er een warm en eigentijds thuis van te maken.

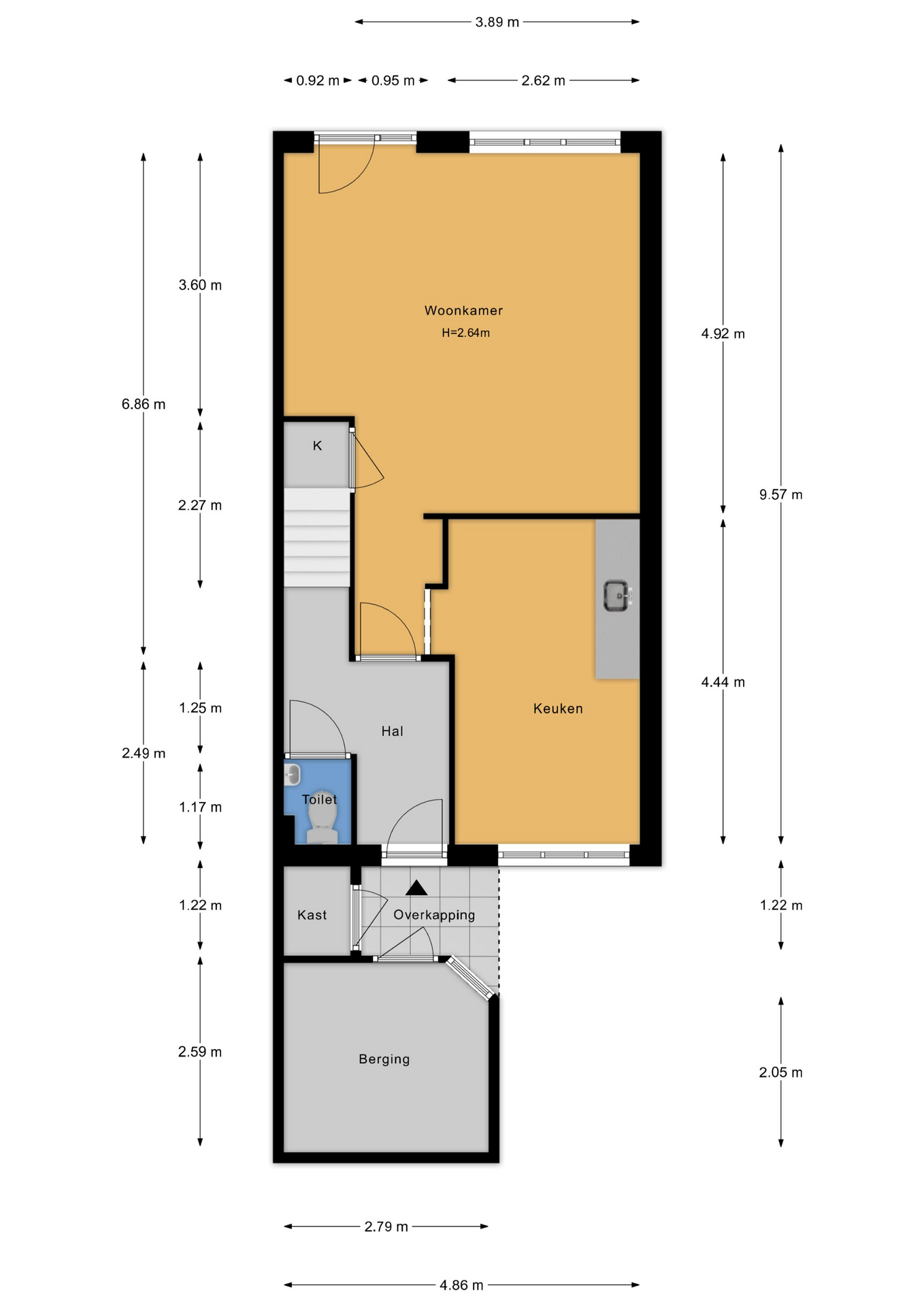
Begane grond
Via de entree kom je binnen in de hal met meterkast, trapopgang en toilet met fonteintje. Vanuit hier bereik je de woonkamer aan de achterzijde. Deze ruimte is heerlijk licht dankzij de grote raampartijen en de deur naar de tuin. Er is voldoende plek voor een gezellige zithoek en een eettafel, terwijl de praktische trapkast zorgt voor extra bergruimte.
De keuken bevindt zich aan de voorzijde van de woning. Een fijne plek met uitzicht op de straat en volop mogelijkheden om deze ruimte geheel naar eigen smaak te moderniseren.

Eerste verdieping
Op de eerste verdieping geeft de overloop toegang tot drie slaapkamers. Daarmee is deze woning direct aantrekkelijk voor gezinnen, thuiswerkers of iedereen die graag extra hobby- of logeerruimte heeft. Eén van de slaapkamers is voorzien van een wastafel, wat extra praktisch is in het dagelijks gebruik.

De badkamer beschikt over een douche, toilet, wastafel en de aansluiting voor de wasapparatuur.

Tweede verdieping
De tweede verdieping bestaat uit een overloop met cv-opstelling en een vierde slaapkamer. Deze extra verdieping is een waardevolle aanvulling op het geheel.

Tuin
Een van de grote pluspunten van deze woning is zonder twijfel de achtertuin. De tuin is diep, biedt veel privacy en heeft een heerlijk vrij gevoel. Achter het perceel ligt bovendien een leuk speelplantsoen, wat dit een perfecte plek maakt voor gezinnen met kinderen.

Daarnaast beschikt de woning over een stenen berging aan de voorzijde van de woning, ideaal voor fietsen, tuinspullen en extra opslag.

Omgeving
De woning is gelegen op korte afstand van het gezellige dorpscentrum. Hierdoor woon je met dagelijkse voorzieningen, winkels en andere faciliteiten binnen handbereik. De combinatie van een rustige woonomgeving, een vrije tuin en de nabijheid van voorzieningen maakt dit een bijzonder prettige plek om thuis te komen.

Voor deze woning geldt:
- Notariskeuze uit Van Putten van Apeldoorn Notarissen Voorthuizen of Kuiper van ’t Spijker Notarissen Putten;
- Een zelfbewoningsplicht;
- Onder voorbehoud van gunning verkoper;
- Huurders van de Woningstichting Barneveld hebben voorrang tot koop.

Kenmerken

Overdracht

  • StatusBeschikbaar
  • Vraagprijs€ 420.000,- k.k.
  • AanvaardingIn overleg

Bouwvorm

  • Soort objectWoonhuis
  • Soort woningEengezinswoning
  • Type woningEindwoning
  • Bouwjaar1980
  • BouwvormBestaande bouw
  • LiggingenIn woonwijk

Indeling

  • Woonoppervlakte102 m2
  • Perceeloppervlakte170 m2
  • Inhoud396 m3
  • Aantal kamers5
  • Aantal slaapkamers4
  • Aantal badkamers1

Energie

  • EnergieklasseC
  • VerwarmingCV ketel
  • C.V.-KetelIntergas
  • Bouwjaar C.V.-Ketel2013
  • WarmwaterCV ketel
  • IsolatieDakisolatie, Muurisolatie, Vloerisolatie, Dubbelglas
  • CombiketelJa
  • BrandstofGas
  • EigendomEigendom

Buitenruimte

  • TuinAchtertuin, Voortuin
  • HoofdtuinAchtertuin
  • Oppervlakte81 m2
  • Ligging hoofdtuinNoordoost
  • AchteromJa
  • Kwaliteit tuinNormaal

Bergruimte

  • Schuur / BergingAangebouwd steen
  • Totaal aantal1

Parkeergelegenheid

  • Parkeer faciliteitenOpenbaar parkeren

Overig

  • Permanente bewoningJa
  • Onderhoud binnenRedelijk tot goed
  • Onderhoud buitenRedelijk tot goed
  • Huidig gebruikWoonruimte
  • Huidige bestemmingWoonruimte

Plattegrond

Vergelijkbare woningen