Skip to content
Contact Plan een bezichtiging

Buurtweg ong.

3852 PX, Ermelo

Verkoop bij inschrijving
  • 21.743 m2
  • Beschikbaar

Omschrijving

Namens onze opdrachtgever mogen wij u aanbieden EEN PERCEEL AGRARISCHE GROND. De grond wordt aangeboden middels een (besloten) vrijwillige verkoop bij inschrijving. De voorwaarden en condities die voor deze inschrijving gelden leest u terug in deze brochure.

Het biedingsformulier, welke te verkrijgen is via ons kantoor, is in te leveren t/m maandag 8 december 2025 tot 12:00 uur bij Midden Nederland Makelaars Barneveld, Kampstraat 32 te Barneveld of per e-mail: aog@mnm.nl (met ontvangstbevestiging versturen).

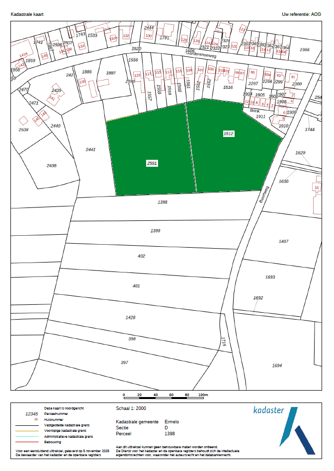
Kadastrale informatie:
Kadastraal bekend bij de gemeente Ermelo, sectie D, nummers 1.912 en 2.591, samen groot ca. 21.743 m².

Bestemming:
Agrarisch met landschapswaarden 2 en 4. (agrarisch zonder bebouwingsmogelijkheden.)

Bijzonderheden:

- Perceel 1.912 is belast met een nabetalingsverplichting wanneer de bestemming wordt gewijzigd naar Wonen. Deze verplichting is vastgelegd als een kettingbeding, rust op het
perceel en gaat bij overdracht automatisch over op de koper.

- De huidige uitrit van perceel 2.591 naar de Garderenseweg komt te vervallen. In plaats daarvan zal de ontsluiting van beide percelen plaatsvinden via de buurtweg.

- Slootschouw is voor het zuidelijke deel van het perceel van toepassing.

- De Jacht is niet verpacht.

Kenmerken

Overdracht

  • StatusBeschikbaar
  • AanvaardingIn overleg
  • VraagprijsVerkoop bij inschrijving

Bouwvorm

  • BouwvormNiet van toepassing

Indeling

  • Perceeloppervlakte21.743 m2

Energie

  • CombiketelJa

Overig

  • Permanente bewoningJa

Kadastrale gegevens

  • GemeenteErmelo
  • SectieD
  • Perceelnummer1912
  • Oppervlakte10.920 m2
  • EigendomssituatieVolle eigendom

Kadastrale gegevens

  • GemeenteErmelo
  • SectieD
  • Perceelnummer2591
  • Oppervlakte10.823 m2
  • EigendomssituatieVolle eigendom