Skip to content
Contact Plan een bezichtiging

Havikshof 27

3853 BA, Ermelo

€ 695.000,- k.k.
  • 184 m2 / 617 m2
  • 6 kamers
  • 4 slaapkamers
  • 2 badkamers
  • Onder bod

Omschrijving

VRIJSTAANDE SEMI-BUNGALOW OP LOOPAFSTAND VAN HET CENTRUM VAN ERMELO

Bent u op zoek naar een rustig gelegen, levensloopbestendige semi-bungalow? Laat u verrassen door deze vrijstaande semi-bungalow met een royale indeling, veel leefruimte en een ideale ligging. U woont hier in alle rust en met veel privacy, terwijl het centrum, winkels en het openbaar vervoer zich op korte afstand bevinden. Een perfecte combinatie van comfort, ruimte en uitstekende bereikbaarheid.
 
HIGHLIGHTS VAN DE WONING

  • Royale vrijstaande bungalow met serre
  • Slaapkamer en badkamer op de begane grond
  • Drie ruime slaapkamers op de eerste verdieping
  • Zonnige tuin op het zuidwesten
  • Garage, carport en eigen oprit
     

COMFORT, RUIMTE EN BEREIKBAARHEID
Deze vrijstaande semi-bungalow is gelegen in een rustig en groen hofje, op korte loopafstand van het centrum en het openbaar vervoer. De woning beschikt over een garage en carport en biedt dankzij de slaap- en badkamer op de begane grond veel wooncomfort. Hierdoor is de woning niet alleen comfortabel voor nu, maar ook volledig levensloopbestendig. Daarnaast biedt de woning volop mogelijkheden om deze naar eigen smaak in te richten of te moderniseren, zodat u een woning kunt creëren die perfect aansluit bij uw woonwensen.
De ligging is bijzonder aantrekkelijk. U woont hier in een rustige omgeving met veel privacy en weinig verkeer. Tegelijkertijd zijn alle dagelijkse voorzieningen op korte afstand te vinden. Binnen enkele minuten loopt of fietst u naar het centrum, met een divers aanbod aan winkels, supermarkten, restaurants en andere voorzieningen. Ook het openbaar vervoer is eenvoudig bereikbaar, wat de bereikbaarheid van deze woning uitstekend maakt.
Via de ruime hal betreedt u de royale en lichte woonkamer, waar grote raampartijen zorgen voor veel natuurlijk licht en een ruimtelijk gevoel. Centraal in de woonkamer bevindt zich een open haard, die niet alleen warmte biedt, maar ook bijdraagt aan een sfeervolle en gezellige uitstraling.
De keuken sluit naadloos aan op de woonkamer en biedt voldoende ruimte voor het dagelijks gebruik. Aansluitend bevindt zich de serre met openslaande deuren naar de tuin, waar u het hele jaar door van het buitenleven en het uitzicht kunt genieten, ongeacht het seizoen.

Comfort en levensloopbestendig wonen
De woning is rolstoeltoegankelijk en voorzien van elektrische deuren, die moeiteloos openen en extra gemak bieden. Op de begane grond bevinden zich bovendien een slaapkamer en een royale badkamer, waardoor wonen op de begane grond mogelijk is en het levensloopbestendige karakter volledig tot zijn recht komt.
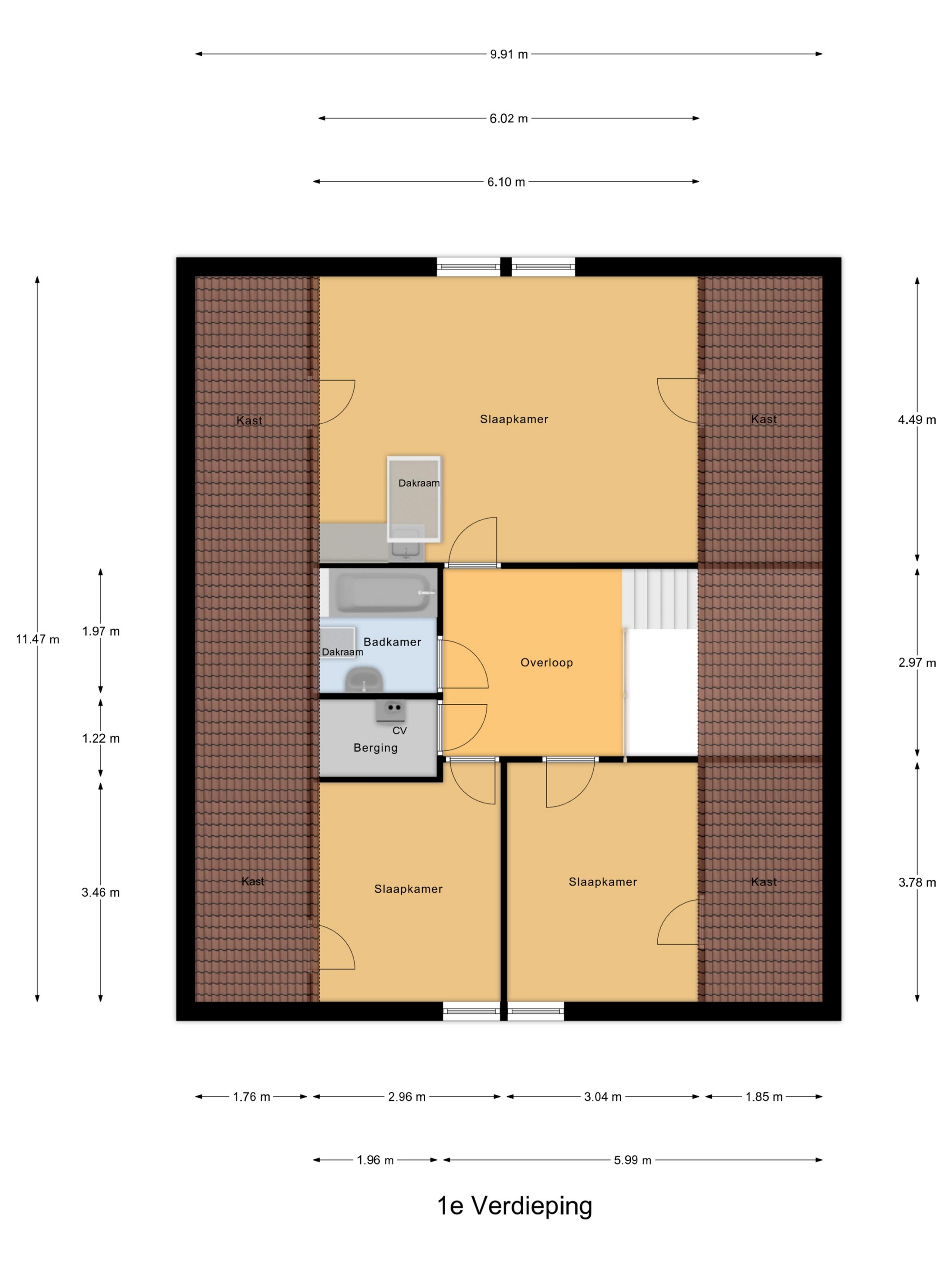
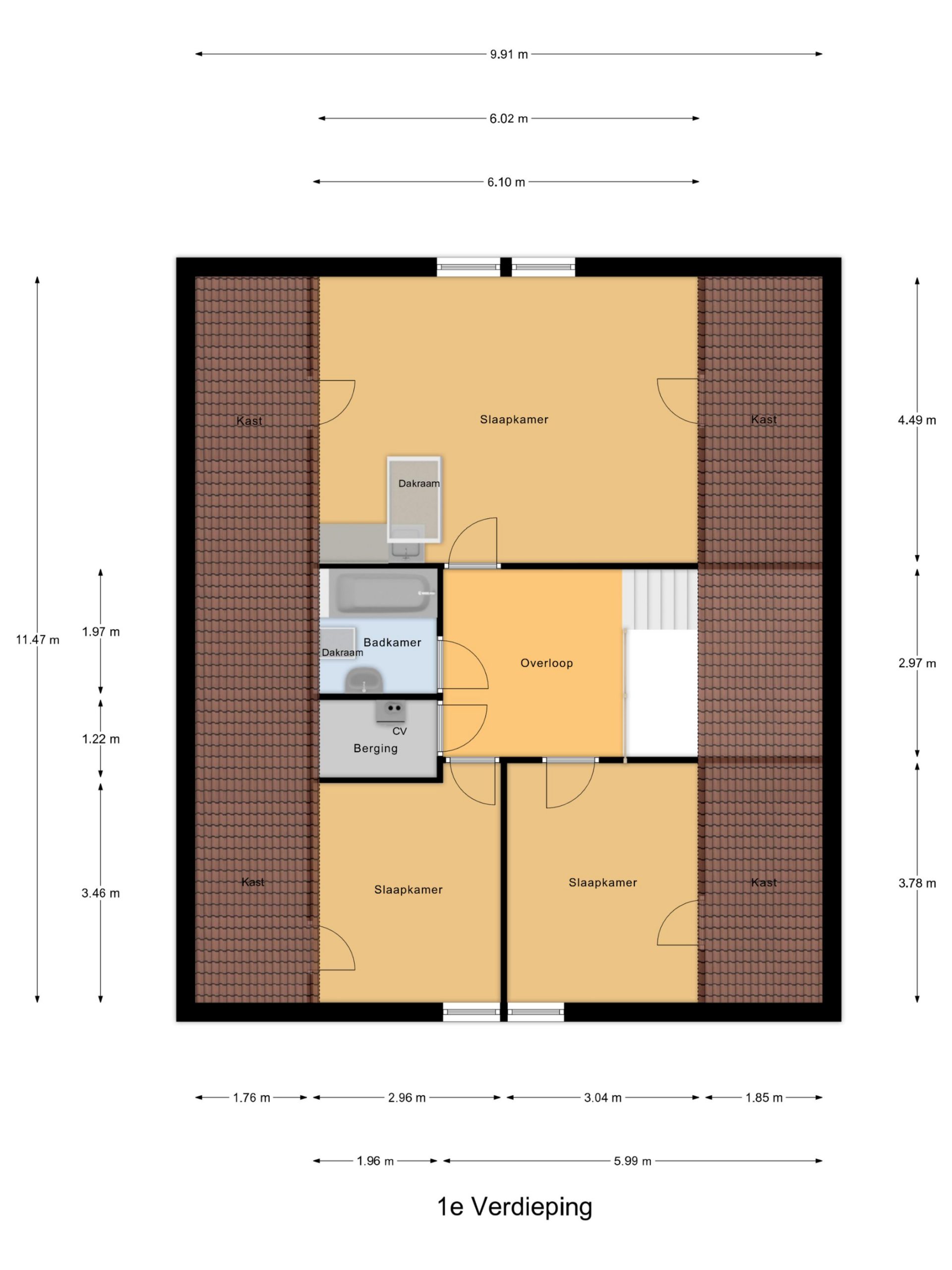
Op de eerste verdieping bevinden zich drie ruime slaapkamers. Eén van deze kamers is bijzonder royaal en voorzien van een keukenblokje met wateraansluiting, ideaal om in te richten als extra slaapkamer, hobbyruimte of werkruimte. Daarnaast is er een tweede badkamer op deze verdieping, uitgerust met een wastafel, douche en ligbad, voor extra comfort.

Tuin en buitenruimte
De beschutte en vrij gelegen tuin op het zuidwesten biedt volop ruimte om meerdere gezellige zitplekken te creëren, zodat u altijd kunt kiezen voor zon of schaduw. Het is een heerlijke plek om te genieten van het buitenleven.
De bungalow beschikt verder over een dubbele oprit, een carport en een garage met elektrische deur. De garage is momenteel niet in gebruik als garage, maar kan eenvoudig weer in oorspronkelijke staat worden hersteld. De ruimte biedt voldoende plek voor een auto, fietsen en extra opslag, waardoor uw woning altijd netjes en geordend blijft. Hier bevindt zich tevens de aansluiting voor de wasapparatuur.

KENMERKEN:
Bouwjaar: 1974
Woonoppervlakte: 184m²
Perceeloppervlakte: 617m²
Inhoud: 810m³
Energielabel: D

Bent u geïnteresseerd in deze woning? Maak dan gerust een afspraak! Wij nemen graag de tijd om deze woning aan u te laten zien: 0341-553773. De brochure en alle overige informatie is tevens te downloaden op onze website. (mnm.nl)

ERMELO
Ermelo is een geliefde plaats om te wonen en dat is geen wonder. Hier vindt u niet alleen de aangename sfeer van een dorp, maar ook veel eigentijdse voorzieningen. Het gezellige centrum herbergt een ruime keuze aan winkels, van de bekende grote ketens tot verrassende speciaalzaakjes. Er zijn leuke cafés, terrasjes en restaurants en iedere dinsdag ochtend is het markt. Ook aan ander voorzieningen ontbreekt het niet in Ermelo. Er zijn bijvoorbeeld volop sport- en andere verenigingen en meerdere scholen voor basis- en voortgezet onderwijs. Het unieke van Ermelo is dat het met de voetjes aan het water ligt, “Het Wolderwijd”, en met de rug tegen de uitgestrekte Veluwse bossen.
Daarom zijn er volop watersport mogelijkheden en kan men in de bossen heerlijk mountainbiken of wandelen. Ten zuidoosten van Ermelo ligt de Ermelosche Heide, een 343 ha groot terrein, dat grotendeels in gebruik is als natuurterrein en beschikbaar is voor dagrecreatie. Het terrein wordt doorkruist door fiets-, wandel- en ruiterpaden. De heide wordt begraasd door een eigen schaapskudde. Door de aanwezigheid van zowel een treinstation als de ligging nabij de A-28 is Ermelo vanuit alle windstreken uitstekend bereikbaar.
 

Kenmerken

Overdracht

  • StatusOnder bod
  • Vraagprijs€ 695.000,- k.k.
  • AanvaardingIn overleg

Bouwvorm

  • Soort objectWoonhuis
  • Soort woningBungalow
  • Type woningVrijstaande woning
  • Bouwjaar1974
  • BouwvormBestaande bouw
  • LiggingenAan rustige weg, In woonwijk, Beschutte ligging, In bosrijke omgeving

Indeling

  • Woonoppervlakte184 m2
  • Perceeloppervlakte617 m2
  • Inhoud810 m3
  • Aantal kamers6
  • Aantal slaapkamers4
  • Aantal badkamers2

Energie

  • EnergieklasseD
  • VerwarmingCV ketel, Vloerverwarming gedeeltelijk
  • C.V.-KetelAtag 28ECZ
  • Bouwjaar C.V.-Ketel2023
  • WarmwaterCV ketel
  • IsolatieDakisolatie, Dubbelglas
  • CombiketelJa
  • BrandstofGas
  • EigendomEigendom

Buitenruimte

  • TuinTuin rondom
  • HoofdtuinTuin rondom
  • AchteromJa

Parkeergelegenheid

  • Parkeer faciliteitenOp eigen terrein
  • GarageGarage met carport
  • Capaciteit1
  • Garages1

Dak

  • Soort dakZadeldak
  • Materiaal dakPannen

Overig

  • Permanente bewoningJa
  • Onderhoud binnenRedelijk tot goed
  • Onderhoud buitenRedelijk tot goed
  • Huidig gebruikWoonruimte
  • Huidige bestemmingWoonruimte

Plattegrond

Hoofdvideo

360º afbeeldingen

Vergelijkbare woningen