Skip to content
Contact Plan een bezichtiging

Smutslaan 40

3851 ZA, Ermelo

€ 395.000,- k.k.
  • 119 m2 / 153 m2
  • 6 kamers
  • 4 slaapkamers
  • 1 badkamer
  • Onder bod

Omschrijving

WONING MET POTENTIE NABIJ HET BOS & DE HEIDE

Deze tussenwoning in Ermelo is precies wat je zoekt: ruimte en alle voorzieningen dichtbij. Winkels, scholen, sportvelden en de heide. Je loopt of fietst er zo heen. Een huis met karakter, een fijne sfeer en volop mogelijkheden om het helemaal naar je eigen smaak te maken.

BELANGRIJKSTE KENMERKEN
• Woning met potentie – in te richten naar jouw eigen stijl
• Nabij het bos & de heide
• Ruime eengezinswoning met praktische indeling
• Vier slaapkamers
• Energielabel C

EEN HUIS WAAR JE JE SNEL THUIS VOELT
De woning ligt in een rustige, kindvriendelijke buurt van Ermelo. Zodra je binnenstapt, zie je dat dit een huis is met potentie. De woonkamer is licht en ruim, met een prettige doorzonindeling en zicht op zowel de straat als de achtertuin. Er is genoeg ruimte voor een gezellige zithoek en een grote eettafel. De keuken ligt aan de achterzijde en geeft ook de toegang tot de tuin.

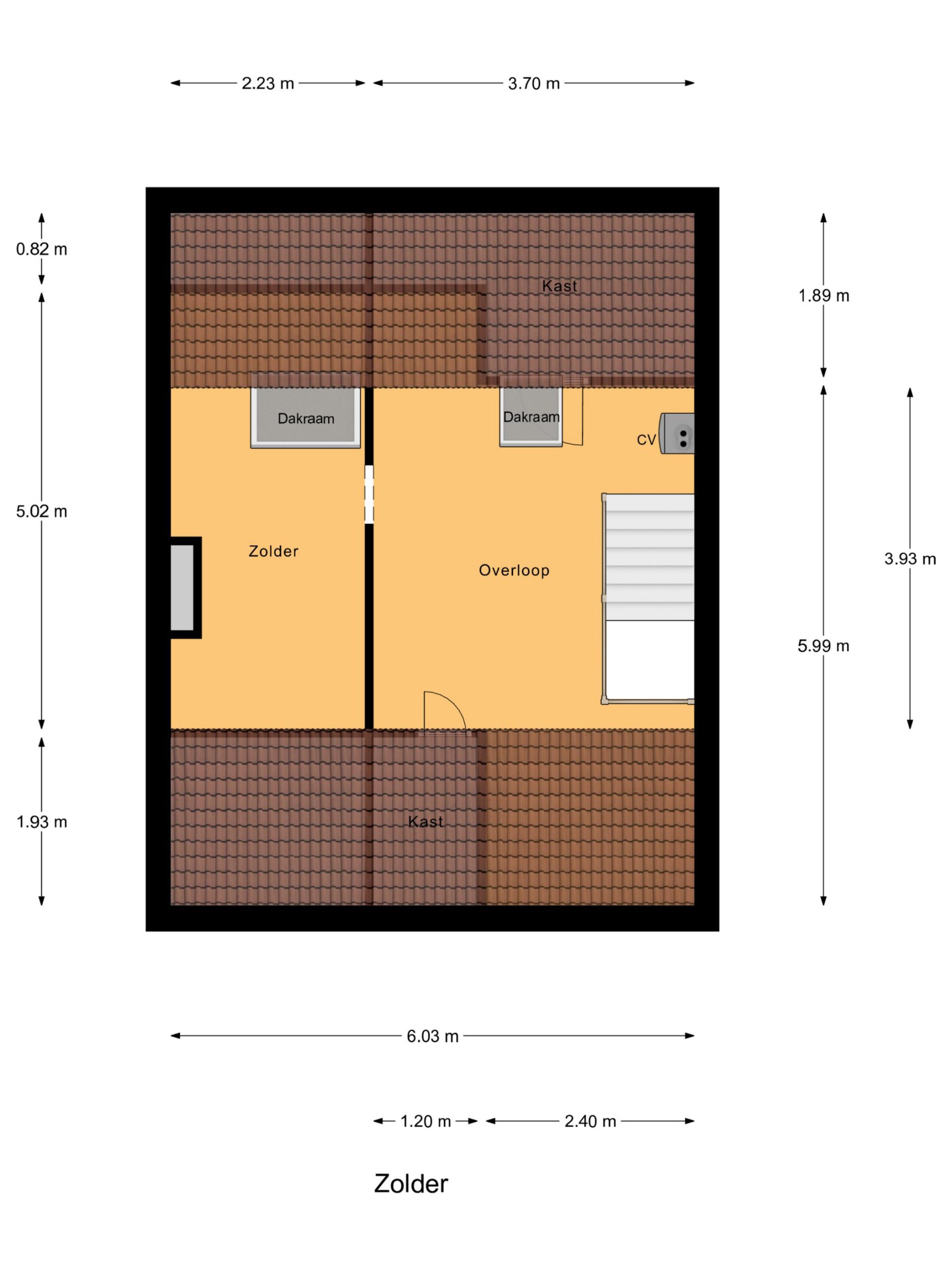
Op de eerste verdieping vind je 4 slaapkamers en de badkamer. De kamers zijn stuk voor stuk goed van formaat, ideaal voor het gezin, een werkkamer of logeerkamer. De zolder is groot genoeg om in te richten als wasruimte, kantoor of een extra slaapkamer.
De achtertuin ligt op het noorden en biedt een fijne mix van zon en schaduw. Met wat planten, een terras en een paar stoelen maak je er al snel een plek van waar je graag zit. Op zomerdagen kun je er rustig ontbijten, terwijl je in de middag nog wat zon meepakt.

Met een perceeloppervlak van 153 m² en een ruim woonoppervlak van 119 m² heb je hier alle ruimte die je nodig hebt. De ligging is ideaal: dichtbij het centrum van Ermelo, scholen, speeltuinen en natuurlijk de uitgestrekte Ermelose heide. Binnen een paar minuten sta je midden in de natuur. Een heerlijke plek om te wandelen of fietsen.

EEN GOEDE BASIS VOOR DE TOEKOMST
Deze woning heeft alles in zich om jouw volgende thuis te worden. De basis is degelijk, de ruimtes zijn goed ingedeeld en de ligging is uitstekend. Met wat aandacht en jouw eigen stijl kun je hier echt iets moois van maken.

Aanvaarding in overleg.

Wij nemen graag de tijd om deze woning aan u te laten zien: 0341-553773
De brochure en alle overige informatie is tevens te downloaden op onze website. (mnm.nl)

ERMELO
Ermelo is een geliefde plaats om te wonen en dat is geen wonder. Hier vindt u niet alleen de aangename sfeer van een dorp, maar ook veel eigentijdse voorzieningen. Het gezellige centrum herbergt een ruime keuze aan winkels, van de bekende grote ketens tot verrassende speciaalzaakjes. Er zijn leuke cafés, terrasjes en restaurants en iedere dinsdag ochtend is het markt. Ook aan ander voorzieningen ontbreekt het niet in Ermelo. Er zijn bijvoorbeeld volop sport- en andere verenigingen en meerdere scholen voor basis- en voortgezet onderwijs. Het unieke van Ermelo is dat het met de voetjes aan het water ligt, “Het Wolderwijd”, en met de rug tegen de uitgestrekte Veluwse bossen.
Daarom zijn er volop watersport mogelijkheden en kan men in de bossen heerlijk mountainbiken of wandelen. Ten zuidoosten van Ermelo ligt de Ermelosche Heide, een 343 ha groot terrein, dat grotendeels in gebruik is als natuurterrein en beschikbaar is voor dagrecreatie. Het terrein wordt doorkruist door fiets-, wandel- en ruiterpaden. De heide wordt begraasd door een eigen schaapskudde. Door de aanwezigheid van zowel een treinstation als de ligging nabij de A-28 is Ermelo vanuit alle windstreken uitstekend bereikbaar.

Kenmerken

Overdracht

  • StatusOnder bod
  • Vraagprijs€ 395.000,- k.k.
  • AanvaardingIn overleg

Bouwvorm

  • Soort objectWoonhuis
  • Soort woningEengezinswoning
  • Type woningTussenwoning
  • Bouwjaar1970
  • BouwvormBestaande bouw
  • LiggingenAan rustige weg, In woonwijk, In bosrijke omgeving

Indeling

  • Woonoppervlakte119 m2
  • Perceeloppervlakte153 m2
  • Inhoud416 m3
  • Aantal kamers6
  • Aantal slaapkamers4
  • Aantal badkamers1

Energie

  • EnergieklasseC
  • VerwarmingCV ketel
  • IsolatieDubbelglas
  • BrandstofGas
  • EigendomEigendom

Buitenruimte

  • TuinAchtertuin, Voortuin
  • AchteromNee

Bergruimte

  • Schuur / BergingVrijstaand steen
  • Totaal aantal1

Parkeergelegenheid

  • Parkeer faciliteitenOpenbaar parkeren

Dak

  • Soort dakZadeldak
  • Materiaal dakPannen

Overig

  • Permanente bewoningJa
  • Onderhoud binnenRedelijk tot goed
  • Onderhoud buitenRedelijk tot goed
  • Huidig gebruikWoonruimte
  • Huidige bestemmingWoonruimte

Plattegrond

Hoofdvideo

360º afbeeldingen

Vergelijkbare woningen