Skip to content
Contact Plan een bezichtiging

Stationsstraat 17 C

3851 NA, Ermelo

€ 398.000,- k.k.
  • 85 m2
  • 3 kamers
  • 2 slaapkamers
  • 1 badkamer
  • Beschikbaar

Omschrijving

WONEN OP EEN IDEALE LOCATIE IN HET CENTRUM VAN ERMELO? DIT IS JE KANS!

Dit appartement ligt in het centrum van Ermelo en is ideaal voor starters of voor wie graag alle voorzieningen binnen handbereik heeft. Met twee slaapkamers, een balkon aan de voorzijde, een dakterras aan de achterzijde én een eigen parkeerplaats, is dit misschien wel jouw nieuwe thuis.

HIGHLIGHTS VAN HET APPARTEMENT
•    Ruim, gelijkvloers appartement in het centrum
•    Twee slaapkamers
•    Balkon aan voorzijde en een dakterras aan achterzijde (zuiden)
•    Appartement heeft een eigen berging én eigen carport
•    Complex is voorzien van een liftinstallatie
•    Gezonde VvE

RUIM EN COMFORTABEL
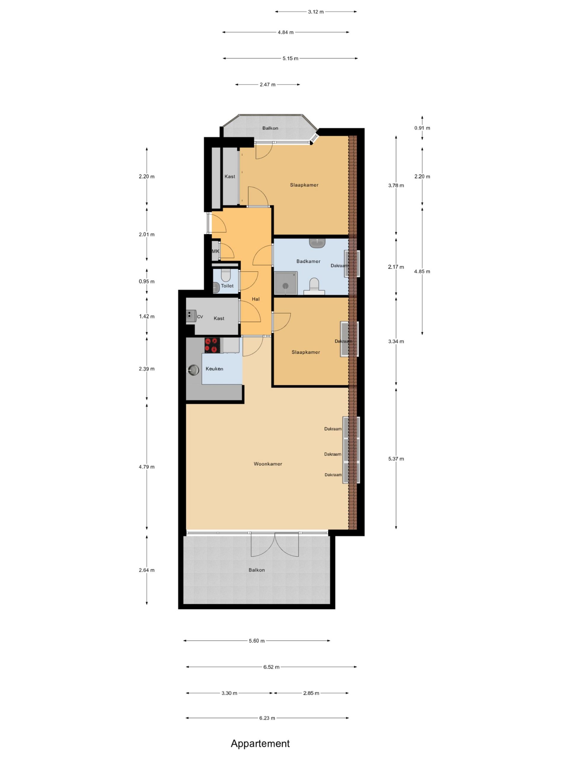
Met een woonoppervlak van circa 85 m² is dit appartement praktisch en efficiënt ingedeeld. De lichte woonkamer beschikt over grote raampartijen en openslaande deuren naar het op het zuiden gelegen dakterras, wat zorgt voor een prettige lichtinval en een ruimtelijke sfeer.
De keuken grenst direct aan de woonkamer en biedt voldoende werk- en kastruimte voor dagelijks gebruik. Dankzij de logische en overzichtelijke indeling is de keuken eenvoudig naar eigen smaak in te richten.

Het appartement heeft twee slaapkamers van goed formaat, waarbij één slaapkamer is voorzien van een balkon. De badkamer is ruim opgezet en uitgevoerd in een lichte kleurstelling, wat bijdraagt aan een frisse en verzorgde uitstraling.

Het appartement beschikt over een eigen berging én een eigen carport voor extra comfort. Het complex maakt deel uit van een gezonde VvE en is voorzien van een lift, wat zorgt voor optimale toegankelijkheid.

In de nabije toekomst worden de rode elementen aan de buitenzijde van het gebouw aangepast naar een grijstint, wat zal bijdragen aan een rustigere en meer eigentijdse uitstraling van het complex.

De locatie van het appartement is fantastisch te noemen. Van gezellige cafés en restaurants tot winkelstraten en openbaar vervoer; alles is op loopafstand. Hou je meer van de rust in de uitgestrekte natuur? Binnen enkele fietsminuten ben je op de prachtige en uitgestrekte Ermelosche heide. Klinkt dit als het perfecte appartement voor jou? Wacht niet langer en plan een bezichtiging!

KENMERKEN:
- Bouwjaar: 1997
- Woonoppervlakte: 85m²
- Inhoud: 285m³
- Energielabel: B

Ben je geïnteresseerd in deze woning? Maak dan gerust een afspraak!
Wij nemen graag de tijd om deze woning aan je te laten zien: 0341-553773

ERMELO
Ermelo is een geliefde plaats om te wonen en dat is geen wonder. Hier vindt u niet alleen de aangename sfeer van een dorp, maar ook veel eigentijdse voorzieningen. Het gezellige centrum herbergt een ruime keuze aan winkels, van de bekende grote ketens tot verrassende speciaalzaakjes. Er zijn leuke cafés, terrasjes en restaurants en iedere dinsdag ochtend is het markt. Ook aan andere voorzieningen ontbreekt het niet in Ermelo. Er zijn bijvoorbeeld volop sport- en andere verenigingen en meerdere scholen voor basis- en voortgezet onderwijs. Het unieke van Ermelo is dat het met de voetjes aan het water ligt, “Het Wolderwijd”, en met de rug tegen de uitgestrekte Veluwse bossen.
Daarom zijn er volop watersport mogelijkheden en kan men in de bossen heerlijk mountainbiken of wandelen. Ten zuidoosten van Ermelo ligt de Ermelosche Heide, een 343 ha groot terrein, dat grotendeels in gebruik is als natuurterrein en beschikbaar is voor dagrecreatie. Het terrein wordt doorkruist door fiets-, wandel- en ruiterpaden. De heide wordt begraasd door een eigen schaapskudde. Door de aanwezigheid van zowel een treinstation als de ligging nabij de A-28 is Ermelo vanuit alle windstreken uitstekend bereikbaar.

 

Kenmerken

Overdracht

  • StatusBeschikbaar
  • Vraagprijs€ 398.000,- k.k.
  • AanvaardingIn overleg

Bouwvorm

  • Soort objectAppartement
  • Soort appartementBovenwoning
  • Bouwjaar1997
  • BouwvormBestaande bouw
  • LiggingenIn centrum

Indeling

  • Woonoppervlakte85 m2
  • Inhoud285 m3
  • Aantal kamers3
  • Aantal slaapkamers2
  • Aantal badkamers1
  • Aantal woonlagen1

Energie

  • EnergieklasseB
  • VerwarmingCV ketel
  • C.V.-KetelRemeha Tzerra M285 CW4
  • Bouwjaar C.V.-Ketel2013
  • WarmwaterCV ketel
  • IsolatieDakisolatie, HR glas
  • CombiketelJa
  • BrandstofGas
  • EigendomEigendom

Buitenruimte

  • TuinZonneterras
  • AchteromNee
  • Kwaliteit tuinNormaal

Bergruimte

  • Schuur / BergingVrijstaand steen
  • VoorzieningenVoorzien van elektra
  • Totaal aantal1

Parkeergelegenheid

  • Parkeer faciliteitenOp eigen terrein
  • GarageCarport

Dak

  • Soort dakPlat dak
  • Materiaal dakBitumineuze Dakbedekking

Overig

  • Permanente bewoningJa
  • Onderhoud binnenGoed
  • Onderhoud buitenGoed
  • Huidig gebruikWoonruimte
  • Huidige bestemmingWoonruimte

Plattegrond

Hoofdvideo

360º afbeeldingen

Vergelijkbare woningen