Skip to content
Contact Plan een bezichtiging

Sleedoornweg ong.

3886 MS, Garderen

Verkocht bij inschrijving
  • 65.650 m2
  • Verkocht bij inschrijving

Omschrijving

Namens onze opdrachtgever mogen wij u aanbieden een PERCEEL AGRARISCHE GROND. De grond wordt aangeboden middels een (besloten) vrijwillige verkoop bij inschrijving. De voorwaarden en condities die voor deze inschrijving gelden leest u terug in deze brochure.

Het biedingsformulier, welke te verkrijgen is via ons kantoor, is in te leveren t/m woensdag 15 oktober 2025 tot 17:00 uur bij Midden Nederland Makelaars Barneveld, Kampstraat 32 te Barneveld of per e-mail: aog@mnm.nl (met ontvangstbevestiging versturen).

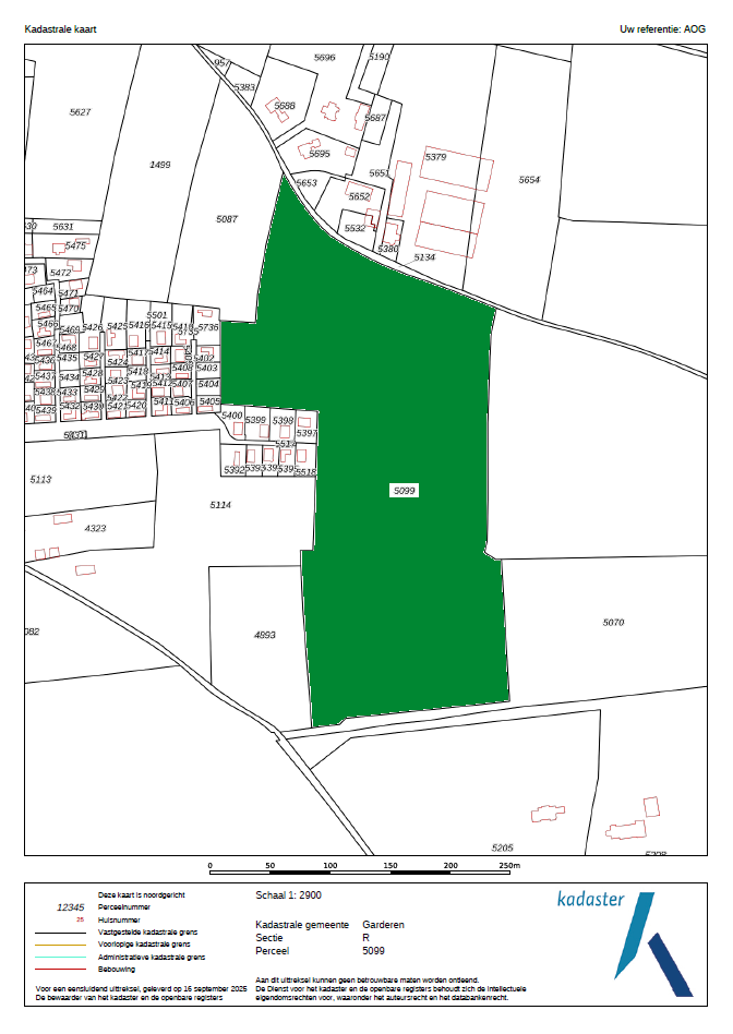
Kadastrale informatie: kadastraal bekend bij de gemeente Garderen, sectie R, nummer 5099, totaal groot ca. 65.650 m².

Bestemming: voor het perceel geldt de bestemming \"agrarisch zonder bebouwingsmogelijkheden\".

Bijzonderheden: de koper dient het agrarisch gebruik voort te zetten i.v.m. het verkrijgen van vrijstelling art. 15.1.q. bij aankoop in 2023.

Kenmerken

Overdracht

  • StatusVerkocht bij inschrijving
  • AanvaardingIn overleg
  • VraagprijsVerkocht bij inschrijving

Bouwvorm

  • BouwvormNiet van toepassing

Indeling

  • Perceeloppervlakte65.650 m2

Energie

  • CombiketelJa

Overig

  • Permanente bewoningJa

Kadastrale gegevens

  • GemeenteGarderen
  • SectieR
  • Perceelnummer5099
  • Oppervlakte65.650 m2
  • EigendomssituatieVolle eigendom