Skip to content
Contact Plan een bezichtiging

Stortemelk 18

3844 LH, Harderwijk

€ 375.000,- k.k.
  • 100 m2
  • 4 kamers
  • 2 slaapkamers
  • 1 badkamer
  • Verkocht o.v.

Omschrijving

RUIME MAISONNETTE MET TUIN, IDEAAL VOOR STARTERS IN HARDERWIJK

Ben je starter en zoek je een plek waar je betaalbaar, rustig én toch lekker stads kunt wonen? Deze maisonnette in Harderwijk is precies wat je zoekt. Licht, ruim en verrassend praktisch.

HIGHLIGHTS
- Royale maisonnettewoning verdeeld over twee verdiepingen: Licht en ruim appartement met een open, luchtige sfeer
- Verrassend grote tuin met vrij uitzicht
- Ideale bijkeuken met aansluitingen voor wasmachine en droger
- Twee comfortabele slaapkamers met mogelijkheid tot het creëren van een derde slaapkamer.
- Privé parkeerplaats direct voor je eigen deur

Deze maisonnette voelt meteen logisch als je binnen komt: alles klopt, is ruim genoeg en gemakkelijk in gebruik. Zo pakt de woonkamer veel licht, de keuken is praktisch ingericht en de bijkeuken met wasmachine-aansluiting is de kers op de taart: hier berg je alles op achter gesloten deuren.

De beide slaapkamers op de eerste verdieping zijn ruim bemeten en daarnaast is er mogelijkheid om een derde slaapkamer te creëren op de plek waar nu de thuiswerkplek zich bevindt.

Vanuit de woonkamer heb je volop zicht op de royale tuin, hier heb je vrij uitzicht en veel privacy door zijn ligging. Een fijne plek om buiten te zijn en te ontspannen of familie en vrienden uit te nodigen. De tuin is onderhoudsvriendelijk aangelegd, groene vingers zijn dus niet nodig!

De actieve VvE zorgt ervoor dat alles rondom het gebouw netjes geregeld blijft. En omdat je vlak bij het centrum en het station van Harderwijk woont, zit je overal zo: winkels, horeca, trein: alles is binnen handbereik.

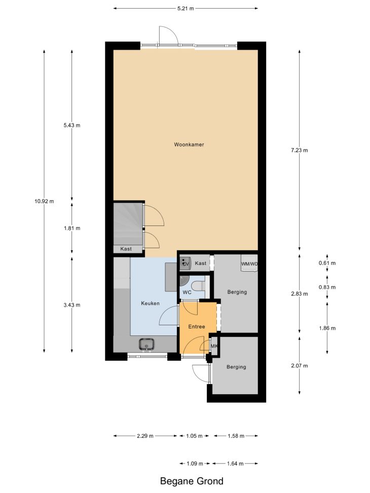
Indeling:
Begane grond:

Entree, hal, toilet met fonteintje, berging met wasmachine-aansluiting, halfopen keuken met fornuis, afzuigkap, oven koel-vriescombinatie en vaatwasser, woonkamer met toegang tot de trapopgang naar de eerste verdieping en toegang tot de op het zuidoosten gelegen achtertuin.

Eerste verdieping:
Overloop met ruimte voor een thuiswerkplek, hobbyruimte of 3e slaapkamer, 2 ruime slaapkamers waarvan 1 met balkon, ingebouwde kastruimte, badkamer met toilet, ligbad en wastafel.

Aanvaarding in overleg

Bent u geïnteresseerd in deze woning?
Maak dan snel een afspraak!
Wij nemen graag de tijd om deze woning aan u te laten zien: 0341-411541
De brochure en alle overige informatie is tevens te downloaden op onze website. (mnm.nl)

Harderwijk/Hierden
Alles wat Harderwijk te bieden heeft is binnen handbereik. Je kunt sporten en recreëren naar hartenlust. Aan het water of in het bos? Het kan allebei. Daarnaast heeft het een gezellige, historisch centrum. Hier is het gezellig shoppen in de pittoreske straatjes met oude geveltjes, terrassen en een nog groeiend gevarieerd winkelaanbod. Er zijn tal van leuke koffieadresjes en restaurants, waarvan twee zelfs met een Michelin-ster. Verder is het op zonnige dagen goed toeven op een van de vele terrassen op de Boulevard of de sfeervolle stadspleinen. In Harderwijk is altijd wel wat te beleven.
In Hierden kun je genieten van de ruime opgezette omgeving met veel weilanden en groen om je heen.

Vakantie, de bossen van de Veluwe, het water van Wolderwijd en Veluwemeer, paling, dolfijnen….Harderwijk roept bij veel mensen herinneringen op. Oudere generaties zien weer de beelden voor zich van houten zeilbotters waarmee de vissers op de Zuiderzee paling verschalkten. Jongere generaties kennen Harderwijk van zijn jachthavens en de schitterende surfmogelijkheden op de uitgestrekte maar veilig ondiepe Randmeren. Tot uit Duitsland komen surfers, zomer en winter. Toerisme is een belangrijk kenmerk van Harderwijk. U vindt er het Dolfinarium met ongeveer een miljoen bezoekers per seizoen en de palingvissers en –rokers. En dan is er nog de sfeervolle oude binnenstad: bezoek er het Stadsmuseum Harderwijk, ga op ontdekkingsreis met de Stadsgidsen tijdens een van de dagelijkse rondleidingen. Maak eens een rondvaart of neem een kijkje in molen De Hoop. Harderwijk toeristenstad? Jazeker, maar Harderwijk is méér.

Woonstad
Harderwijk heeft zo’n 49.000 inwoners. Voor al deze mensen heeft de gemeente een groot aanbod van instellingen, (sport)verenigingen, winkels en horecagelegenheden. Voorts zijn er faciliteiten zoals zwembaden, bibliotheek, musea en diverse kunstgaleries. Ook is er een keur aan scholen voor het basis- en voortgezet onderwijs.

Kenmerken

Overdracht

  • StatusVerkocht o.v.
  • Vraagprijs€ 375.000,- k.k.
  • AanvaardingIn overleg

Bouwvorm

  • Soort objectAppartement
  • Soort appartementMaisonnette
  • Bouwjaar1979
  • BouwvormBestaande bouw
  • LiggingenAan water, In woonwijk

Indeling

  • Woonoppervlakte100 m2
  • Inhoud343 m3
  • Aantal kamers4
  • Aantal slaapkamers2
  • Aantal badkamers1
  • Aantal woonlagen1

Energie

  • EnergieklasseB
  • VerwarmingCV ketel
  • C.V.-KetelNefit
  • Bouwjaar C.V.-Ketel2019
  • WarmwaterCV ketel
  • IsolatieDubbelglas
  • CombiketelJa
  • BrandstofGas
  • EigendomEigendom

Buitenruimte

  • TuinAchtertuin
  • AchteromNee

Bergruimte

  • Schuur / BergingAangebouwd steen
  • VoorzieningenVoorzien van elektra
  • Totaal aantal1

Parkeergelegenheid

  • Parkeer faciliteitenOp eigen terrein

Dak

  • Soort dakPlat dak

Overig

  • Permanente bewoningJa
  • Onderhoud binnenGoed
  • Onderhoud buitenGoed
  • Huidig gebruikWoonruimte
  • Huidige bestemmingWoonruimte

Plattegrond

Hoofdvideo

360º afbeeldingen

Vergelijkbare woningen