Skip to content
Contact Plan een bezichtiging
Buitengewoon

Laarweg 9 A

6732 DG, Harskamp

€ 1.595.000,- k.k.
  • 368 m2 / 9.430 m2
  • 9 kamers
  • 6 slaapkamers
  • 2 badkamers
  • Onder bod

Omschrijving

Tussen de dorpen Wekerom en Harskamp ligt deze prachtige, geheel onderkelderde woning in boerderijstijl uit 2002. De woning is degelijk gebouwd, uitstekend onderhouden en gelegen op een royaal perceel met een fraai tuinhuis/veranda, ruime schuur en een verzorgde tuin rondom.
 
De landelijke ligging biedt u alle rust en vrijheid, met een weids uitzicht over de omliggende landerijen. Tegelijkertijd geniet u van een centrale en goed bereikbare locatie: het dorpscentrum van Harskamp en Wekerom ligt op fietsafstand en steden als Ede, Arnhem en Apeldoorn zijn binnen korte rijafstand bereikbaar. Ook de ligging ten opzichten van de rijkswegen A1 en A30 is gunstig, evenals een goede verbinding met openbaar vervoer (bus).
 
Een ideale plek voor wie landelijk wil wonen met ruimte, uitzicht en privacy, maar ook waarde hecht aan comfort en bereikbaarheid. Benieuwd naar de ruimte en sfeer van deze woning? Plan gerust een bezichtiging, u bent van harte welkom!
 
Omschrijving woning
Wat een ruimte biedt deze woning! Een degelijk gebouwd familiehuis met het volledige woonprogramma op de begane grond. Daarnaast is de woning geheel onderkelderd, wat extra mogelijkheden biedt voor slaapkamers, hobbyruimte of bergruimte. De woning is deels voorzien van vloerverwarming en kenmerkt zich door een warme, landelijke uitstraling met moderne gemakken.
 
Indeling woning
Begane grond
De landelijke keuken, gesitueerd aan de achterzijde van de woning, vormt het hart van het huis. Via de schuifpui is er direct toegang tot het terras en de tuin, waardoor binnen en buiten mooi in elkaar overlopen.
 
Het keukenblok is uitgevoerd in landelijke stijl met een natuurstenen aanrechtblad en voorzien van diverse inbouwapparatuur, waaronder een inductiekookplaat met aparte wokbrander, 1½ spoelbak, afzuiginstallatie, vaatwasser, koelkast en combimagnetron-oven.
Ensuite bevindt zich de lichte woonkamer met een sfeervolle schouw met gashaard en fraaie erkers die een prachtig uitzicht bieden over de tuin.
 
Grenzend aan de keuken is er een praktische bijkeuken met achterentree en toegang tot het souterrain. In de bijkeuken bevindt zich de aansluiting voor witgoedapparatuur, handig en overzichtelijk geplaatst.
 
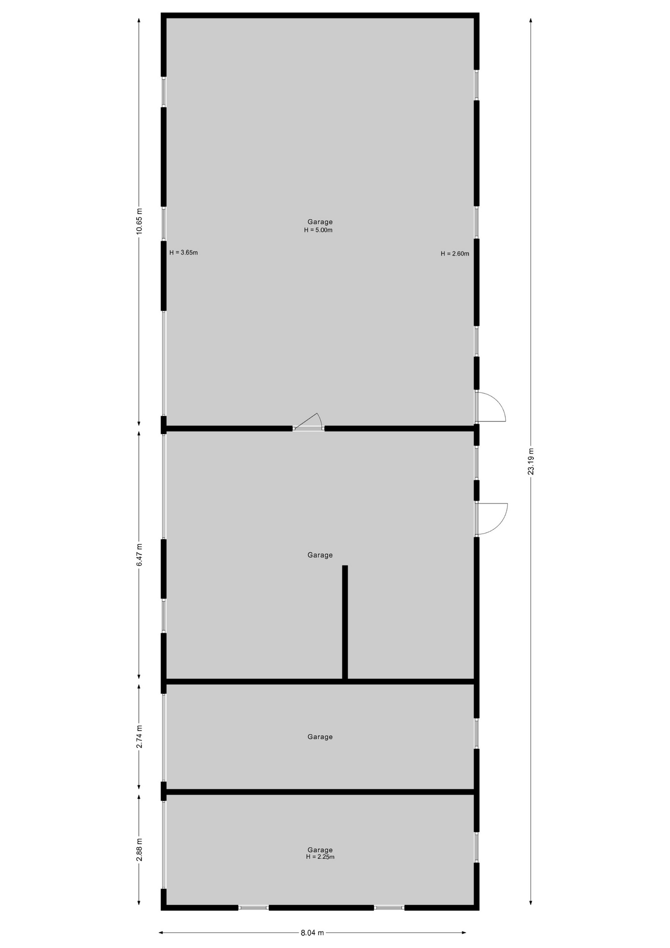
Vanuit de bijkeuken is de inpandige garage bereikbaar, voorzien van een elektrisch bedienbare garagedeur met afstandsbediening.
 
Aan de voorzijde komt u de woning binnen in  een ruime hal met trapopgang, meterkast en toilet met fonteintje. Op de begane grond bevindt zich tevens een slaapkamer (momenteel in gebruik als kantoorruimte) met vaste kast en een aangrenzende badkamer in neutrale kleurstelling, voorzien van douche, designradiator, wastafel met badkamermeubel en vloerverwarming.
 
Eerste verdieping
Op de verdieping bevindt zich een ruime overloop met inbouwkast. De ouderslaapkamer is voorzien van een dakkapel en een inloopkast.  Verder zijn er nog drie royale slaapkamers, waarvan twee aan de achterzijde met toegang tot het balkon en één aan de voorzijde van de woning.
 
De badkamer is luxe uitgevoerd met een ligbad, toilet, urinoir, douchecabine, designradiator en wastafelmeubel.
 
Souterrain
De woning is geheel onderkelderd, wat zorgt voor veel extra leefruimte.

In het souterrain vindt u een hal met provisiekast, een hobbyruimte met bar, een fitnessruimte, slaapkamer, een toilet en berging. Deze verdieping is ideaal te gebruiken voor ontspanning, werk of hobby.
 
Bijgebouwen en tuin
Tuinhuis/veranda
De ruime en recent gebouwde veranda vormt het hart van het buitenleven. Zowel in de zomer als in de winter is dit een heerlijke plek om te ontspannen en te genieten. Naast een sfeervolle zithoek is de veranda uitgerust met een luxe keukenblok voorzien van diverse inbouwapparatuur. Terwijl u geniet van de warmte van de houtkachel, kijkt u door de glazen schuifpui uit over de fraai aangelegde tuin, waar de kinderen veilig kunnen spelen. Bovendien beschikt de veranda over toiletvoorzieningen, wat dit buitenverblijf extra praktisch maakt.
 
Schuur
Op het erf staat een ruime, vrijstaande schuur die tal van gebruiksmogelijkheden biedt. Deze ruimte is ideaal als werkplaats, opslagruimte, extra garage of als stalling voor hobbymatig vee. Het gebouw is degelijk uitgevoerd en voorzien van een geïsoleerd dak met zonnepanelen, wat bijdraagt aan een duurzaam en energiezuinig geheel.
 
Tuin
Het erf en de tuin zijn met zorg aangelegd en ingericht. De oprit wordt afgesloten met een elektrisch bedienbare toegangspoort, wat zorgt voor gemak en veiligheid.
 
De tuin beschikt over een beregeningsinstallatie met eigen watervoorziening, zodat het gazon en de beplanting altijd in optimale conditie blijven.
Het achterste gedeelte van het perceel bestaat uit cultuurgrond, die uitstekend geschikt is als voor het houden van vee.
 
Nutsvoorzieningen
Aangesloten op de nutsvoorzieningen van gas, water en elektra. Tevens aangesloten op de riolering.
 
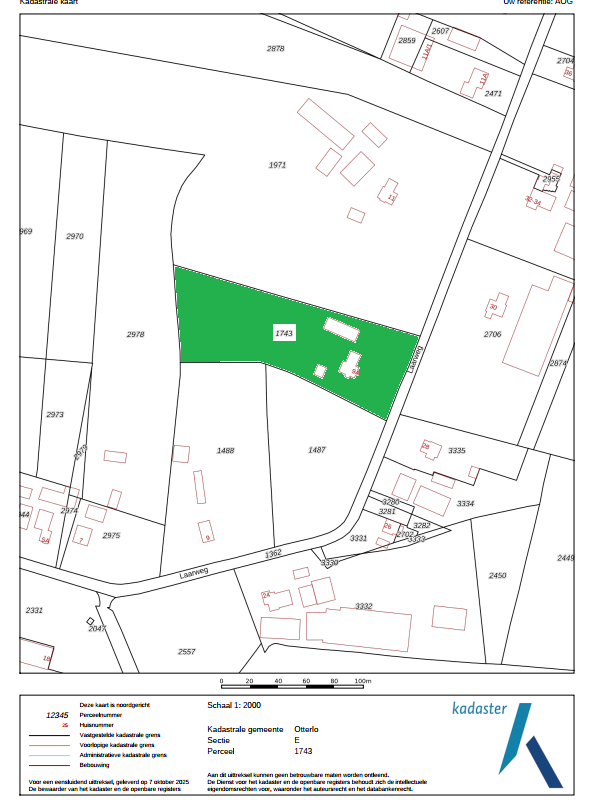
Kadastrale informatie
Kadastraal bekend gemeente Otterlo, sectie E, nummer 1743, groot 9.430 m².
 
Bestemmingsplan informatie:
De bestemming is wonen met agrarische nevenactiviteit. De achterliggende cultuurgrond heeft een agrarische bestemming zonder bebouwingsmogelijkheden.
 
Overige informatie is via ons kantoor op te vragen.

Kenmerken

Overdracht

  • StatusOnder bod
  • Koopprijs€ 1.595.000,- k.k.
  • AanvaardingIn overleg

Bouwvorm

  • Soort objectWoonhuis
  • ALV TypeWoonruimte
  • ALV SoortWoonruimte
  • Bouwjaar2002
  • BouwvormBestaande bouw
  • LiggingenVrij uitzicht, Buiten bebouwde kom, Landelijk gelegen

Indeling

  • Woonoppervlakte368 m2
  • Perceeloppervlakte9.430 m2
  • Inhoud1.543 m3
  • Aantal kamers9
  • Aantal slaapkamers6
  • Aantal badkamers2

Energie

  • VerwarmingCV ketel, Vloerverwarming gedeeltelijk, Gashaard
  • WarmwaterCV ketel
  • IsolatieDubbelglas, Volledig geïsoleerd
  • EigendomEigendom

Buitenruimte

  • TuinTuin rondom
  • HoofdtuinTuin rondom
  • Kwaliteit tuinFraai aangelegd

Bergruimte

  • Schuur / BergingVrijstaand steen
  • VoorzieningenVoorzien van elektra
  • Totaal aantal1

Dak

  • Soort dakSamengesteld dak
  • Materiaal dakPannen

Overig

  • Permanente bewoningJa
  • Onderhoud binnenGoed
  • Onderhoud buitenGoed

Kadastrale gegevens

  • GemeenteOtterlo
  • SectieE
  • Perceelnummer1743
  • Oppervlakte9.430 m2
  • EigendomssituatieVolle eigendom

Plattegrond

Video

360º afbeeldingen

Vergelijkbaar aanbod