Skip to content
Contact Plan een bezichtiging

Schaapskamp 11

3849 PS, Hierden

€ 1.150.000,- k.k.
  • 200 m2 / 2.080 m2
  • 8 kamers
  • 6 slaapkamers
  • 1 badkamer
  • Beschikbaar

Omschrijving

Gedeeltelijk GERENOVEERDE VILLA in rustige en NATUURRIJKE omgeving

Deze vrijstaande villa uit 1990 biedt ruimte, comfort en rust op een prettige locatie in Hierden. Een ideale woning voor doorstromers en gezinnen aangezien de woning volop woonruimte biedt en alle voorzieningen van het dorp Hierden en de stad Harderwijk binnen handbereik liggen. Desondanks geniet je hier van het natuurlijke karakter wat deze buurt kenmerkt. 

Unieke punten van deze woning: 
- Royale serre met vrij uitzicht over de tuin
- De badkamer en keuken zijn volledig vernieuwd in 2022
- De badkamer beschikt o.a. over vloerverwarming en een ligbad
- Inpandige garage met ruimte voor 2 auto's
- De tuin rondom de woning biedt altijd ruimte voor een plekje in de zon
- Gelegen in een rustig en kleinschalig woonhofje 

De woning beschikt over een royaal woonoppervlak en een praktische indeling. De woonkamer is licht en ruim en voorzien van een houtkachel en grote raampartijen die zorgen voor een prettige verbinding met buiten. Aansluitend bevindt zich de serre, een fijne plek om het hele jaar door van de tuin te genieten. Hier kijk je uit over het groen en ervaar je de rust die deze locatie kenmerkt.

De keuken is in 2022 volledig vernieuwd en uitgevoerd in een moderne stijl met landelijke elementen zoals het keukenblad. Een functionele en stijlvolle ruimte met voldoende werk- en bergruimte, geschikt voor zowel dagelijks gebruik als uitgebreid koken. Ook de badkamer is in 2022 vernieuwd en voorzien van een ligbad en vloerverwarming. Daarnaast beschikt de woning over twee separate toiletten en een wasruimte op de begane grond, wat het wooncomfort vergroot.

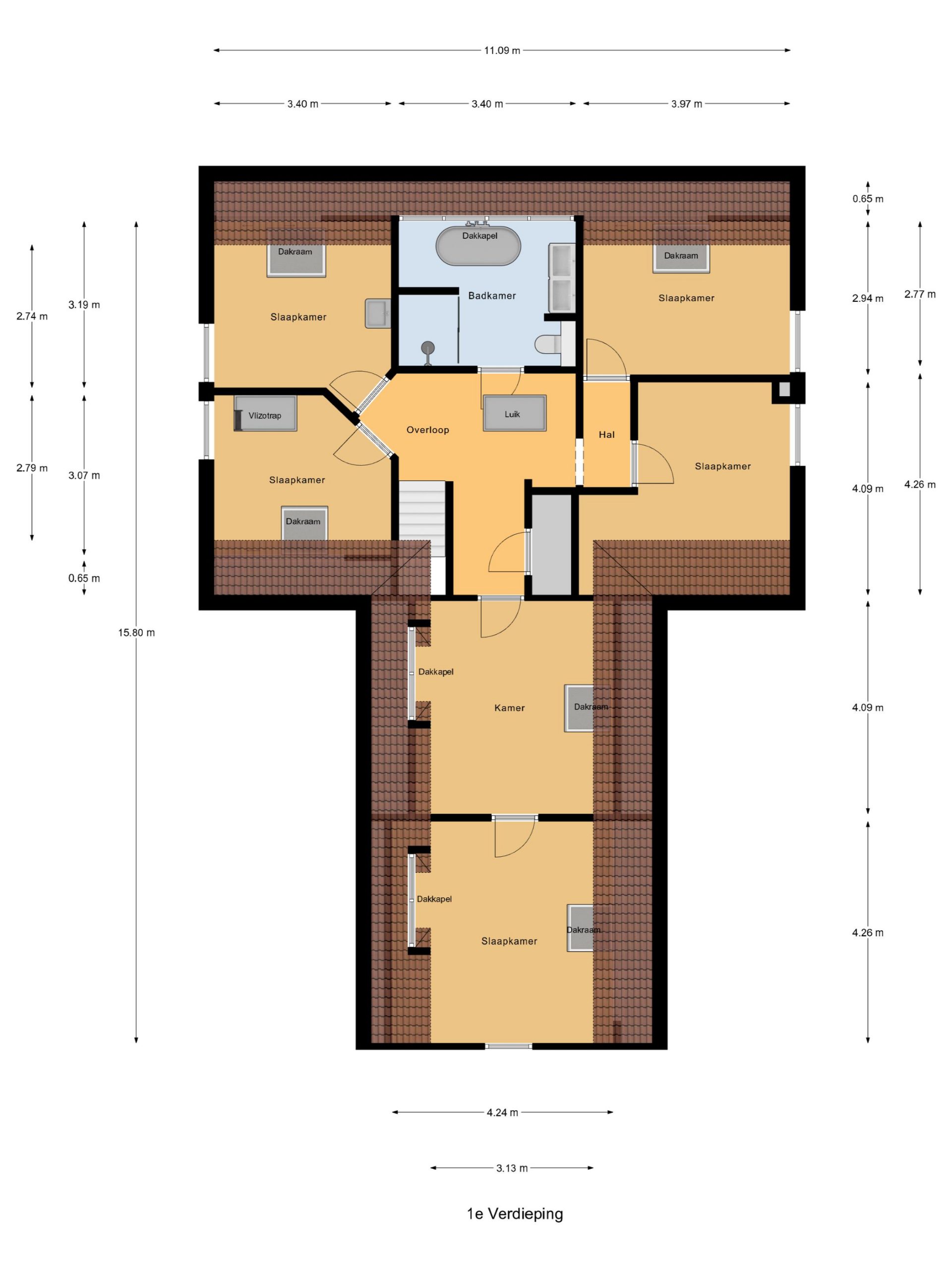
Met in totaal vijf slaapkamers is er volop ruimte voor verschillende woonwensen. Denk aan slaapkamers voor het gezin, een werkkamer, speel- of logeerkamer. De kamers zijn praktisch van formaat en goed in te delen, waardoor de woning flexibel blijft in gebruik. 

De tuin ligt volledig rondom de woning én gunstig ten opzichte van de zon, met daarbij veel privacy. Het perceel is ruim opgezet en geeft voldoende mogelijkheden om buiten te zitten, te spelen of te ontspannen. Creëer verschillende zithoekjes, op die manier geniet je de hele dag van de zon of juist de schaduw. Dankzij energielabel C woon je hier comfortabel met een prettig energieniveau voor een woning uit deze bouwperiode.

LIGGING & OMGEVING
De woning ligt op fietsafstand van de dorpskern van Hierden, waar je terechtkunt voor dagelijkse voorzieningen, scholen en horeca. De ligging in een woonhofje zorgt voor een rustige leefomgeving, terwijl je toch snel in de dorpskern en op uitvalswegen bent. De buurt Hierden De Biest staat bekend om haar groene en ruim opgezette karakter. Ook de stad Harderwijk is goed bereikbaar waardoor je gemakkelijk en snel kunt afwisselen tussen de rust van de omgeving en de gezellige drukte van de stad. 

Aanvaarding in overleg.

Bent u geïnteresseerd in deze woning? 
Maak dan snel een afspraak!
Wij nemen graag de tijd om deze woning aan u te laten zien: 0341-411541
De brochure en alle overige informatie is tevens te downloaden op onze website. (mnm.nl)

Harderwijk/Hierden
Alles wat Harderwijk te bieden heeft is binnen handbereik. Je kunt sporten en recreëren naar hartenlust. Aan het water of in het bos? Het kan allebei. Daarnaast heeft het een gezellige, historisch centrum. Hier is het gezellig shoppen in de pittoreske straatjes met oude geveltjes, terrassen en een nog groeiend gevarieerd winkelaanbod. Er zijn tal van leuke koffieadresjes en restaurants, waarvan twee zelfs met een Michelin-ster. Verder is het op zonnige dagen goed toeven op een van de vele terrassen op de Boulevard of de sfeervolle stadspleinen. In Harderwijk is altijd wel wat te beleven.
In Hierden kun je genieten van de ruime opgezette omgeving met veel weilanden en groen om je heen.

Vakantie, de bossen van de Veluwe, het water van Wolderwijd en Veluwemeer, paling, dolfijnen….Harderwijk roept bij veel mensen herinneringen op. Oudere generaties zien weer de beelden voor zich van houten zeilbotters waarmee de vissers op de Zuiderzee paling verschalkten. Jongere generaties kennen Harderwijk van zijn jachthavens en de schitterende surfmogelijkheden op de uitgestrekte maar veilig ondiepe Randmeren. Tot uit Duitsland komen surfers, zomer en winter. Toerisme is een belangrijk kenmerk van Harderwijk. U vindt er het Dolfinarium met ongeveer een miljoen bezoekers per seizoen en de palingvissers en –rokers. En dan is er nog de sfeervolle oude binnenstad: bezoek er het Stadsmuseum Harderwijk, ga op ontdekkingsreis met de Stadsgidsen tijdens een van de dagelijkse rondleidingen. Maak eens een rondvaart of neem een kijkje in molen De Hoop. Harderwijk toeristenstad? Jazeker, maar Harderwijk is méér. 

Woonstad 
Harderwijk heeft zo’n 49.000 inwoners. Voor al deze mensen heeft de gemeente een groot aanbod van instellingen, (sport)verenigingen, winkels en horecagelegenheden. Voorts zijn er faciliteiten zoals zwembaden, bibliotheek, musea en diverse kunstgaleries. Ook is er een keur aan scholen voor het basis- en voortgezet onderwijs.

Kenmerken

Overdracht

  • StatusBeschikbaar
  • Vraagprijs€ 1.150.000,- k.k.
  • AanvaardingIn overleg

Bouwvorm

  • Soort objectWoonhuis
  • Soort woningVilla
  • Type woningVrijstaande woning
  • Bouwjaar1990
  • BouwvormBestaande bouw
  • LiggingenAan rustige weg, In woonwijk, Landelijk gelegen

Indeling

  • Woonoppervlakte200 m2
  • Perceeloppervlakte2.080 m2
  • Inhoud829 m3
  • Aantal kamers8
  • Aantal slaapkamers6
  • Aantal badkamers1

Energie

  • EnergieklasseC
  • VerwarmingCV ketel, Vloerverwarming gedeeltelijk, Houtkachel
  • C.V.-KetelBosch 35 HRC
  • Bouwjaar C.V.-Ketel2011
  • WarmwaterCV ketel
  • IsolatieDakisolatie, Muurisolatie, Vloerisolatie, Volledig geïsoleerd, HR glas
  • CombiketelJa
  • BrandstofGas
  • EigendomEigendom

Buitenruimte

  • TuinTuin rondom
  • HoofdtuinTuin rondom
  • AchteromJa

Bergruimte

  • Totaal aantal1

Parkeergelegenheid

  • Parkeer faciliteitenOpenbaar parkeren, Op eigen terrein
  • GarageAangebouwd steen, Inpandig
  • Capaciteit2
  • Garages1

Dak

  • Soort dakZadeldak
  • Materiaal dakPannen

Overig

  • Permanente bewoningJa
  • Onderhoud binnenGoed
  • Onderhoud buitenGoed
  • Huidig gebruikWoonruimte
  • Huidige bestemmingWoonruimte

Plattegrond

Hoofdvideo

360º afbeeldingen

Vergelijkbare woningen