Skip to content
Contact Plan een bezichtiging

Moorselaar 51

3862 VA, Nijkerk

€ 439.000,- k.k.
  • 109 m2 / 160 m2
  • 5 kamers
  • 4 slaapkamers
  • 1 badkamer
  • Beschikbaar

Omschrijving

Ruime, lichte gezinswoning met vier slaapkamers in een kindvriendelijke buurt. 

Stap binnen bij Moorselaar 51, een charmante en goed onderhouden tussenwoning in Strijland-west. Deze fijne gezinswoning biedt een slimme indeling, verzorgde afwerking en een comfortabele leefomgeving met alle dagelijkse voorzieningen op korte afstand. Hier woon je rustig, maar toch dichtbij alles wat je nodig hebt, ideaal voor zowel starters als gezinnen.

Bij binnenkomst valt direct op hoe licht en ruim de woning is. De woonkamer is voorzien van grote raampartijen wat zorgt voor een prettige hoeveelheid natuurlijk daglicht. De open verbinding met de keuken zorgt voor een fijne sfeer. Boven vind je maar liefst vier slaapkamers, waardoor er voldoende ruimte is voor een gezin.

Moorselaar 51 ligt in een rustige straat met voornamelijk bestemmingsverkeer. In de directe omgeving vind je scholen, speeltuintjes, sportvoorzieningen en supermarkten. Het centrum van Nijkerk en het station zijn per fiets snel bereikbaar. Bovendien ben je met de auto zo op de A28 en A1.

Ben jij op zoek naar een fijne gezinswoning in een rustige buurt in Nijkerk? Dan is Moorselaar 51 absoluut een bezichtiging waard!

Indeling
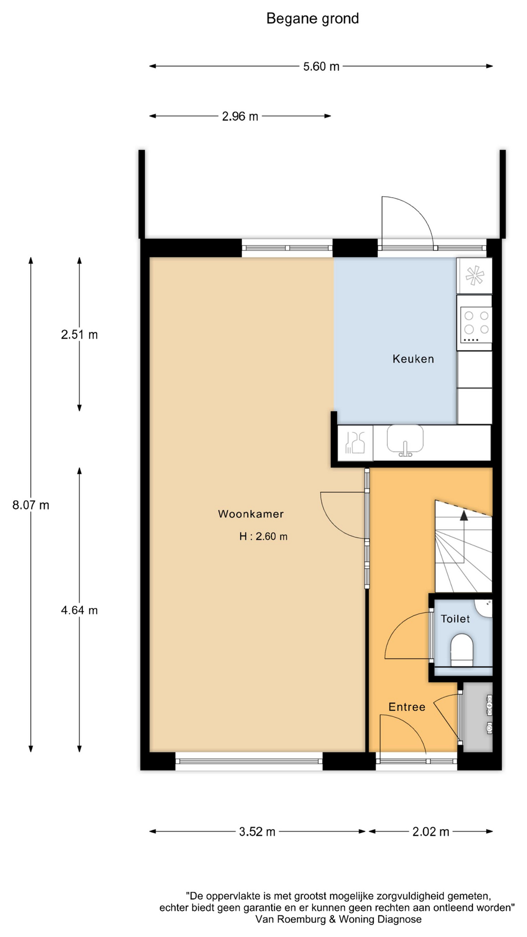
Begane grond:
Entree met toilet en trapopgang naar de eerste verdieping. Vanuit de hal bereik je de lichte en sfeervolle woonkamer met een fraaie houten vloer en raampartijen die voor veel daglicht zorgen. De ruime open keuken bevindt zich aan de achterzijde van de woning en is netjes afgewerkt. De keuken is uitgerust met diverse inbouwapparatuur, waaronder een inductiekookplaat, vaatwasser en oven. Daarnaast is er volop opbergruimte in de keukenkasten. Via de tuindeur in de keuken is er directe toegang tot de achtertuin. De achtertuin is verzorgd aangelegd en beschikt over een stenen berging en een overkapping. Er is een achterom, wat zorgt voor extra gemak. Direct naast de woning is voldoende parkeergelegenheid.

Eerste verdieping: Op de eerste verdieping bevinden zich drie slaapkamers. Eén van de slaapkamers beschikt over een praktische vaste kastenwand. De badkamer is compleet ingericht met een ligbad, aparte douche, wastafelmeubel en een tweede toilet.

Tweede verdieping: De zolderverdieping is verassend ruim en praktisch ingedeeld. Op de overloop is ruimte voor de wasmachine en droger. Daarnaast is hier een royale vierde slaapkamer gecreëerd, voorzien van een dakraam en voldoende opbergruimte in de vaste kasten en achter de knieschotten.

Pluspunten van de woning:
- Nette tussenwoning met 4 slaapkamers
- Fijne tuin met berging en achterom
- Rustige, kindvriendelijke ligging
- Nabij winkels, scholen en uitvalswegen
 

Kenmerken

Overdracht

  • StatusBeschikbaar
  • Vraagprijs€ 439.000,- k.k.
  • AanvaardingIn overleg

Bouwvorm

  • Soort objectWoonhuis
  • Soort woningEengezinswoning
  • Type woningTussenwoning
  • Bouwjaar1979
  • BouwvormBestaande bouw
  • LiggingenAan rustige weg, In woonwijk

Indeling

  • Woonoppervlakte109 m2
  • Perceeloppervlakte160 m2
  • Inhoud235 m3
  • Aantal kamers5
  • Aantal slaapkamers4
  • Aantal badkamers1

Energie

  • EnergieklasseC
  • VerwarmingCV ketel
  • C.V.-KetelRemeha
  • Bouwjaar C.V.-Ketel2013
  • WarmwaterCV ketel
  • IsolatieDakisolatie, Muurisolatie, Vloerisolatie, Gedeeltelijk dubbelglas
  • CombiketelJa
  • BrandstofGas
  • EigendomEigendom

Buitenruimte

  • TuinAchtertuin, Voortuin
  • HoofdtuinAchtertuin
  • Oppervlakte60 m2
  • Ligging hoofdtuinNoordwest
  • AchteromJa
  • Kwaliteit tuinFraai aangelegd

Bergruimte

  • Schuur / BergingVrijstaand steen
  • VoorzieningenVoorzien van elektra
  • IsolatieGeen isolatie
  • Totaal aantal1

Parkeergelegenheid

  • Parkeer faciliteitenOpenbaar parkeren

Dak

  • Soort dakZadeldak
  • Materiaal dakPannen

Overig

  • Permanente bewoningJa
  • Onderhoud binnenGoed
  • Onderhoud buitenGoed
  • Huidig gebruikWoonruimte
  • Huidige bestemmingWoonruimte

Plattegrond

Hoofdvideo

360º afbeeldingen

Vergelijkbare woningen