Skip to content
Contact Plan een bezichtiging

Achterstraat 29A

3882 AE, Putten

€ 400.000,- k.k.
  • 73 m2
  • 3 kamers
  • 2 slaapkamers
  • 1 badkamer
  • Verkocht o.v.

Omschrijving

Wonen in hartje Putten met dakterras én balkon

Wil je genieten van het comfort van een instapklaar appartement én de gezelligheid van het centrum binnen handbereik? Deze ruime maisonnette aan de Achterstraat in Putten combineert het! Twee slaapkamers, een zonnig dakterras van maar liefst 48 m² én een breed balkon aan de voorzijde. Zo ervaar je zowel de levendigheid van het dorpshart als de rust van je eigen thuis.

Indeling complex
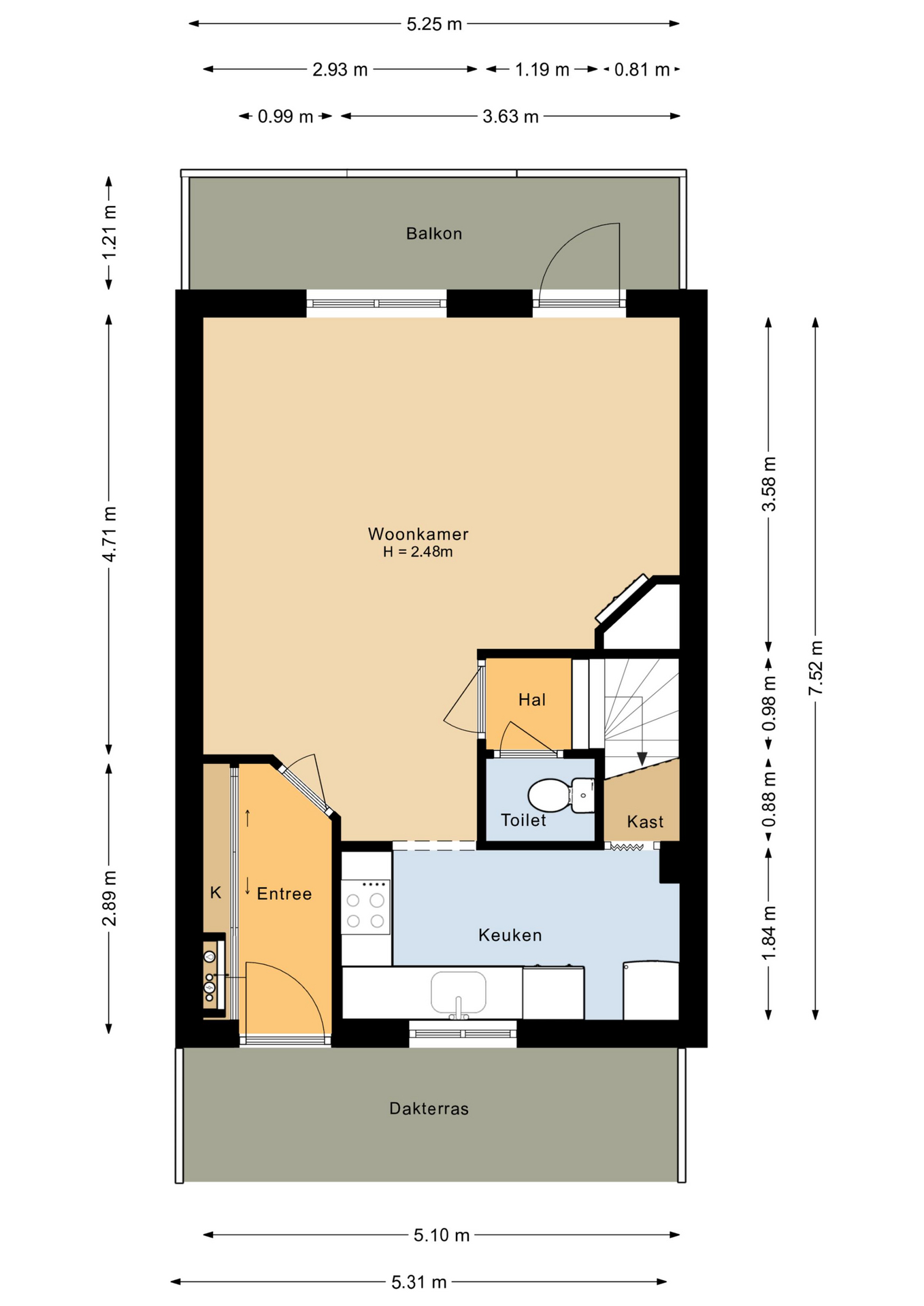
Via het portiek met beltableau kom je binnen en bereik je direct het royale dakterras.

Indeling appartement
De entree brengt je in de hal met meterkast. De lichte woonkamer heeft airconditioning, is voorzien van grote ramen en biedt toegang tot het balkon aan de straatzijde. Een fijne plek om de dag rustig te starten met een kop koffie. Aan de achterzijde van het appartement bevindt zich de moderne half-open keuken die in 2022 vernieuwd is! Deze is luxe afgewerkt en beschikt over een inductiekookplaat, afzuigkap, oven en koel-/vriescombinatie. Ook is er elektrische vloerverwarming. Vanuit de tussenhal met toilet bereik je de trap naar de bovenverdieping.

Verdieping 
Op de verdieping vind je twee slaapkamers, waarvan de grootste toegang geeft tot de ruime badkamer aan de achterzijde. De badkamer is keurig verzorgd en heeft een ligbad (bubbel), douchehoek, wastafel en toilet. De badkamer beschikt tevens over elektrische vloerverwarming. De andere slaapkamer heeft een dakvenster en beschikt over witgoedaansluitingen.

Genieten van buitenruimte!
Een groot pluspunt is het royale dakterras van circa 48 m² op het zuiden gelegen. Hier heb je de hele dag door zon én veel privacy. Daarbij kijk je ook nog eens leuk weg! Verder beschikt het appartement over een praktische berging nabij de hoofdentree van het complex.

Kenmerken

Overdracht

  • StatusVerkocht o.v.
  • Vraagprijs€ 400.000,- k.k.
  • AanvaardingIn overleg

Bouwvorm

  • Soort objectAppartement
  • Soort appartementMaisonnette
  • Bouwjaar1995
  • BouwvormBestaande bouw
  • LiggingenAan rustige weg, In centrum, In bosrijke omgeving

Indeling

  • Woonoppervlakte73 m2
  • Inhoud230 m3
  • Aantal kamers3
  • Aantal slaapkamers2
  • Aantal badkamers1
  • Aantal woonlagen2

Energie

  • EnergieklasseA
  • VerwarmingCV ketel
  • C.V.-KetelNefit
  • Bouwjaar C.V.-Ketel2019
  • WarmwaterCV ketel
  • IsolatieDakisolatie, Muurisolatie, Vloerisolatie, Dubbelglas
  • CombiketelJa
  • BrandstofGas
  • EigendomEigendom

Buitenruimte

  • TuinZonneterras
  • HoofdtuinZonneterras
  • Oppervlakte45 m2
  • Ligging hoofdtuinZuid
  • AchteromNee
  • Kwaliteit tuinVerzorgd

Bergruimte

  • Schuur / BergingInpandig
  • VoorzieningenVoorzien van elektra
  • Totaal aantal1

Parkeergelegenheid

  • Parkeer faciliteitenOpenbaar parkeren, Parkeervergunningen

Dak

  • Soort dakSamengesteld dak
  • Materiaal dakPannen, Bitumineuze Dakbedekking

Overig

  • Permanente bewoningJa
  • Onderhoud binnenGoed
  • Onderhoud buitenGoed
  • Huidig gebruikWoonruimte
  • Huidige bestemmingWoonruimte

Plattegrond

Hoofdvideo

Laad video en start met afspelen

360º afbeeldingen

Vergelijkbare woningen