Skip to content
Contact Plan een bezichtiging

Sprielderweg 8

3881 PA, Putten

€ 795.000,- k.k.
  • 126 m2 / 624 m2
  • 4 kamers
  • 3 slaapkamers
  • 1 badkamer
  • Beschikbaar

Omschrijving

Levensloopbestendig wonen op royale perceel èn op loopafstand van bos en heide!

Aan de Sprielderweg, aan de rand van de bebouwde kom, mogen wij u deze vrijstaande SEMI-BUNGALOW met garage aanbieden. De woning is gelegen op een royaal perceel van 624 m² en bevindt zich op korte loopafstand van uitgestrekte bos- en heidegebieden. De woning is omstreeks 1984 verbouwd en uitgebreid.

Dankzij de aanwezigheid van zowel een slaapkamer als badkamer op de begane grond is de woning uitermate geschikt voor levensloopbestendig wonen. Op de eerste verdieping bevinden zich twee extra slaapkamers, waardoor u tevens mogelijkheden heeft voor logees, hobbyruimte of thuiswerkplek.

Begane grond
Entree/hal met toegang tot de sfeervolle woonkamer, vanuit de woonkamer is de halfopen keuken bereikbaar, welke is voorzien van een hoekinbouwkeuken met diverse inbouwapparatuur. Verder is er op de begane grond de badkamer met ligbad en douchecabine, separaat toilet, vaste kast en de royale slaapkamer aan de achterzijde. 
De aangebouwde serre met schuifpui en zicht op de tuin, biedt u een heerlijke verblijfsruimte op de zonnig, maar niet al te warme dagen.  Tevens is nog zolderruimte bereikbaar met vlizotrap en een kelderruimte onder slaapkamer. 

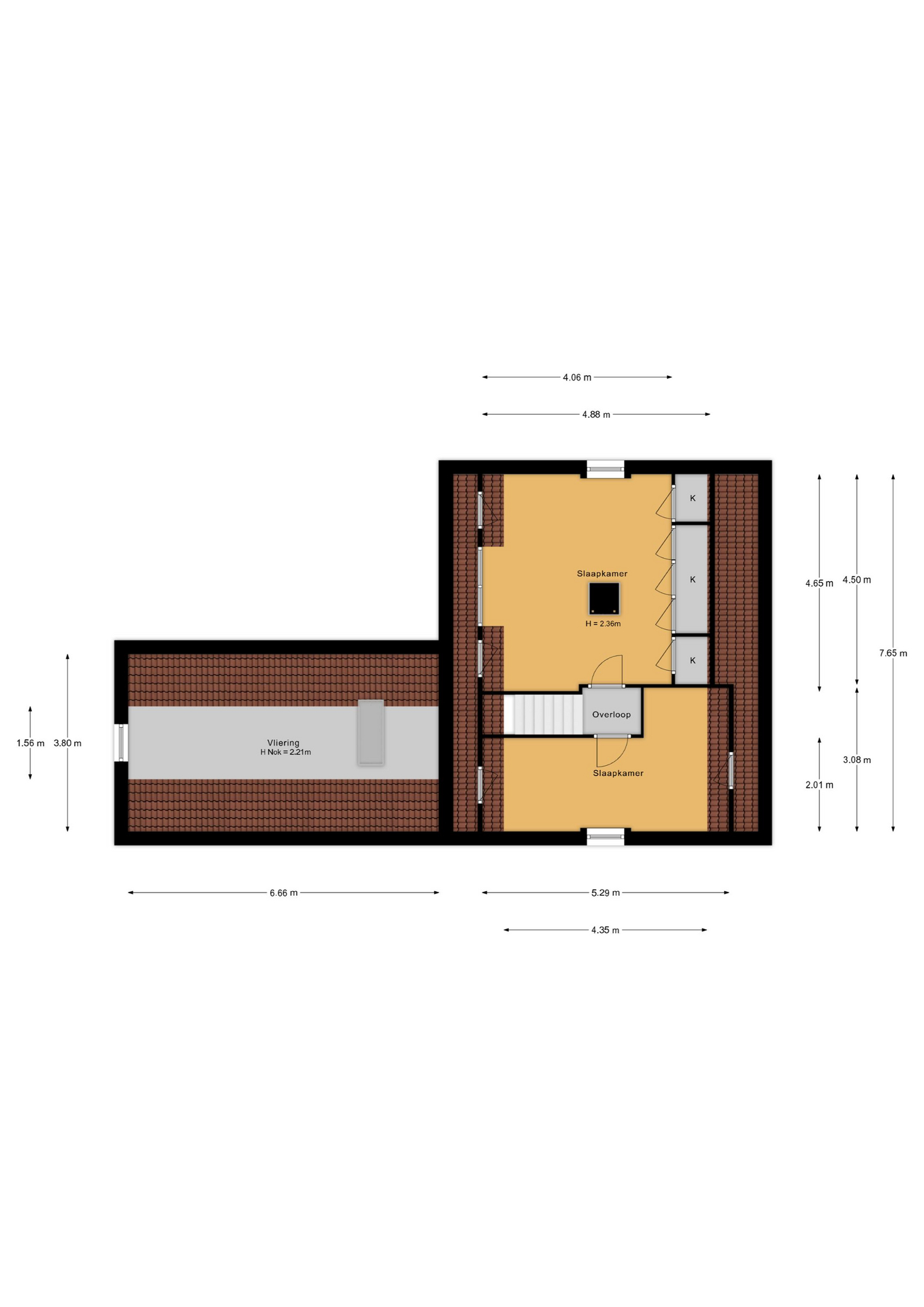
Verdieping
2 slaapkamers, w.o. grote slaapkamer met dakkapel en kastenwand. 

Het perceel van 624 m² biedt een fraai aangelegde tuin rondom de woning met diverse zit- en gebruiksmogelijkheden. De vrijstaande garage is geschikt voor het stallen van uw auto, maar biedt ook een mogelijkheid voor opslag of hobbyactiviteiten. De woning ligt vrij in het groen en biedt veel privacy.

De locatie is aantrekkelijk door de combinatie van rust en natuur, in directe nabijheid van bossen en heide. Tegelijkertijd zijn de dagelijkse voorzieningen van Putten goed bereikbaar. Wandelaars en natuurliefhebbers bevinden zich binnen enkele minuten in de uitgestrekt Veluwse bossen.

•    Levensloopbestendige woning
•    Verbouwd en uitgebreid in 1984
•    Ligging aan de rand van Putten
•    Op loopafstand van bos en heide

Kenmerken

Overdracht

  • StatusBeschikbaar
  • Vraagprijs€ 795.000,- k.k.
  • AanvaardingIn overleg

Bouwvorm

  • Soort objectWoonhuis
  • Soort woningEengezinswoning
  • Type woningVrijstaande woning
  • Bouwjaar1934
  • BouwvormBestaande bouw
  • LiggingenAan bosrand, In bosrijke omgeving

Indeling

  • Woonoppervlakte126 m2
  • Perceeloppervlakte624 m2
  • Inhoud478 m3
  • Aantal kamers4
  • Aantal slaapkamers3
  • Aantal badkamers1

Energie

  • EnergieklasseD
  • VerwarmingCV ketel
  • C.V.-KetelNefit Trendline HCR30 CW5
  • Bouwjaar C.V.-Ketel2014
  • WarmwaterCV ketel
  • IsolatieDakisolatie, Muurisolatie, Dubbelglas
  • CombiketelJa
  • BrandstofGas
  • EigendomEigendom

Buitenruimte

  • TuinTuin rondom
  • HoofdtuinTuin rondom
  • AchteromNee
  • Kwaliteit tuinVerzorgd

Parkeergelegenheid

  • GarageVrijstaand hout
  • Capaciteit2
  • Garages1

Dak

  • Soort dakSamengesteld dak

Overig

  • Permanente bewoningJa
  • Onderhoud binnenGoed
  • Onderhoud buitenRedelijk
  • Huidig gebruikWoonruimte
  • Huidige bestemmingWoonruimte

Plattegrond

Hoofdvideo

Laad video en start met afspelen

360º afbeeldingen

Vergelijkbare woningen