Skip to content
Contact Plan een bezichtiging

Bakkersweg 7 01

3781 GN, Voorthuizen

€ 600.000,- k.k.
  • 104 m2 / 325 m2
  • 6 kamers
  • 4 slaapkamers
  • 1 badkamer
  • Beschikbaar

Omschrijving

Op een centrale locatie in het gezellige dorp Voorthuizen staat deze vrijstaande woning met garage en ruime oprit. De woning ligt op loopafstand van winkels, scholen en horecagelegenheden. Een ideale plek voor wie graag alles binnen handbereik heeft, maar ook de ruimte en vrijheid van een vrijstaand huis waardeert.

De woning biedt volop mogelijkheden om geheel naar eigen smaak te moderniseren en om te toveren tot jouw droomhuis. Met een garage, carport, overkapping aan huis en een royale oprit met plek voor meerdere auto’s is er ruimte genoeg. Dankzij de twee dakkapellen is er extra licht en ruimte op de bovenverdieping. Daarnaast bevindt zich op de begane grond een slaapkamer, wat het huis ook geschikt maakt voor gelijkvloers wonen.

Kortom, een vrijstaande woning met veel potentie, gelegen op een gunstige locatie in het hart van Voorthuizen.

Indeling
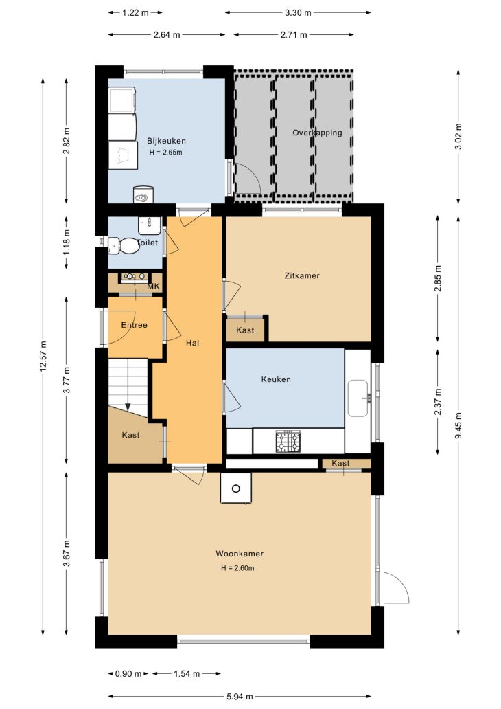
Begane grond: Via de zijentree kom je binnen in de hal met toegang tot alle vertrekken op de begane grond. De woonkamer heeft een gashaard en biedt uitzicht op de straat en de oprit. Daarnaast is er vanuit de woonkamer een deur naar de tuin aanwezig. Verder is er een dichte keuken en aan de achterzijde van het huis bevindt zich de bijkeuken met de wasmachine- en drogeraansluiting. Vanuit daar is er toegang tot de tuin met een overkapping, waar je heerlijk beschut kunt zitten. Op de begane grond is tevens een slaapkamer, ideaal voor gelijkvloers wonen of als extra werk- of hobbyruimte.

Eerste verdieping: Op de eerste verdieping zijn drie slaapkamers, waarvan één met een dakkapel, en een badkamer. Daarnaast is er op deze verdieping veel bergruimte aanwezig, ideaal voor het opslaan van spullen. Op de overloop bevindt zich bovendien nog een vaste kast.

Nieuwsgierig geworden? Neem dan contact met ons op voor een bezichtiging.

Kenmerken

Overdracht

  • StatusBeschikbaar
  • Vraagprijs€ 600.000,- k.k.
  • AanvaardingIn overleg

Bouwvorm

  • Soort objectWoonhuis
  • Soort woningEengezinswoning
  • Type woningVrijstaande woning
  • Bouwjaar1967
  • BouwvormBestaande bouw
  • LiggingenIn centrum, In bosrijke omgeving

Indeling

  • Woonoppervlakte104 m2
  • Perceeloppervlakte325 m2
  • Inhoud383 m3
  • Aantal kamers6
  • Aantal slaapkamers4
  • Aantal badkamers1

Energie

  • EnergieklasseF
  • VerwarmingCV ketel, Gashaard
  • C.V.-KetelNefit
  • WarmwaterCV ketel
  • CombiketelJa
  • BrandstofGas
  • EigendomEigendom

Buitenruimte

  • TuinAchtertuin, Voortuin, Zijtuin
  • HoofdtuinAchtertuin
  • Oppervlakte100 m2
  • Ligging hoofdtuinNoordoost
  • AchteromJa
  • Kwaliteit tuinNormaal

Parkeergelegenheid

  • Parkeer faciliteitenOpenbaar parkeren, Op eigen terrein
  • GarageVrijstaand steen, Carport
  • Capaciteit1
  • Garages1

Dak

  • Soort dakZadeldak
  • Materiaal dakPannen

Overig

  • Permanente bewoningJa
  • Onderhoud binnenGoed
  • Onderhoud buitenGoed
  • Huidig gebruikWoonruimte
  • Huidige bestemmingWoonruimte

Plattegrond

Hoofdvideo

Laad video en start met afspelen

360º afbeeldingen

Vergelijkbare woningen