Skip to content
Contact Plan een bezichtiging

De Steenkamp 64

3781 VS, Voorthuizen

€ 475.000,- k.k.
  • 115 m2 / 154 m2
  • 5 kamers
  • 4 slaapkamers
  • 1 badkamer
  • Onder bod

Omschrijving

We hebben weer een leuke middenwoning met garage beschikbaar in een prettige woonomgeving, op loopafstand van het bekende Wilbrinkbos (met hondenlosloopgebied), het zwembad en het dorpscentrum. Ook voor kinderen is dit echt een fijne wijk, omdat er veel speelveldjes in de directe omgeving zijn. Doordat deze woning eigenlijk aan de Van Effrinkstraat ligt, is er veel parkeergelegenheid direct voor de deur.

Het dorp Voorthuizen is een hele mooie uitvalsbasis, omdat het aan de rand van de Veluwe is gelegen, met uitgestrekte bossen en heidevelden op fietsafstand. Ook het recreatiegebied Zeumeren is een heerlijke plek om mooie zomerdagen door te brengen. In en om het dorp worden veel gezellige evenementen georganiseerd; er is dus eigenlijk altijd wel wat te beleven. Vanuit deze locatie rijd je bovendien binnen enkele autominuten op de A1 richting de Randstad of richting Apeldoorn. Echt het beste van twee werelden dus.

Graag vertellen we je meer over deze woning: in de afgelopen jaren is deze door de huidige bewoners voorzien van een nieuwe keuken, badkamer en toilet, waardoor je niet veel kosten hoeft te maken om het huis te kunnen betrekken. De keuken is mooi ruimtelijk en strak vormgegeven, en datzelfde geldt voor de veranda: heel praktisch en lekker licht. De verzorgde tuin is onderhoudsvriendelijk aangelegd.

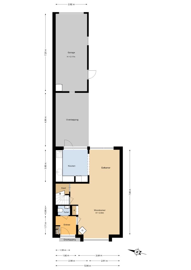
Begane grond
Je stapt binnen in de entree/hal met een vernieuwd toilet. Vervolgens bereik je de sfeervolle woonkamer met leuk uitzicht, gaskachel, provisiekast en trapopgang. Aan de achterzijde vind je de halfopen keuken, uitgevoerd in mooie materialen en voorzien van goede apparatuur (Siemens), met een deur naar de veranda. De keukenopstelling is onder andere voorzien van een inductiekookplaat, afzuigschouw, combi-oven, koel-/vriescombinatie en vaatwasmachine.

Eerste verdieping
Ook hier een heel praktische indeling. Via de overloop met kastruimte bereik je de drie ruime slaapkamers (waarvan twee met inbouwkasten en één met balkon) en de vernieuwde badkamer in een eigentijdse stijl. De badkamer is onder andere voorzien van een wastafelmeubel, toilet en inloopdouche en is heel comfortabel uitgevoerd met vloerverwarming.

Tweede verdieping
Deze is bereikbaar via een vaste trap. Via de overloop met veel bergruimte en wasapparatuuraansluiting bereik je de royale vierde slaapkamer met dakraam.

Word jij enthousiast van deze leuke en complete woning met garage? Pak dan snel de telefoon en plan een bezichtiging in!

Kenmerken

Overdracht

  • StatusOnder bod
  • Vraagprijs€ 475.000,- k.k.
  • AanvaardingIn overleg

Bouwvorm

  • Soort objectWoonhuis
  • Soort woningEengezinswoning
  • Type woningTussenwoning
  • Bouwjaar1978
  • BouwvormBestaande bouw
  • LiggingenAan rustige weg, In woonwijk, In bosrijke omgeving

Indeling

  • Woonoppervlakte115 m2
  • Perceeloppervlakte154 m2
  • Inhoud405 m3
  • Aantal kamers5
  • Aantal slaapkamers4
  • Aantal badkamers1

Energie

  • EnergieklasseC
  • VerwarmingCV ketel, Vloerverwarming gedeeltelijk, Gashaard
  • C.V.-KetelNefit
  • WarmwaterCV ketel
  • IsolatieVloerisolatie, Grotendeels dubbelglas
  • CombiketelJa
  • BrandstofGas
  • EigendomEigendom

Buitenruimte

  • TuinAchtertuin, Voortuin
  • HoofdtuinAchtertuin
  • Oppervlakte81 m2
  • Ligging hoofdtuinNoordoost
  • AchteromJa
  • Kwaliteit tuinNormaal

Parkeergelegenheid

  • Parkeer faciliteitenOpenbaar parkeren
  • GarageVrijstaand steen
  • Capaciteit1
  • Garages1

Dak

  • Soort dakZadeldak
  • Materiaal dakPannen

Overig

  • Permanente bewoningJa
  • Onderhoud binnenGoed
  • Onderhoud buitenGoed
  • Huidig gebruikWoonruimte
  • Huidige bestemmingWoonruimte

Plattegrond

Hoofdvideo

Laad video en start met afspelen

360º afbeeldingen

Vergelijkbare woningen