Skip to content
Contact Plan een bezichtiging

Molenweg 33

3781 VA, Voorthuizen

Verkocht
  • 127 m2 / 372 m2
  • 6 kamers
  • 4 slaapkamers
  • 1 badkamer
  • Verkocht

Omschrijving

Wat een fijne sfeer en veel woongenot biedt deze PRACHTIGE TWEE-ONDER-EEN-KAPWONING! En dan ook nog veel ruimte buitenom, een mooie privacyvolle tuin met stoere veranda en een ruime GARAGE met bergzolder.

Deze eigentijdse en comfortabele woning is echt instapklaar te noemen. De ligging is ideaal: op loopafstand van het gezellige dorpscentrum en bovendien dichtbij recreatiegebied Zeumeren, het Johannabos en de uitgestrekte Veluwse bossen. De Molenweg wordt in 2026 geheel vernieuwd, dit zal dan een 30 km weg gaan worden. Meer informatie is bij ons beschikbaar.

Indeling
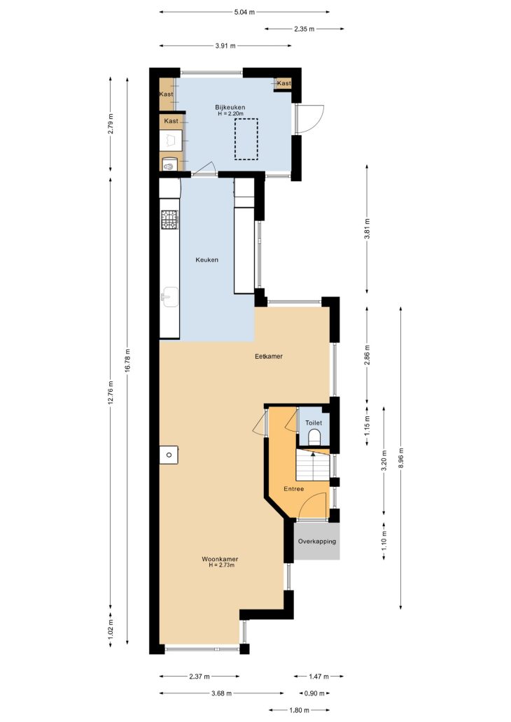
Begane grond: Wanneer u de woning binnenloopt, komt u in de fraaie hal/entree met trapopgang en het nieuw aangebrachte toilet. Vanuit hier loopt u door naar de prachtig strak afgewerkte woonkamer met houten vloerdelen, een erker en een sfeervolle houtkachel. Aansluitend bevindt zich de open keuken met o.a. 5 pits-gasfornuis, afzuigkap, oven en vaatwasmachine. Ook is er een praktische bijkeuken/achteringang aanwezig, voorzien van een mooie kastenwand en wasapparatuur aansluitingen. Boven de bijkeuken is door middel van een vlizotrap een bergzolder bereikbaar.

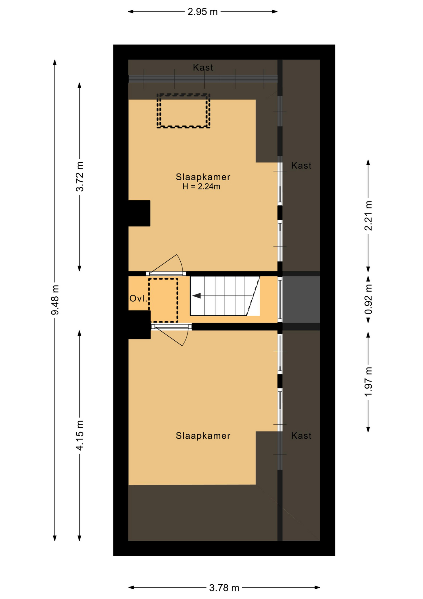
1e verdieping: Op de 1e verdieping bevindt zich de overloop met kastruimte en een inloopkast. Hier zijn ook twee slaapkamers, waarvan één is voorzien van vaste kasten. Daarnaast vindt u er een fraaie badkamer met een dubbel wastafelmeubel, toilet en inloopdouche, voorzien van vloerverwarming.

2e verdieping: Deze verdieping is bereikbaar via een vaste trap en biedt een overloop en twee slaapkamers met bergruimte. Deze verdieping is heerlijk licht door de (kunststof) dakkapel.

3e verdieping: ruime bergzolder, bereikbaar via een vlizotrap.

Een markante woning met veel jaren dertig kenmerken die ook binnen nog terug te vinden zijn zoals: de entree met de glas-in-loodramen, de erker, paneeldeuren, oude grenen vloerdelen en dat in combinatie met strak stucwerk een smaakvol geheel!

Wij laten u deze woning graag zien, maak snel een afspraak!

Kenmerken

Overdracht

  • StatusVerkocht
  • Vraagprijs€ 650.000,- k.k.
  • AanvaardingIn overleg

Bouwvorm

  • Soort objectWoonhuis
  • Soort woningEengezinswoning
  • Type woningTwee onder één kapwoning
  • Bouwjaar1937
  • BouwvormBestaande bouw
  • LiggingenIn centrum, In woonwijk, In bosrijke omgeving

Indeling

  • Woonoppervlakte127 m2
  • Perceeloppervlakte372 m2
  • Inhoud455 m3
  • Aantal kamers6
  • Aantal slaapkamers4
  • Aantal badkamers1

Energie

  • EnergieklasseB
  • VerwarmingCV ketel, Vloerverwarming gedeeltelijk, Houtkachel
  • C.V.-KetelRemeha Avanta
  • Bouwjaar C.V.-Ketel2021
  • WarmwaterCV ketel
  • IsolatieDakisolatie, Vloerisolatie, Grotendeels dubbelglas
  • CombiketelJa
  • BrandstofGas
  • EigendomEigendom

Buitenruimte

  • TuinAchtertuin, Voortuin
  • HoofdtuinAchtertuin
  • Oppervlakte62 m2
  • Ligging hoofdtuinOost
  • AchteromJa
  • Kwaliteit tuinVerzorgd

Parkeergelegenheid

  • Parkeer faciliteitenOp eigen terrein
  • GarageVrijstaand steen
  • Capaciteit1
  • Garages1

Dak

  • Soort dakSamengesteld dak
  • Materiaal dakPannen

Overig

  • Permanente bewoningJa
  • Onderhoud binnenGoed
  • Onderhoud buitenGoed
  • Huidig gebruikWoonruimte
  • Huidige bestemmingWoonruimte

Plattegrond

Hoofdvideo

Laad video en start met afspelen

360º afbeeldingen

Vergelijkbare woningen