Skip to content
Contact Plan een bezichtiging

Anthonie Fokkerstraat 39 G

3772 MP, Barneveld

Verhuurd
Afbeelding van Barneveld – Anthonie Fokkerstraat 39G – Hoofdfoto
Hoofdfoto
Afbeelding van Barneveld – Anthonie Fokkerstraat 39G – Foto 17
Foto 17
Afbeelding van Barneveld – Anthonie Fokkerstraat 39G – Foto 16
Foto 16
Afbeelding van Barneveld – Anthonie Fokkerstraat 39G – Foto 11
Foto 11
Afbeelding van Barneveld – Anthonie Fokkerstraat 39G – Foto 14
Foto 14
  • 190 m2 / units vanaf 190 m2
  • 2002
  • Kantoorruimte
  • Verhuurd

Omschrijving

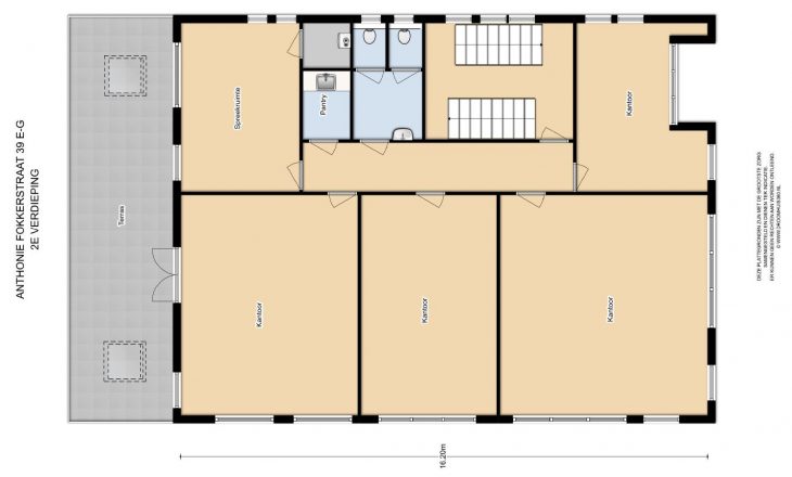
Representatieve KANTOORRUIMTE gelegen op bedrijventerrein "De Briellaerd". De totaal beschikbare bruto vloeroppervlakte bedraagt circa 190 m² gelegen op de tweede verdieping. Het object kenmerkt zich door een hoogwaardige modieuze afwerking met een eigen identiteit en uitstraling. Op de tweede verdieping is een vrij uitzicht met een dakterras aanwezig. Parkeervoorzieningen zijn gelegen op eigen bestraat buitenterrein.

Bereikbaarheid
De locatie is goed te noemen, mede vanwege de nabije ligging aan de rijksweg A30 (Barneveld-Ede).
Op circa 6 minuten rijafstand is de rijksweg A1 (Amsterdam-Hengelo) gelegen.

Objectinformatie
Kantoorruimte gelegen aan de Anthonie Fokkerstraat 39-G te (3772 MP) Barneveld.

Beschikbare bruto vloeroppervlakte
Kantoorruimte tweede verdieping circa 190 m²

Opleveringsniveau
• Entree v.v. dubbele deuren
• Trapopgang
• (Glazen) systeemwanden
• Te openen ramen
• Stoffering*
• Airconditioning
• Mechanische ventilatie
• Lichtkoepel
• Kabelgoten v.v. data* en elektra aansluitpunten
• Verwarming middels c.v.-installatie en paneelradiatoren
• Pantry per verdieping
• Toiletgroep per verdieping

* Aanwezig zaken worden beschikbaar gesteld en dienen bij slijtage of tenietgaan door huurder te worden hersteld / vervangen.

Parkeervoorziening
2 parkeerplaatsen gelegen op eigen terrein, daarnaast biedt het openbare gebied voldoende mogelijkheden voor (vrij) parkeren.

Huurvoorwaarden
Huurtermijn
In overleg, bij voorkeur 5 jaar + telkens 5 optiejaren.

Huurbetaling
Per maand vooruit.

Zekerheidstelling
Bankgarantie / waarborgsom ter grootte van 3 maanden huur, te vermeerderen met BTW en servicekosten.

Huurovereenkomst
Volgens ROZ-Model.

Huurprijsindexering
Jaarlijks, voor het eerst één jaar na huur ingangsdatum, op basis van de wijziging van het maand prijsindexcijfer volgens de consumentenprijsindex (CPI) reeks CPI-Alle Huishoudens (2015=100), gepubliceerd door het Centraal Bureau voor de Statistiek (CBS).

Aanvaarding
In overleg.

Ingroeihuurprijs
€ 100,- per m² / jaar, exclusief BTW en servicekosten.

Alle informatie is geheel vrijblijvend en onder voorbehoud. Hieraan kunnen geen rechten worden ontleend.

Kenmerken

Overdracht

  • StatusVerhuurd
  • Vraagprijs€ 17.100,- p/j.

Indeling

  • Soort ObjectKantoorruimte
  • Totale oppervlakte190 m2
  • Perceeloppervlakte503 m2
  • Oppervlakte kantoorruimte190 m2

Parkeergelegenheid

  • Parkeerplaatsen8
  • Overdekt parkeren8 parkeerplaatsen gelegen op eigen terrein.
  • Onoverdekt parkeren8 parkeerplaatsen gelegen op eigen terrein.

Bouwvorm

  • BouwvormBestaande bouw
  • Bouwjaar2002
  • Bouwjaar toelichting

Overig

  • In units vanaf190 m² kantoorruimte
  • LocatieBEDRIJVENTERREIN, KANTORENPARK
  • Aantal verdiepingen1
  • EnergieklasseC
  • Onderhoud binnenGoed
  • Onderhoud buitenGoed

Plattegrond

Video

360º afbeeldingen