Skip to content
Contact Plan een bezichtiging

Churchillstraat 35

3772 KV, Barneveld

Verkocht
Bereken uw hypotheek
  • 295 m2 / units vanaf 295 m2
  • 1980
  • Kantoorruimte
  • Verkocht

Omschrijving

Nabij het centrum van Barneveld op rustieke locatie gelegen ZELFSTANDIG KANTOORGEBOUW met zeven (7) parkeerplaatsen op eigen terrein. De aanwezige kantoorruimte is verdeeld over een drietal bouwlagen waardoor deelgebruik van het object tot de mogelijkheden behoort. De kantoorruimte is verdeeld over meerdere vertrekken en is onder andere v.v. systeemplafond met verlichtingsarmaturen, CV-installatie, mechanische ventilatie en koeling, elektrisch bedienbare zonneschermen, toilet en pantry (begane grond en eerste verdieping). 

De omgeving kenmerkt zich door plantsoenen en veel groen, almede dienstverlenende branches en wonen. Tevens is de bereikbaarheid optimaal. De op-/ en afritten van rijksweg A30 ( Barneveld - Ede) is op circa 3 minuten rijafstand gelegen.

Objectinformatie
Kantoorruimte gelegen aan de Churchillstraat 35 (3772 KV) te Barneveld.

Beschikbare vloeroppervlakte
Souterrain              circa 94 m²
Begane grond         circa 88 m²
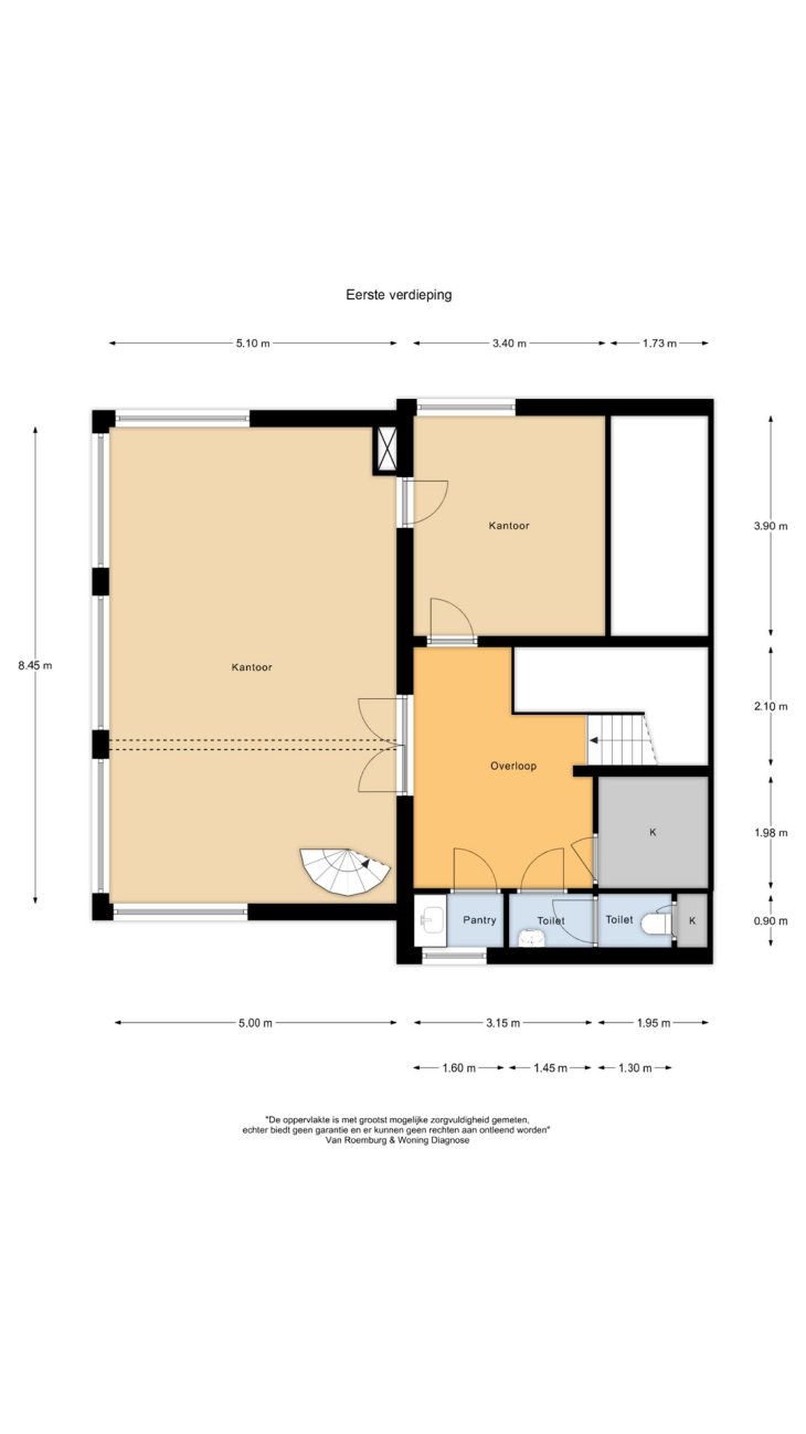
Eerste verdieping    circa 88 m²
Tweede verdieping  circa 25 m²

Totaal                     circa 295 m²

Opleveringsniveau
Kantoorruimte 
- Systeemplafond met verlichtingsarmaturen
- Klimaatbehandelingssysteem
- Mechanische ventilatie
- C.v. radiatoren
- Elektrisch bedienbare zonneschermen
- Meerdere kantoorvertrekken
- Centraal stofzuig systeem

Parkeervoorzieningen
7 parkeerplaatsen op bijbehorend bestraat buitenterrein

Bereikbaarheid
Door de centrale ligging nabij de Rijksweg A30 (Ede-Barneveld) is het nationale en internationale snelwegennet uitstekend te bereiken.

Bestemming
Bestemmingsplan Barneveld-Zuidoost met enkelbestemming dienstverlening.

KOOPVOORWAARDEN
Koopprijs
€ 435.000,- k.k. exclusief BTW

Aanvaarding
In overleg.

Notaris
Door koper te bepalen.

Zekerheidstelling
Bankgarantie / waarborgsom ter grootte van 10 % van de koopsom.

Koopovereenkomst
NVM-koopovereenkomst.

Alle informatie is geheel vrijblijvend en onder voorbehoud. Hieraan kunnen geen rechten worden ontleend.

Kenmerken

Overdracht

  • StatusVerkocht
  • Vraagprijs€ 435.000,- k.k.

Indeling

  • Soort ObjectKantoorruimte
  • Totale oppervlakte295 m2
  • Perceeloppervlakte549 m2
  • Oppervlakte kantoorruimte295 m2

Parkeergelegenheid

  • Parkeerplaatsen7
  • Overdekt parkeren7 parkeerplaatsen op bijbehorend bestraat buitenterrein.
  • Onoverdekt parkeren7 parkeerplaatsen op bijbehorend bestraat buitenterrein.

Bouwvorm

  • BouwvormBestaande bouw
  • Bouwjaar1980
  • Bouwjaar toelichting

Overig

  • In units vanaf295 m² kantoorruimte
  • LocatieIn woonwijk
  • Aantal verdiepingen2
  • Onderhoud binnenGoed
  • Onderhoud buitenGoed

Plattegrond

360º afbeeldingen

Vergelijkbare objecten