Skip to content
Contact Plan een bezichtiging

Sportlaan 34

3851 CE, Ermelo

€ 279.000,- k.k.
  • 50 m2
  • 2 kamers
  • 1 slaapkamer
  • 1 badkamer
  • Verkocht o.v.

Omschrijving

APPARTEMENT OP DE BEGANE GROND NABIJ DE HEIDE!

Ben je starter op de woningmarkt of zoek je een plek waar je rustig woont, maar toch dichtbij alle voorzieningen zit? Dit tweekamerappartement in Ermelo biedt precies dat. Een praktisch appartement met een fijne tuin, in een rustige omgeving en toch op korte afstand van winkels, bos en heide.

BELANGRIJKSTE KENMERKEN
- Begane grond appartement met voor- en achtertuin
- Dicht bij het centrum van Ermelo, de heide en het bos
- Tweekamerappartement van ca. 50m2, perfect voor starters
- Kleinschalig en rustig appartementencomplex
- Actieve en hechte VvE, met een maandelijke VvE-bijdrage van: €139,-
- Energielabel C

PRAKTISCH EN COMFORTABEL WONEN
Dit appartement op de begane grond heeft een woonoppervlakte van ongeveer 50 m² en is praktisch ingedeeld. De woonkamer is licht en prettig van formaat, met voldoende ruimte voor een zithoek en eettafel. De open verbinding met de keuken zorgt voor een gezellige sfeer.

De slaapkamer is knus en goed in te richten met een tweepersoonsbed. De inbouwkast biedt voldoende ruimte om jouw spullen in op te bergen. De badkamer is compact maar netjes afgewerkt, met een douche, wastafel en toilet. Alles wat je nodig hebt, binnen handbereik.

Aan de voorkant ligt een voortuin, ideaal om ’s ochtends met een kop koffie van de zon te genieten. Achter het huis vind je een achtertuin, waar je rustig kunt zitten of wat groen kunt verzorgen. Hier hoor je vooral de vogels en weinig verkeer – fijn als je houdt van een rustige woonomgeving.

RUSTIGE LIGGING EN FIJNE OMGEVING
Het appartement maakt deel uit van een kleinschalig complex met een actieve VvE. De sfeer in het gebouw is gemoedelijk en rustig.
De ligging is ideaal: op korte afstand van het centrum van Ermelo, waar je winkels, supermarkten en eetgelegenheden vindt. Tegelijkertijd wandel of fiets je binnen een paar minuten naar de heide of het bos, waar je kunt genieten van de natuur en de ruimte die de Veluwe te bieden heeft.

EEN PLEK OM JE THUIS TE VOELEN
Hier woon je comfortabel, overzichtelijk en met alles wat je nodig hebt dichtbij. Een appartement dat past bij een nuchtere, praktische levensstijl – zonder gedoe, met volop rust en ruimte om te genieten.

KOM KIJKEN
Ben je starter of gewoon op zoek naar een fijn plekje in Ermelo? Dan is dit appartement zeker een bezoek waard.
Bel of mail ons voor een bezichtiging – misschien is dit binnenkort wel jouw nieuwe thuis.

KENMERKEN:
- Bouwjaar 1969
- Woonoppervlakte 50 m²
- Inhoud: 179 m³
- Energielabel: C

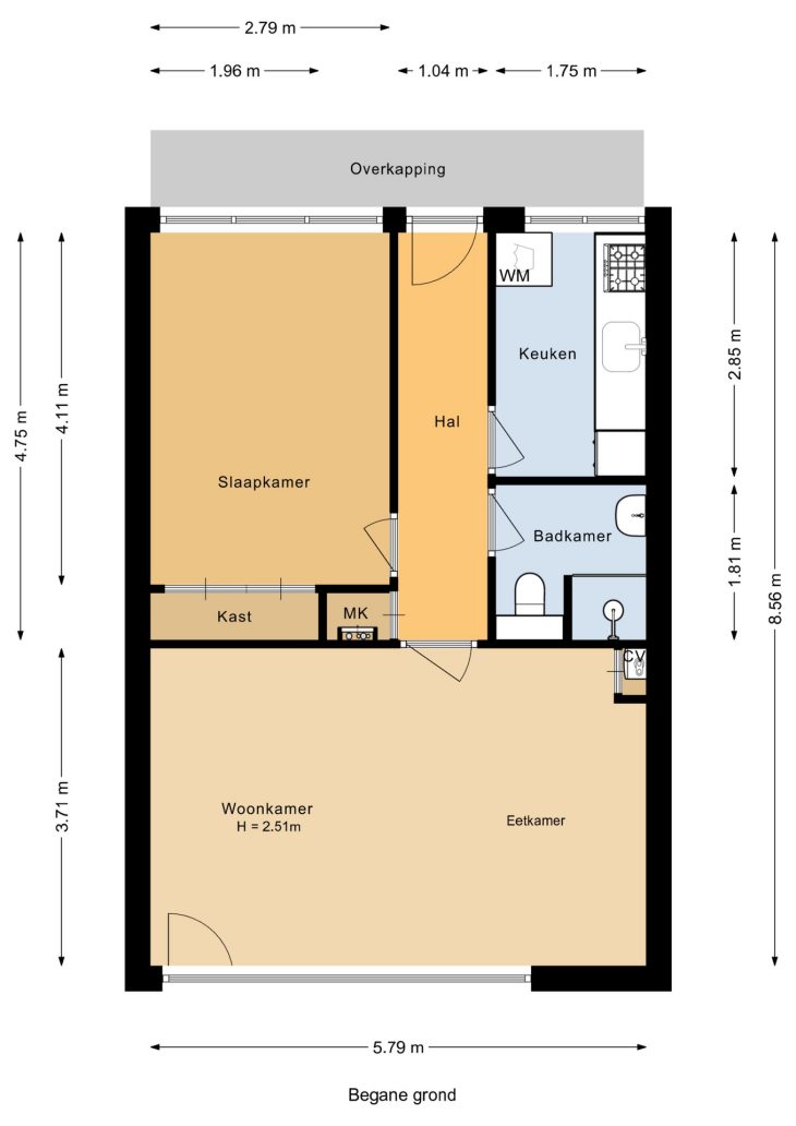
INDELING:
Entree met deur naar achtertuin met berging, dichte keuken met wasmachineaansluiting en inbouwapparatuur, badkamer met inloopdouche, wastafel en toilet, ruime slaapkamer met inbouwkast, woonkamer met deur naar de voortuin en kast met Cv-installatie.

Ben je geïnteresseerd in deze woning? Maak dan gerust een afspraak!
Wij nemen graag de tijd om deze woning aan je te laten zien: 0341-553773

ERMELO
Ermelo is een geliefde plaats om te wonen en dat is geen wonder. Hier vindt u niet alleen de aangename sfeer van een dorp, maar ook veel eigentijdse voorzieningen. Het gezellige centrum herbergt een ruime keuze aan winkels, van de bekende grote ketens tot verrassende speciaalzaakjes. Er zijn leuke cafés, terrasjes en restaurants en iedere dinsdag ochtend is het markt. Ook aan andere voorzieningen ontbreekt het niet in Ermelo. Er zijn bijvoorbeeld volop sport- en andere verenigingen en meerdere scholen voor basis- en voortgezet onderwijs. Het unieke van Ermelo is dat het met de voetjes aan het water ligt, “Het Wolderwijd”, en met de rug tegen de uitgestrekte Veluwse bossen.
Daarom zijn er volop watersport mogelijkheden en kan men in de bossen heerlijk mountainbiken of wandelen. Ten zuidoosten van Ermelo ligt de Ermelosche Heide, een 343 ha groot terrein, dat grotendeels in gebruik is als natuurterrein en beschikbaar is voor dagrecreatie. Het terrein wordt doorkruist door fiets-, wandel- en ruiterpaden. De heide wordt begraasd door een eigen schaapskudde. Door de aanwezigheid van zowel een treinstation als de ligging nabij de A-28 is Ermelo vanuit alle windstreken uitstekend bereikbaar.

Kenmerken

Overdracht

  • StatusVerkocht o.v.
  • Vraagprijs€ 279.000,- k.k.
  • AanvaardingIn overleg

Bouwvorm

  • Soort objectAppartement
  • Soort appartementBenedenwoning
  • Bouwjaar1969
  • BouwvormBestaande bouw
  • LiggingenIn woonwijk, In bosrijke omgeving

Indeling

  • Woonoppervlakte50 m2
  • Inhoud179 m3
  • Aantal kamers2
  • Aantal slaapkamers1
  • Aantal badkamers1
  • Aantal woonlagen1

Energie

  • EnergieklasseC
  • VerwarmingCV ketel
  • WarmwaterCV ketel
  • BrandstofGas
  • EigendomEigendom

Buitenruimte

  • TuinAchtertuin, Voortuin
  • AchteromNee

Bergruimte

  • Schuur / BergingVrijstaand steen
  • Totaal aantal1

Parkeergelegenheid

  • Parkeer faciliteitenOpenbaar parkeren

Dak

  • Soort dakZadeldak
  • Materiaal dakPannen

Overig

  • Permanente bewoningJa
  • Onderhoud binnenGoed
  • Onderhoud buitenGoed
  • Huidig gebruikWoonruimte
  • Huidige bestemmingWoonruimte

Plattegrond

Hoofdvideo

360º afbeeldingen

Vergelijkbare woningen