Kees Stipplein 34
3901 TP, Veenendaal
-
56 m2
-
2 kamers
-
1 slaapkamer
-
1 badkamer
-
Verkocht o.v.
Omschrijving
Modern en instapklaar 2-kamerappartement in het centrum van Veenendaal
Op een absolute toplocatie aan het levendige Kees Stipplein ligt dit stijlvolle en goed onderhouden 2-kamerappartement. Hier woont u midden in het centrum, met winkels, horeca, sportschool, bibliotheek en het gezellige stadsstrand allemaal op loopafstand, terwijl u aan de achterzijde van het appartement juist rust en privacy ervaart. Het appartement is gebouwd in 2013, uitstekend geïsoleerd en beschikt over energielabel A. Bovendien hoort bij het appartement een eigen parkeerplaats in de ondergelegen parkeergarage ‘Tricotage’, en een gezamelijke inpandige berging.
Complex:
Via de keurig onderhouden centrale entree met video-intercom kunt u het appartement bereiken met de lift of via het trappenhuis.
Appartement:
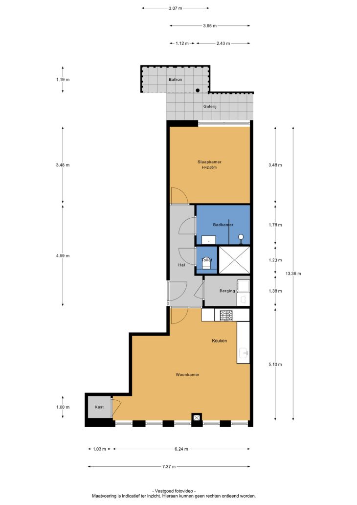
Ruime hal, die toegang geeft tot alle vertrekken. De woonkamer is heerlijk licht dankzij de vijf kamerhoge ramen aan de voorzijde, die bovendien uitkijken op het gezellige Kees Stipplein. De open keuken sluit mooi aan op de woonruimte en is voorzien van een moderne L-opstelling met witte fronten en een donker werkblad. Inbouwapparatuur zoals een gaskookplaat, combi-oven, afzuigkap, vaatwasmachine en koelkast maken de keuken compleet. De ruime slaapkamer ligt aan de rustige galerijzijde. Het gezellige buitenzitje kijkt uit op een fraai aangelegde binnentuin. De badkamer is netjes afgewerkt en beschikt over een inloopdouche en wastafelmeubel met spiegelkast. Het toilet is apart gesitueerd en voorzien van fonteintje. Ook is er een inpandige berging met de cv-ketel, aansluitingen voor wasmachine en droger en voldoende extra opbergruimte.
Kenmerken
Overdracht
- StatusVerkocht o.v.
- Vraagprijs€ 315.000,- k.k.
- AanvaardingIn overleg
Bouwvorm
- Soort objectAppartement
- Soort appartementPortiekflat
- Bouwjaar2013
- BouwvormBestaande bouw
- LiggingenIn centrum
Indeling
- Woonoppervlakte56 m2
- Inhoud194 m3
- Aantal kamers2
- Aantal slaapkamers1
- Aantal badkamers1
- Aantal woonlagen1
Energie
- EnergieklasseA
- VerwarmingCV ketel
- C.V.-KetelIntergas
- Bouwjaar C.V.-Ketel2013
- WarmwaterCV ketel
- IsolatieDakisolatie, Muurisolatie, Vloerisolatie, Volledig geïsoleerd
- CombiketelJa
- BrandstofGas
- EigendomEigendom
Buitenruimte
- AchteromNee
Bergruimte
- Schuur / BergingInpandig
- VoorzieningenVoorzien van elektra
- Totaal aantal1
Parkeergelegenheid
- Parkeer faciliteitenParkeergarage
Dak
- Soort dakPlat dak
Overig
- Permanente bewoningJa
- Onderhoud binnenGoed
- Onderhoud buitenGoed
- Huidig gebruikWoonruimte
- Huidige bestemmingWoonruimte
Plattegrond
Hoofdvideo
