Delderveenweg 18
3785 RC, Zwartebroek
- 
                        
                            
                        
                        90 m2 / 158 m2
- 
                        
                            
                        
                        5 kamers
- 
                        
                            
                        
                        3 slaapkamers
- 
                        
                            
                        
                        1 badkamer
- 
                    
                        
                    
                    Verkocht
Omschrijving
Zorgeloos en comfortabel wonen in Zwartebroek
Ben je op zoek naar een instapklare, sfeervolle woning op een fijne locatie? Dan is deze charmante hoek rug-aan-rug woning aan de Delderveenweg in Zwartebroek absoluut een bezichtiging waard! De woning ligt in een jonge, levendige en groene buurt, direct bij een fraai park, en beschikt over een royale tuin nabij een bosrijke en vrije omgeving. De perfecte combinatie tussen rust en gezelligheid in een instapklare woning.
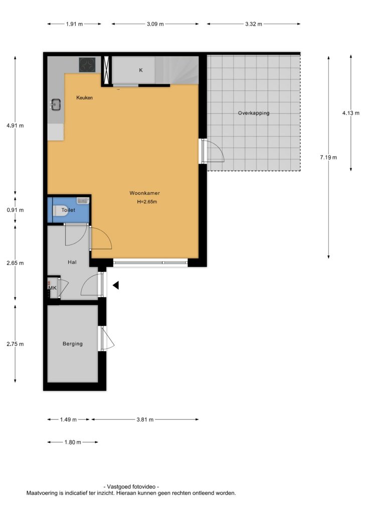
Begane grond:
Entree/hal met meterkast, een apart toilet en toegang tot de woonkamer en keuken. De lichte woonkamer geeft een mooi zicht op de tuin en voelt direct uitnodigend aan. De keurige PVC-vloer met vloerverwarming zorgt ervoor dat je hier het hele jaar door comfortabel woont. De keuken, gelegen aan de achterzijde, is praktisch én stijlvol ingericht met voldoende werk- en kastruimte. Onder de trap is extra opbergruimte gecreëerd, slim afgesloten met een schuifdeur voor een nette en efficiënte indeling. In de keuken is een extra buitendeur gemaakt naar de veranda.
Eerste verdieping:
Op de eerste verdieping bevinden zich twee lichte en comfortabele slaapkamers, geschikt als hoofdslaapkamer, kinderkamer of werkruimte. De moderne badkamer is netjes afgewerkt en voorzien van een douche, vloerverwarming, toilet en wastafel met meubel.
Tweede verdieping:
De tweede verdieping biedt een ruime voorzolder met aansluitingen voor de wasmachine en de CV-opstelling (Atag, 2017), is netjes weggewerkt. Daarnaast bevindt zich hier een derde slaapkamer voorzien van dakkapel, ideaal als extra slaap-, werk- of hobbykamer. Via een trap is de bergzolder bereikbaar, die volop mogelijkheden biedt voor al je opbergwensen.
Tuin & omgeving
De ruime tuin is perfect om te genieten van het buitenleven en biedt volop mogelijkheden voor ontspanning en samenzijn. De extra buitendeur in de keuken naar de veranda biedt mogelijkheid om er veel gebruik van te maken. De ligging aan een park en de omliggende bosrijke omgeving maken dit tot een heerlijke plek voor jong en oud. Een extra pluspunt is de aanwezigheid van twee zonnepanelen, goed voor lagere energiekosten en duurzaam woonplezier. Parkeren is geen enkel probleem: er is ruim voldoende parkeergelegenheid in de directe omgeving.
Kortom: een woning die alles in zich heeft voor zorgeloos en stijlvol wonen in een bosrijke omgeving. Plan snel een bezichtiging en ervaar zelf de charme van dit huis!
Kenmerken
Overdracht
- StatusVerkocht
- Vraagprijs€ 465.000,- k.k.
- AanvaardingIn overleg
Bouwvorm
- Soort objectWoonhuis
- Soort woningEengezinswoning
- Type woningHoekwoning
- Bouwjaar2017
- BouwvormBestaande bouw
- LiggingenAan rustige weg, In woonwijk, In bosrijke omgeving
Indeling
- Woonoppervlakte90 m2
- Perceeloppervlakte158 m2
- Inhoud352 m3
- Aantal kamers5
- Aantal slaapkamers3
- Aantal badkamers1
Energie
- EnergieklasseA
- VerwarmingCV ketel, Vloerverwarming gedeeltelijk
- C.V.-KetelAtag
- Bouwjaar C.V.-Ketel2017
- WarmwaterCV ketel
- IsolatieDakisolatie, Muurisolatie, Vloerisolatie, Volledig geïsoleerd
- CombiketelJa
- BrandstofGas
- EigendomEigendom
Buitenruimte
- TuinVoortuin, Zijtuin
- HoofdtuinZijtuin
- Oppervlakte98 m2
- Ligging hoofdtuinNoord
- AchteromNee
- Kwaliteit tuinVerzorgd
Bergruimte
- Schuur / BergingAangebouwd hout
- VoorzieningenVoorzien van elektra
- Totaal aantal1
Parkeergelegenheid
- Parkeer faciliteitenOpenbaar parkeren
Dak
- Soort dakZadeldak
- Materiaal dakPannen
Overig
- Permanente bewoningJa
- Onderhoud binnenGoed tot uitstekend
- Onderhoud buitenGoed tot uitstekend
- Huidig gebruikWoonruimte
- Huidige bestemmingWoonruimte
Plattegrond
Hoofdvideo
 
                                                                                         
                                                                             
                                                                             
                                                                             
                                                                             
                                                                             
                            