Skip to content
Contact Plan een bezichtiging

Stationsstraat 97B

3851 NC, Ermelo

Prijs op aanvraag
  • 184 m2 / units vanaf 184 m2
  • Winkelruimte
  • Beschikbaar

Omschrijving

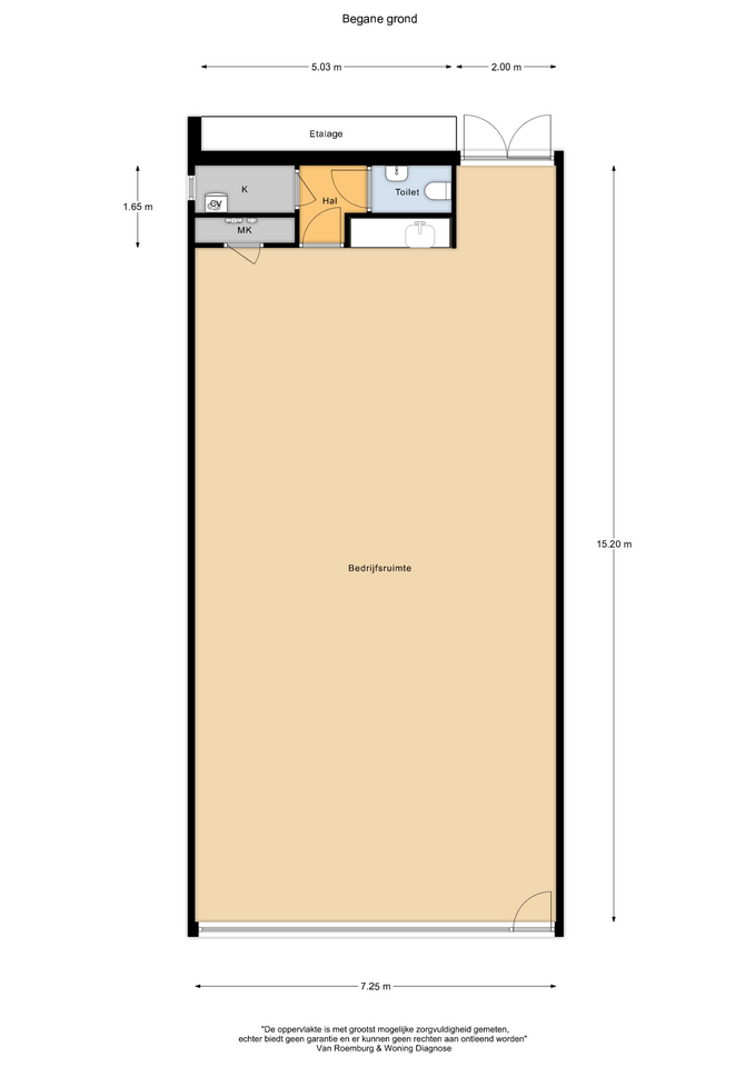
WINKELRUIMTE met tal van mogelijkheden gelegen in het centrum van Ermelo. De winkelruimte heeft een oppervlakte van circa 184 m² en is onder andere voorzien van een tegelvloer, airconditioning en systeemplafond met verlichtingsarmaturen. Aan de Dokter Holtropstraat bevindt zich een parkeerterrein waar je gratis (met een blauwe kaart) kan parkeren. Dit parkeerterrein is op loopafstand van de Stationsstraat waar winkels zoals Wibra, Bruna, Trekpleister, Etos en de Hema zitten.
Het pand betreft 1 winkelruimte. Gezien de adressen heeft de huidige huurder ervoor gekozen om de winkel te splitsen in 2 zelfstandige winkelruimtes. Deze splitsing zal ten tijde van de oplevering ongedaan gemaakt worden.

Objectgegevens
Winkelruimte gelegen aan de Stationsstraat 97B (voorzijde) Dokter Holtropstraat 12 (achterzijde) te Ermelo

Beschikbare vloeroppervlakte
De winkelruimte is circa 184 m²
De bovenwoning is circa 110 m², voorzien van 4 slaapkamers, 2 etages en een berging. De woning is momenteel verhuurd. Deze kan in zowel verhuurde staat als leeg opgeleverd worden.

Het object is niet conform NEN2580 ingemeten.

Opleveringsniveau
In huidige staat, doch voorzien van:
- Tegelvloer;
- Heaters;
- Airconditioning;
- Systeemplafond met TL-verlichting;
- Toilet;
- Pantry.

Parkeervoorzieningen
Aan de achterzijde van het pand, aan de Dokter Holtropstraat, bevindt zich parkeerterrein De Bree. Hier kan gratis, met een blauwe kaart, geparkeerd worden.

Bestemming
Ter plaatse vigeert omgevingsplan 'Kom Ermelo' met de enkelbestemming 'centrum '.

KOOPVOORWAARDEN
Vraagprijs
€765.000,- kosten koper. 

Aanvaarding
In overleg. 

Zekerheidsstelling
Bankgarantie/waarborgsom ter grootte van 10% van de koopsom. 

Koopovereenkomst 
Volgens het ROZ-model met aanvullende en bijzondere bepalingen van verkoper. 

HUURVOORWAARDEN
Huurprijs
Op aanvraag

Huurtermijn
In overleg

Opzegtermijn
Twaalf (12) kalendermaanden.

Huurbetaling
Per maand vooruit.

Aanvaarding
In overleg.

Zekerheidsstelling
Bankgarantie of waarborgsom ter grootte van 3 maanden huur te vermeerderen met BTW.

Huurovereenkomst
Volgens ROZ-Model winkelruimte.

Huurprijsindexering
Jaarlijks, voor het eerst één jaar na ingangsdatum huurovereenkomst, op basis van de wijziging van het maand prijs indexcijfer volgens de consumentenprijsindex (CPI) reeks alle huishoudens (2015 = 100), gepubliceerd door het Centraal Bureau voor Statistiek (CBS).

DOWNLOAD DE BROCHURE OP ONZE WEBSITE MNM.NL.

Alle informatie is geheel vrijblijvend en onder voorbehoud. Hieraan kunnen geen rechten worden ontleend.

Kenmerken

Overdracht

  • StatusBeschikbaar
  • VraagprijsPrijs op aanvraag
  • AanvaardingIn overleg
  • Servicekosten€ 0,- p/m² p/j.

Indeling

  • Soort ObjectWinkelruimte
  • Totale oppervlakte184 m2
  • Perceeloppervlakte263 m2
  • Oppervlakte winkelruimte184 m2

Bouwvorm

  • BouwvormBestaande bouw

Overig

  • In units vanaf184 m² winkelruimte
  • LocatieWINKELGEBIED_STADSCENTRUM, WIJKWINKELCENTRUM
  • Aantal verdiepingen1
  • EnergieklasseA
  • Onderhoud binnenRedelijk
  • Onderhoud buitenRedelijk

Plattegrond

360º afbeeldingen