Skip to content
Contact Plan een bezichtiging

Verlengde Dorpsstraat 46

3881 BG, Putten

€ 2.400,- p/m.
Afbeelding van Putten – Verlengde Dorpsstraat 46 – Hoofdfoto
Hoofdfoto
Afbeelding van Putten – Verlengde Dorpsstraat 46 – Foto 7
Foto 7
Afbeelding van Putten – Verlengde Dorpsstraat 46 – Foto 9
Foto 9
Afbeelding van Putten – Verlengde Dorpsstraat 46 – Foto 8
Foto 8
Afbeelding van Putten – Verlengde Dorpsstraat 46 – Foto 6
Foto 6
  • 175 m2
  • 2022
  • Winkelruimte
  • Onder optie

Omschrijving

Nieuwbouw, modieuze winkel-/annex commerciële ruimte gelegen nabij entree van Albert Heijn en publiekstrekker Hema, Terstal en Zeeman. Deze modieuze winkel-/annex commerciële ruimte is gesitueerd direct aan parkeerterrein op een hoeklocatie met een totaal beschikbare bruto vloeroppervlakte van circa 175 m². Het object heeft een (hoek) frontbreedte van circa 27 meter met grote representatieve glaspartijen en een dubbele entree aan de Bakkerstraat alsmede aan de Verlengde Dorpsstraat.

Objectgegevens
Winkel-/annex commerciële ruimte gelegen aan de Verlengde Dorpsstraat 46 / Bakkerstraat te Putten.

Beschikbare bruto vloeroppervlakte
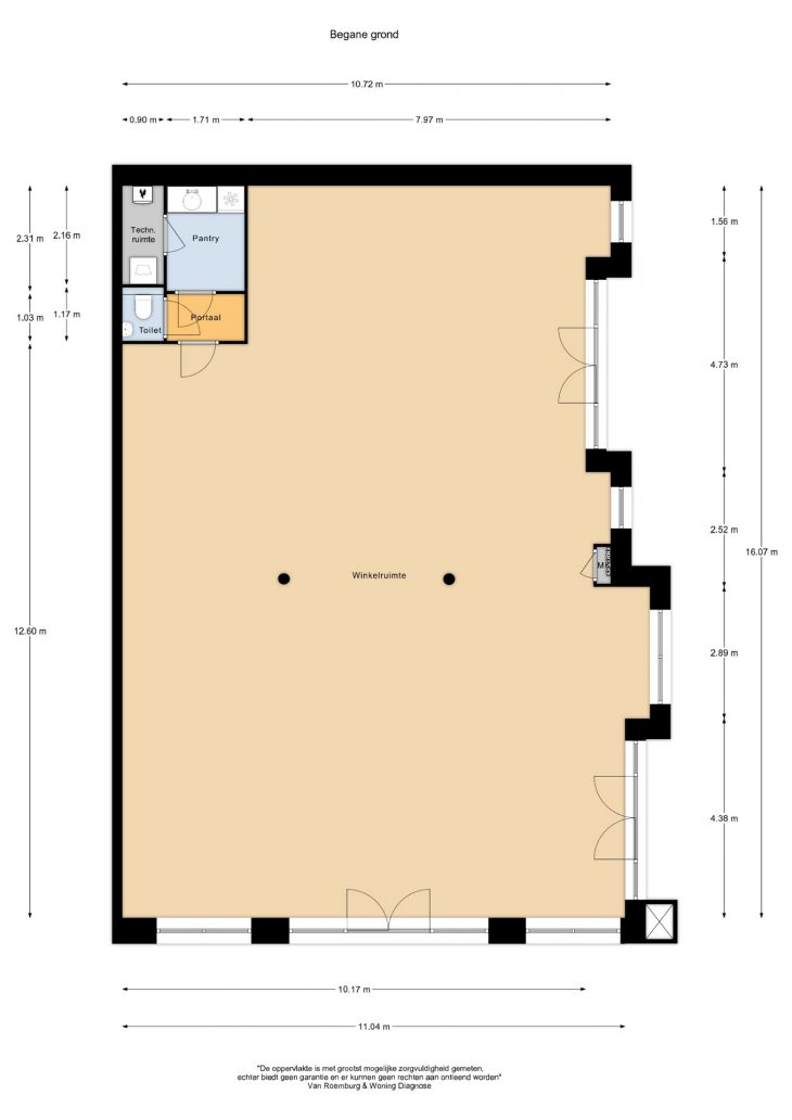
Begane grond circa 175 m².
Eventueel te splitsen waardoor twee (2) winkels ontstaan.

Opleveringsniveau
Casco, doch voorzien van;
• Rioleringsaansluiting
• Ruwe betonvloer
• Dubbele entree
• Glazen pui

Parkeervoorzieningen
Voldoende parkeermogelijkheden op eigen terrein.

Bestemming
Bestemmingsplan ‘Putten Centrum’ met de enkelbestemming ‘centrum 1’.

Huurvoorwaarden
Huurtermijn
In overleg.

Huurbetaling
Per maand vooruit.

Zekerheidsstelling
Bankgarantie of waarborgsom ter grootte van 3 maanden huur te vermeerderen met BTW.

Huurovereenkomst
Volgens ROZ-Model.

Huurprijsindexering
Jaarlijks, voor het eerst één jaar na ingangsdatum huurovereenkomst, op basis van de wijziging van het maand prijs indexcijfer volgens de consumentenprijsindex (CPI) reeks alle huishoudens (2015 = 100), gepubliceerd door het Centraal Bureau voor Statistiek (CBS).

Aanvaarding
In overleg.

Huurprijs
Vanaf € 2.400,- per maand excl. BTW en servicekosten (ingroeihuur).

Alle informatie is geheel vrijblijvend en onder voorbehoud. Hieraan kunnen geen rechten worden ontleend.

Kenmerken

Overdracht

  • StatusOnder optie
  • Vraagprijs€ 2.400,- p/m.

Indeling

  • Soort ObjectWinkelruimte
  • Totale oppervlakte175 m2
  • Oppervlakte winkelruimte175 m2

Parkeergelegenheid

  • Overdekt parkerenVoldoende parkeermogelijkheden op eigen terrein en nabij gelegen parkeerterrein.
  • Onoverdekt parkerenVoldoende parkeermogelijkheden op eigen terrein en nabij gelegen parkeerterrein.

Bouwvorm

  • BouwvormBestaande bouw
  • Bouwjaar2022
  • Bouwjaar toelichting

Overig

  • LocatieWINKELGEBIED_STADSCENTRUM
  • Aantal verdiepingen1
  • Onderhoud binnenUitstekend
  • Onderhoud buitenUitstekend

Plattegrond