Skip to content
Contact Plan een bezichtiging

Newtonstraat 3

3902 HP, Veenendaal

€ 125,- p/m² p/j.
  • 375 m2 / units vanaf 375 m2
  • 2000
  • Kantoorruimte
  • Beschikbaar

Omschrijving

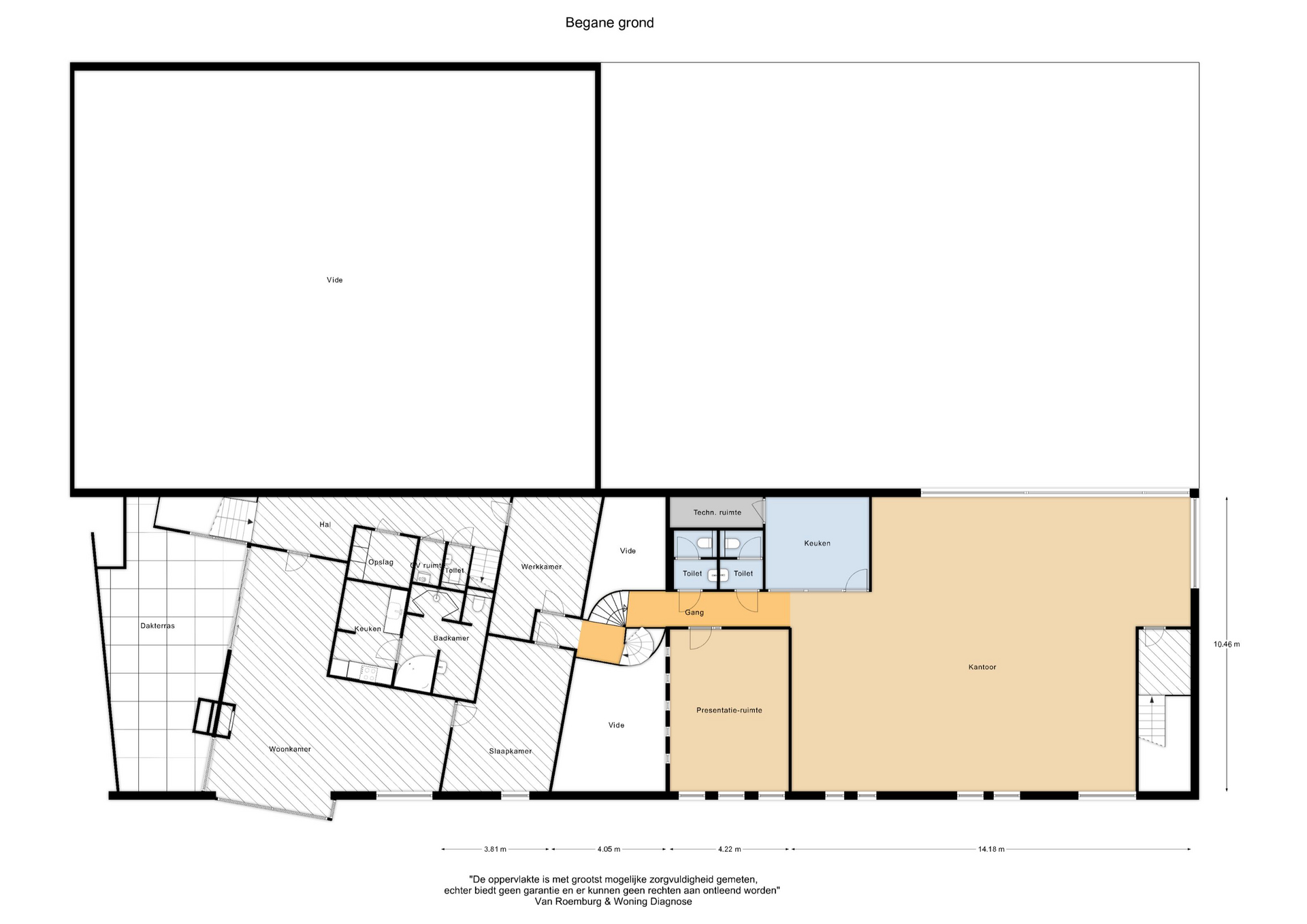
Representatieve kantoorruimte gelegen op het bedrijventerrein ‘’De Compagnie Oost’’ te Veenendaal. De kantoorruimte is gelegen op de begane grond.

De kantoorruimte heeft een volledig oplevingsniveau en is onder andere voorzien van vloerafwerking, kabelgoten en een systeemplafond met verlichtingsarmaturen. De locatie is goed te bereiken met het openbaar vervoer en met de auto vanwege de directe ligging aan de Rijksweg A12 (Den Haag - Arnhem).

Objectinformatie
Kantoorruimte gelegen aan de Newtonstraat 3 te Veenendaal.

Beschikbare bruto vloeroppervlakten
Circa 375 m² verdeeld over de begane grond en de 1e verdieping.

Voorzieningen
- Toilet
- Pantry
- Systeemplafond v.v. verlichtingsarmaturen
- Afsluiting voor glasvezelverbinding
- Meerdere kantoorvertrekken
- Vloerafwerking*
- Airconditioning*
- Kabelgoten met databekabeling*

*Aanwezige zaken worden huurder ter beschikking gesteld en dienen bij slijtage of teniet gaan door en voor rekening van huurder te worden vervangen.

Parkeervoorzieningen
Parkeervoorzieningen op eigen terrein.

Huurvoorwaarden
Huurprijs
€125,- per m²/ jaar, exclusief BTW.
Servicekosten € 30,- per m²/ jaar, exclusief BTW.

Huurtermijn
In overleg.

Huurbetaling
Per maand vooruit.

Zekerheidstelling
Waarborgsom ter grootte van minimaal drie (3) maanden huur, inclusief btw.

Huurprijsindexering
Jaarlijks, voor het eerst één jaar na huur ingangsdatum, op basis van de wijziging van het maand prijsindexcijfer volgens de consumentenindex (CPI) reeks CPI-Alle Huishoudens (2015 = 100), gepubliceerd door het Centraal Bureau voor de Statistiek (CBS).

Aanvaarding
In overleg.

Huurovereenkomst
Conform ROZ-model.

DOWNLOAD DE COMPLETE BROCHURE VIA MNM.NL

Alle verstrekte informatie is geheel vrijblijvend en onder voorbehoud. Hieraan kunnen geen rechten worden ontleend.

Kenmerken

Overdracht

  • StatusBeschikbaar
  • Vraagprijs€ 125,- p/m² p/j.
  • Servicekosten€ 30,- p/m² p/j.

Indeling

  • Soort ObjectKantoorruimte
  • Totale oppervlakte375 m2
  • Oppervlakte kantoorruimte375 m2

Bouwvorm

  • BouwvormBestaande bouw
  • Bouwjaar2000
  • Bouwjaar toelichting

Overig

  • In units vanaf375 m² kantoorruimte
  • Aantal verdiepingen2
  • EnergieklasseA+
  • Onderhoud binnenGoed
  • Onderhoud buitenGoed

360º afbeeldingen

Vergelijkbare objecten