Skip to content
Contact Plan een bezichtiging

Slangenburg 91

3772 LS, Barneveld

€ 495.000,- k.k.
  • 117 m2 / 211 m2
  • 5 kamers
  • 4 slaapkamers
  • 1 badkamer
  • Beschikbaar

Omschrijving

Verzorgde hoekwoning met veranda en eigen carport

Deze keurig onderhouden hoekwoning met carport en berging ligt aan een rustig hofje in Barneveld, op fietsafstand van het gezellige centrum. De achtertuin is een echte blikvanger: onderhoudsvriendelijk én sfeervol ingericht met een fijne veranda, waar je het hele jaar door kunt genieten. De ligging is ideaal voor gezinnen met (jonge) kinderen, dankzij de kindvriendelijke omgeving, diverse speelplekken en voorzieningen om de hoek.

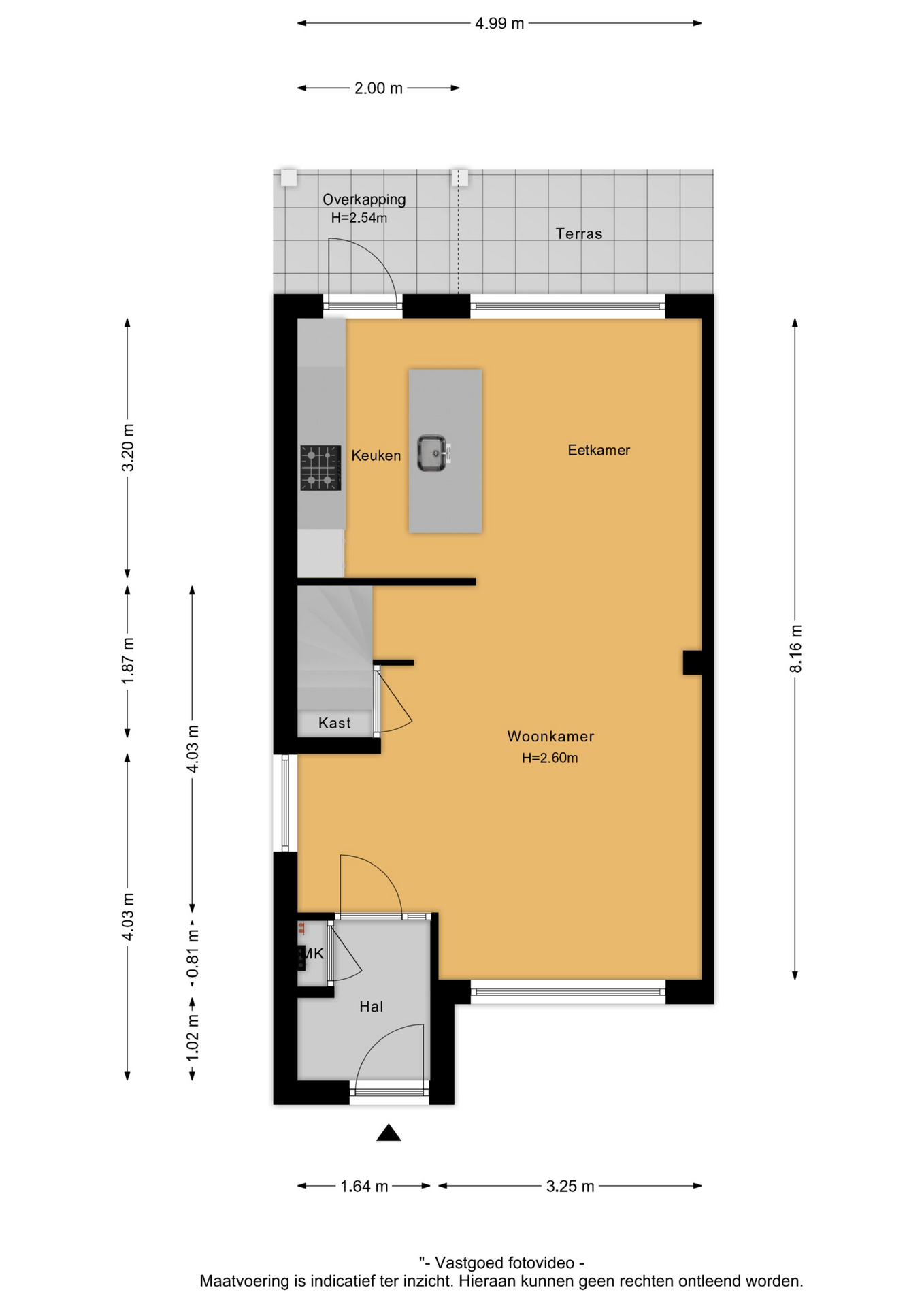
Begane grond
Je betreedt de woning via een nette hal met toilet en meterkast. De lichte woonkamer is aan de voorzijde gesitueerd en heeft een moderne uitstraling dankzij de strak gestucte plafonds en de doorgelegde PVC-vloer. De recent vernieuwde open keuken vind je aan de achterzijde, uitgevoerd in een donkere kleurstelling die perfect combineert met de lichte vloer. Voorzien van een kookplaat, combi-oven/combimagnetron, koelkast, vriezer en vaatwasmachine is deze keuken zowel stijlvol als functioneel. Vanuit de keuken stap je de achtertuin in.

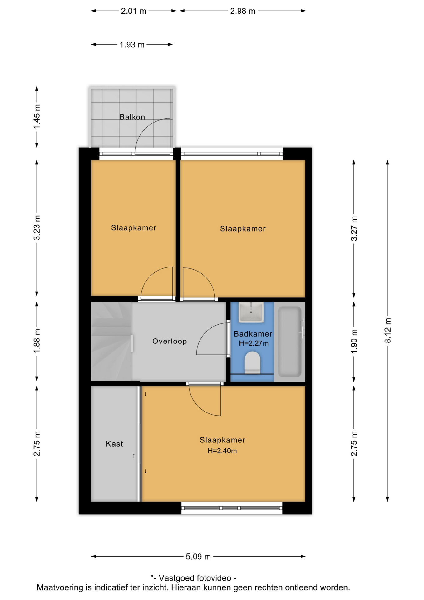
Eerste verdieping
Via de overloop heb je toegang tot drie slaapkamers. De slaapkamer aan de achterzijde geeft toegang tot het balkon. Ook op deze verdieping zorgen de strak gestucte plafonds en PVC-vloer voor een moderne en verzorgde uitstraling. De badkamer is netjes en compleet, met een ligbad, tweede toilet, wastafelmeubel en een handdoekenradiator.

Tweede verdieping
Een vaste trap brengt je naar de tweede verdieping. Hier vind je de vierde slaapkamer, voorzien van een groot dakraam. De overloop is praktisch ingericht met de cv-opstelling en aansluiting voor wasapparatuur. Bergruimte achter de knieschotten is slim benut.

Voor-/achtertuin
In de voortuin staat een vrijstaande, hoogwaardig afgewerkte praktijkruimte met eigen ingang. Deze ruimte is perfect geschikt voor werken aan huis, een salon of kantoorruimte en beschikt over goede isolatie en een verzorgde afwerking. Daarnaast is er een overkapte carport, zodat je altijd droog kunt parkeren op eigen terrein.

De achtertuin is strak aangelegd en onderhoudsvriendelijk. Dankzij de hoekligging geniet je hier van extra ruimte, privacy én een achterom. De veranda is de plek om lange avonden door te brengen.

Omgeving
De woning ligt aan een rustige straat in een kindvriendelijke buurt. Diverse speeltuintjes liggen op loopafstand. Scholen, supermarkten en andere voorzieningen bereik je binnen enkele minuten. Bovendien ben je met de fiets zó in het centrum van Barneveld of bij het station. Ook uitvalswegen richting A1 en A30 zijn goed bereikbaar.

Nieuwsgierig geworden?
Deze instapklare hoekwoning biedt ruimte, sfeer en een fantastische ligging. Zie jij jezelf hier al wonen? Bel ons vandaag nog voor een bezichtiging, wij leiden je graag rond!

Kenmerken

Overdracht

  • StatusBeschikbaar
  • Vraagprijs€ 495.000,- k.k.
  • AanvaardingIn overleg

Bouwvorm

  • Soort objectWoonhuis
  • Soort woningEengezinswoning
  • Type woningHoekwoning
  • Bouwjaar1978
  • BouwvormBestaande bouw
  • LiggingenIn woonwijk

Indeling

  • Woonoppervlakte117 m2
  • Perceeloppervlakte211 m2
  • Inhoud366 m3
  • Aantal kamers5
  • Aantal slaapkamers4
  • Aantal badkamers1

Energie

  • EnergieklasseC
  • VerwarmingCV ketel
  • C.V.-KetelRemeha avanta
  • Bouwjaar C.V.-Ketel2021
  • WarmwaterCV ketel
  • IsolatieDakisolatie, Muurisolatie, Dubbelglas
  • CombiketelJa
  • BrandstofGas
  • EigendomEigendom

Buitenruimte

  • TuinAchtertuin, Voortuin, Zijtuin
  • HoofdtuinAchtertuin
  • Oppervlakte74 m2
  • Ligging hoofdtuinNoordoost
  • AchteromJa
  • Kwaliteit tuinNormaal

Bergruimte

  • Schuur / BergingVrijstaand steen
  • VoorzieningenVoorzien van verwarming, Voorzien van elektra, Voorzien van water
  • Totaal aantal1

Parkeergelegenheid

  • Parkeer faciliteitenOpenbaar parkeren, Op eigen terrein
  • GarageCarport

Dak

  • Soort dakZadeldak
  • Materiaal dakPannen

Overig

  • Permanente bewoningJa
  • Onderhoud binnenGoed
  • Onderhoud buitenGoed
  • Huidig gebruikWoonruimte
  • Huidige bestemmingWoonruimte

Plattegrond

Hoofdvideo

Laad video en start met afspelen

360º afbeeldingen

Vergelijkbare woningen