Skip to content
Contact Plan een bezichtiging

Wildforster 94

3772 WH, Barneveld

€ 439.000,- k.k.
  • 103 m2 / 112 m2
  • 6 kamers
  • 5 slaapkamers
  • 1 badkamer
  • Beschikbaar

Omschrijving

Sfeervolle middenwoning met luxe veranda en verrassend veel comfort

Ben je op zoek naar een instapklare woning met een warme uitstraling, moderne afwerking en een heerlijke tuin? Dan is deze middenwoning precies wat je zoekt. Met onder andere een stijlvolle pvc-vloer, praktische rolluiken, een airco die zowel kan koelen als verwarmen en een luxe veranda in de achtertuin waar je tot in de late uurtjes geniet.
Een ideale woning voor jonge gezinnen die comfortabel willen wonen in een rustige, kindvriendelijke omgeving.

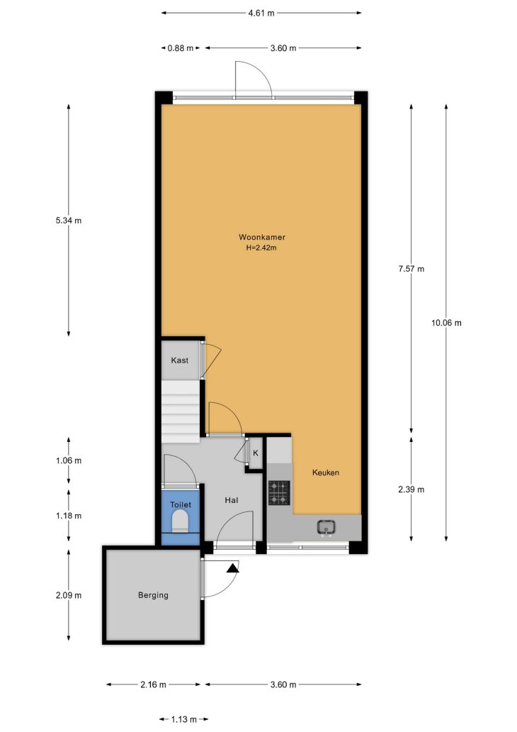
Begane grond
Via de verzorgde voortuin met parkeergelegenheid op eigen terrein, bereik je de entree. In de hal bevinden zich het toilet, de meterkast en de trap naar de eerste verdieping.
De woonkamer is tuingericht en heerlijk licht dankzij de grote raampartijen. De moderne pvc-vloer zorgt voor een warme uitstraling en is onderhoudsvriendelijk.
Aan de voorzijde van de woning bevindt zich de strakke keuken uitgerust met diverse inbouwapparatuur, waaronder een combi-oven, koelkast, afzuigkap en vaatwasser.

Eerste verdieping
De overloop biedt toegang tot drie slaapkamers, elk met een prettig formaat. De kamers zijn netjes afgewerkt en praktisch in te delen als slaapkamer, kinderkamer of thuiswerkplek.
De badkamer is compleet ingericht met een ligbad met douche, een wastafelmeubel en een toilet. Een comfortabele ruimte waar je heerlijk tot rust komt, zowel in de ochtend als na een lange dag.

Tweede verdieping
Via een vaste trap bereik je de tweede verdieping. Deze verrassend ruime verdieping is dankzij de aanwezige dakramen heerlijk licht en comfortabel. Hier zijn al twee volwaardige slaapkamers gerealiseerd, wat deze verdieping bij uitstek geschikt maakt voor grotere gezinnen. Uiteraard lenen de kamers zich ook perfect als thuiswerkplek of hobbyruimte.

Tuin
De achtertuin is onderhoudsvriendelijk aangelegd en biedt volop privacy. Achter in de tuin bevindt zich een prachtige, moderne veranda met houten afwerking, een echte eyecatcher! Hier kun je het hele jaar door genieten van lange zomeravonden, gezellige etentjes of een ontspannen moment voor jezelf. De tuin is bovendien voorzien van een achterom.

Omgeving
De woning is gelegen in een rustige, prettige woonwijk met een speelvoorziening op loopafstand. Winkels, scholen en uitvalswegen zijn goed bereikbaar, wat zorgt voor een ideale combinatie van rust en bereikbaarheid.

Klaar om te verhuizen?
Laat je verrassen door de ruimte en sfeer en maak snel een afspraak voor een bezichtiging. Wij laten je deze woning graag van binnen beleven!

Kenmerken

Overdracht

  • StatusBeschikbaar
  • Vraagprijs€ 439.000,- k.k.
  • AanvaardingIn overleg

Bouwvorm

  • Soort objectWoonhuis
  • Soort woningEengezinswoning
  • Type woningTussenwoning
  • Bouwjaar1983
  • BouwvormBestaande bouw
  • LiggingenAan rustige weg, In woonwijk

Indeling

  • Woonoppervlakte103 m2
  • Perceeloppervlakte112 m2
  • Inhoud342 m3
  • Aantal kamers6
  • Aantal slaapkamers5
  • Aantal badkamers1

Energie

  • EnergieklasseC
  • VerwarmingCV ketel
  • C.V.-KetelNefit
  • Bouwjaar C.V.-Ketel2022
  • WarmwaterCV ketel
  • IsolatieDakisolatie, Muurisolatie, HR glas
  • CombiketelJa
  • BrandstofGas
  • EigendomEigendom

Buitenruimte

  • TuinAchtertuin, Voortuin
  • HoofdtuinAchtertuin
  • Oppervlakte24 m2
  • Ligging hoofdtuinZuidoost
  • AchteromJa
  • Kwaliteit tuinNormaal

Bergruimte

  • Schuur / BergingAangebouwd hout
  • VoorzieningenVoorzien van elektra
  • Totaal aantal1

Parkeergelegenheid

  • Parkeer faciliteitenOpenbaar parkeren, Op eigen terrein

Dak

  • Soort dakZadeldak
  • Materiaal dakPannen

Overig

  • Permanente bewoningJa
  • Onderhoud binnenGoed
  • Onderhoud buitenGoed
  • Huidig gebruikWoonruimte
  • Huidige bestemmingWoonruimte

Plattegrond

Hoofdvideo

Laad video en start met afspelen

360º afbeeldingen

Vergelijkbare woningen