Skip to content
Contact Plan een bezichtiging

Laarweg ong.

6732 DH, Harskamp

Verkocht bij inschrijving
  • 21.210 m2
  • Verkocht bij inschrijving

Omschrijving

Namens onze opdrachtgever mogen wij u aanbieden een PERCEEL AGRARISCHE GROND. De grond wordt aangeboden middels een (besloten) vrijwillige verkoop bij inschrijving. De voorwaarden en condities die voor deze inschrijving gelden leest u terug in de brochure.

Het biedingsformulier, welke te verkrijgen is via ons kantoor, is in te leveren t/m woensdag 19 november 2025 tot 12:00 uur bij Midden Nederland Makelaars Barneveld, Kampstraat 32 te Barneveld of per e-mail: aog@mnm.nl (met ontvangstbevestiging versturen).

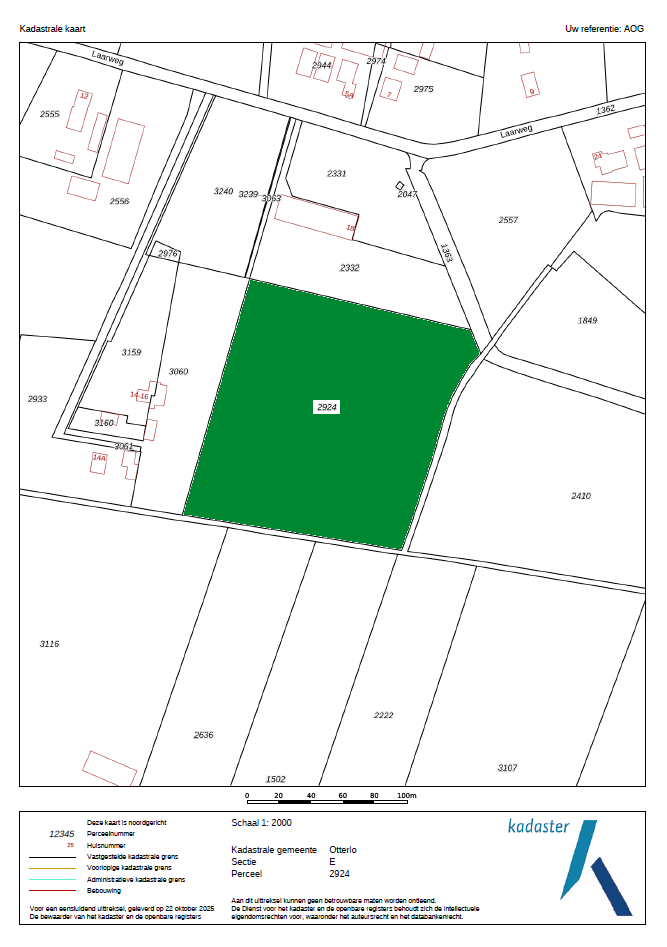
Kadastrale informatie: kadastraal bekend bij de gemeente Otterlo, sectie E, nummer 2924, groot ca. 21.210 m².

Bestemming: voor het perceel geldt de bestemming \"agrarisch zonder bebouwingsmogelijkheden\".

Bijzonderheden: verkoper heeft bij de verkrijging gebruik gemaakt van de vrijstelling van de overdrachtsbelasting (Artikel 15.1.Q WBR). Deze vrijstelling is voorwaardelijk waarbij het agrarisch bedrijfsmatige gebruik gedurende tien jaar na de betreffende levering zal moeten worden voortgezet, deze voorwaarde zal als kettingbeding worden opgenomen in de akte van levering. Voornoemde is ook van toepassing op een eerdere verkrijging welke eveneens als kettingbeding zal worden opgenomen.

Kenmerken

Overdracht

  • StatusVerkocht bij inschrijving
  • AanvaardingIn overleg
  • VraagprijsVerkocht bij inschrijving

Bouwvorm

  • BouwvormNiet van toepassing

Indeling

  • Perceeloppervlakte21.210 m2

Energie

  • CombiketelJa

Overig

  • Permanente bewoningJa

Kadastrale gegevens

  • GemeenteOtterlo
  • SectieE
  • Perceelnummer2924
  • Oppervlakte21.210 m2
  • EigendomssituatieVolle eigendom

Vergelijkbaar aanbod